查看完整案例


收藏

下载
项目所在地位于浙江省桐乡市红旗漾村,场地原来为当地居民的民居。北侧是大片稻田,南侧有一片生长在水塘中的水杉林。从基地往外看,拥有绝好的风景视野。每逢秋天季节,水杉树叶变成红色吸引了很多人前来观赏。建筑师第一次来场地勘察时,树叶已经落光,但也能感受到它的另一种美感。建筑师在场地的第一感受是想要充分利用好这里的原生态环境,因此,如何将建筑与环境之间的关系进行融合成为设计的重点考量与思考。
Nestled in the serene Hongqiyang Village, Tongxiang City, Zhejiang Province, the project site once was a local folk house. To its north lies a vast expanse of lush rice fields, while to its south, a tranquil pond cultivates a majestic forest of dawn redwoods. Boasting a breathtaking panorama of the forest, the site attracts crowds to admire the red leaves in autumn. During the architects’ inaugural site visit, though the leaves had already fallen, a different allure captivated their senses. The team envisioned harnessing the existing ecological conditions to its fullest potential. The harmonious fusion of the building with its natural surroundings emerged as a pivotal consideration and guiding principle in the design process.
▼项目整体鸟瞰,Aerial view and its surroundings © 苏圣亮
▼建筑鸟瞰,Aerial view of the architecture © 苏圣亮
项目主要作为餐厅使用,融合了一个公共驿站及观光塔的功能。在确定主入口及后勤动线后,建筑师将功能分散后植入四个独立体块,围合出内向庭院。体块之间用连廊及垂直楼梯进行平行与立体的串联。就餐空间放置在紧邻池塘及水杉的区域,局部标高进行了抬升,层叠的方式使得就餐空间拥有了更好的景观视野与亲水空间。建筑以外的场地范围则重新进行了围合,置入了门廊、曲幽小径、游览栈道及活动草坪等。通过设定道路与游览动线,让场地、建筑、人与水塘和水杉林形成更紧密的互动关系。从建筑中望出的视野、刻意营造的光影氛围,设定的行走感受,都是人在建筑和自然中发生关系的途径,将人和外界联系在一起。
▼场地印象,Site impression © y.ad studio
▼概念草图,Concept sketch © y.ad studio
The project is intended to serve as a restaurant that integrates the functions of a public station and an observation tower. Following the organization of the main entrance and logistical circulation, the architect strategically dispersed these functions into four distinct blocks around a central courtyard, weaving a tapestry of parallel and three-dimensional spaces through interconnecting corridors and vertical stairs among the blocks. The dining area was positioned adjacent to the pond and the dawn redwood grove. Through elevated terraces and a stacking approach, the dining space offers better landscape views and creates an immersive, water-centric ambiance. Outside the building, there are porches, scenic pathways, tourist deck promenades, and recreational lawns. These meticulously planned roads and tourist pathways enable a harmonious interplay of the site, structures, visitors, ponds, and metasequoia forests, fostering a dynamic interactive environment. The scenery viewed from inside the building, the curated interplay of light and shadow, and the purposeful spatial experiences converge to forge a profound connection between individuals and nature, seamlessly connecting people with the outside world.
▼隐匿在水杉林中的餐厅,The restaurant is hidden among the dawn redwood forest © 苏圣亮
▼晨雾中的餐厅全貌,Full view of the restaurant in morning mist © 苏圣亮
▼拾级而下的入口门廊,Porch steps © 苏圣亮
▼跟环境交织为一体的餐厅入口,The restaurant entrance seamlessly blends with the surroundings © 苏圣亮
▼层叠的户外亲水平台与观景平台,Layered waterfront terrace and viewing deck © 苏圣亮
▼亲水平台与水塘及水杉林穿插,The interpenetration of the waterfront terrace, pond and metasequoia forest © 苏圣亮
▼建筑与环境融为一体,The building integrates with the surroundings © 苏圣亮
▼餐厅望出的视野,让人在建筑中和自然中发生关系,The window view connects the people indoors with nature © 苏圣亮
为了适应江南建筑风貌与多雨的气候环境,在屋顶的设置上建筑师仍然采用了坡屋顶的形式。景观塔造型如树状般一同融入高耸的杉树林树冠之中,并与屋面弧线形成呼应关系。建筑屋顶通过扭曲,弧面双曲的方式来突破常规且单调的单坡形式。同时建筑师利用弧面交接的屋脊进行开口引入自然光线,让光影沿弧面倾泻而下,营造空间氛围的同时可以让室内空间随天气、日光变化而呈现不同的情绪。
A pitched roof was adopted to adapt to the abundant rainfall in this region while paying homage to traditional Jiangnan architectural style. The observation tower, resembling a tall tree, seamlessly integrates with the towering dawn redwood forest canopy, echoing the graceful arc of the roofline. Innovatively departing from the conventional single-slope structure, the building’s roof features dual dynamic twists and curves, breaking free from monotony. By incorporating openings at the roof ridge where these curved surfaces converge, natural light penetrates inside, casting interplays of light and shadow along the undulating surfaces. This design not only creates a unique spatial ambiance but also imbues the indoor space with evolving moods that shift with the weather and daylight.
▼餐厅东立面,屋面与观景塔的形式呼应,East facade of the restaurant, where the exterior echoes the observation tower © 苏圣亮
▼屋面与廊道局部,Part of the exterior and corridor © 苏圣亮
▼屋脊光影的导入,Daylight penetrates through the roof ridge © 苏圣亮
▼屋脊光影的导入,让光影沿弧面倾泻而下,Daylight penetrates through the roof ridge, pouring down along the curved surfaces © 苏圣亮
▼观景塔全貌,Full view of the observation tower © 苏圣亮
▼观景塔近景,Close-up of the observation tower © 苏圣亮
▼观景塔内部仰望,Bottom view of the observation tower © 苏圣亮
▼观景塔内部视角,Interior of the observation tower © 苏圣亮
▼二楼景观露台,让人与杉树林发生关系,The viewing deck on the second floor allows people to interact with the dawn redwood forest © 苏圣亮
▼一楼廊道灰空间,1F corridor – transitional space © 苏圣亮
▼二楼廊道灰空间,与自然的框景视角, Transitional space at the 2F corridor and the enframed scenery © 苏圣亮
作为主要立面材质的竹钢木,其较为暗沉的颜色能与周边环境、植物相互映衬,协调且不突兀的消隐在环境中,营造出极致的宁静感和与自然的关联感。当人身处其中会感受到自己被树林环绕。景观塔也被处理成黑色,当人置身塔上时,在这个高度俯瞰田野与树林,仿佛置身树冠之上,让人可以与大自然产生更紧密的连接。
Laminated bamboo panels are used as the primary facade material, with a darker hue that elegantly complements the natural surroundings and vegetation, merging with the context harmoniously and unobtrusively and fostering a profound sense of tranquility and an intimate connection with nature. Visitors are embraced by a woodland-like atmosphere, enhancing their immersion in the natural setting. The landscape tower, adorned in black, further enhances the immersive experience. From its vantage point, visitors can gaze out over the fields and woodlands below, as if being perched atop the tree canopy, fostering a deeper connection between people and nature.
▼总平面图,Site plan © y.ad studio
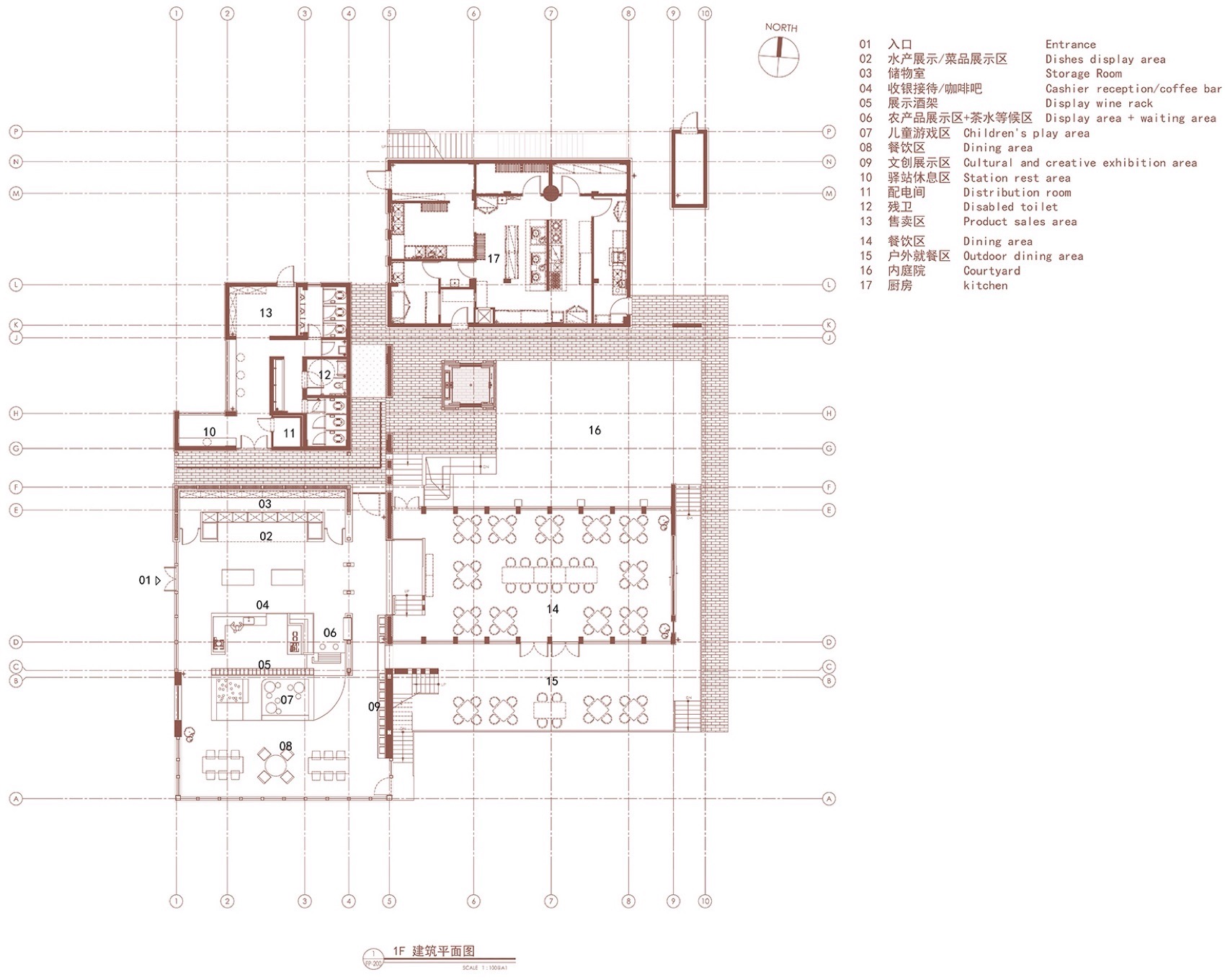
▼1F建筑平面图,1F plan © y.ad studio
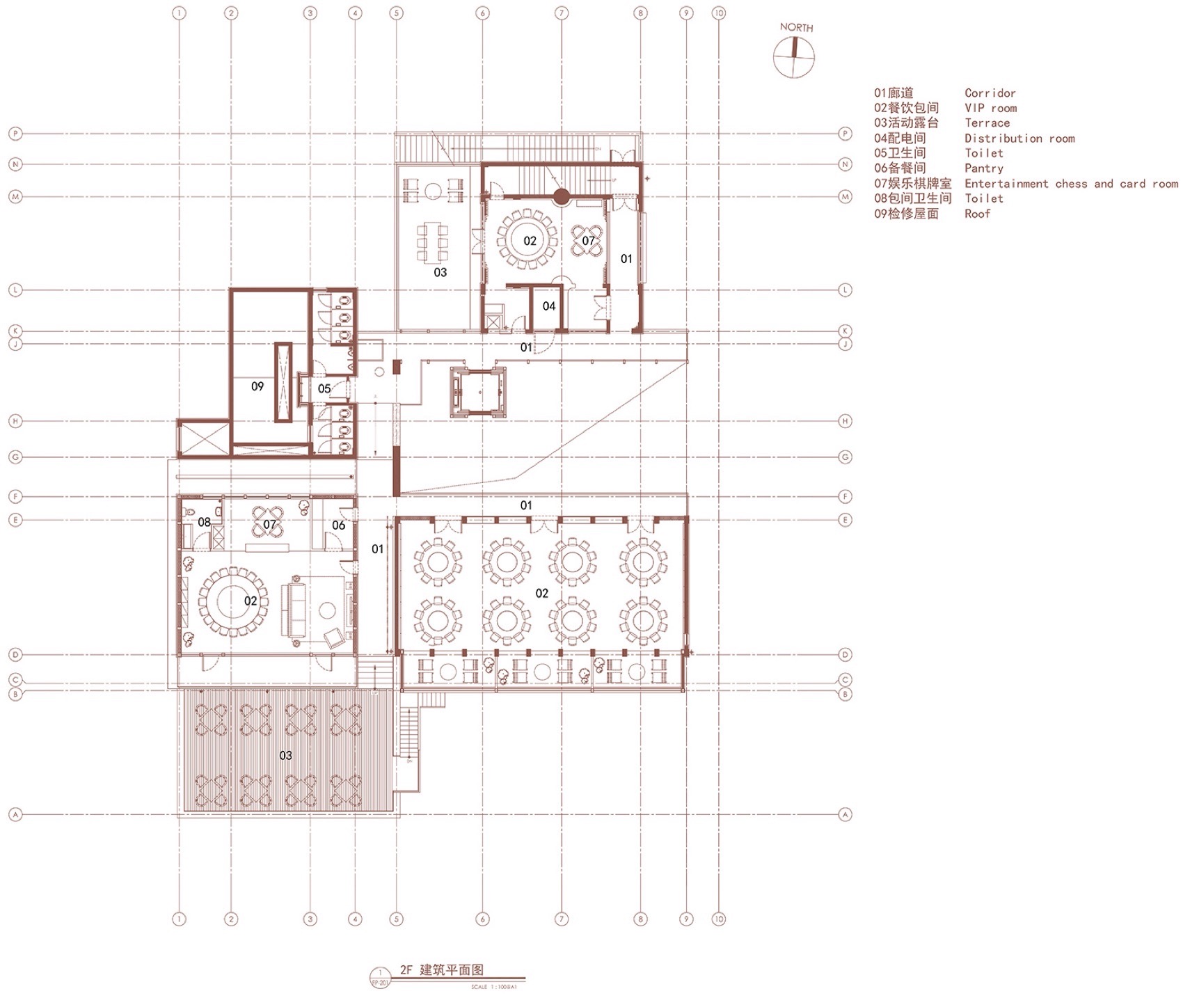
▼2F建筑平面图,2F plan © y.ad studio
▼8.3m建筑平面图,8.3m plan © y.ad studio
▼11.3m建筑平面图,11.3m plan © y.ad studio
▼13.9m建筑平面图,13.9m plan © y.ad studio
客服
消息
收藏
下载
最近
































