查看完整案例

收藏

下载
架构师提供的文本描述。位于墨尔本菲茨罗伊市中心的这一狭窄的一居室露台坐落在一个紧凑的79平方米的场地上。原来的小屋是黑暗的,寒冷的,拥挤的,在已经很小的居住空间的中间,有一架耙式梯子进入它的一间阁楼卧室。其目的是在预算不高的情况下,建造一套实用的两居室住宅。空间约束、光和视图驱动了设计响应。
Text description provided by the architects. This narrow, one-bedroom terrace in the heart of Fitzroy, Melbourne sits on a compact 79m2 site. The original cottage was dark, cold and cramped with a raking ladder in the middle of the already small living space accessing its single, mezzanine bedroom. The brief was to create a functional two-bedroom home on a modest budget. Spatial constraints, light and views drove the design response.
© Tess Kelly
C.苔丝·凯利
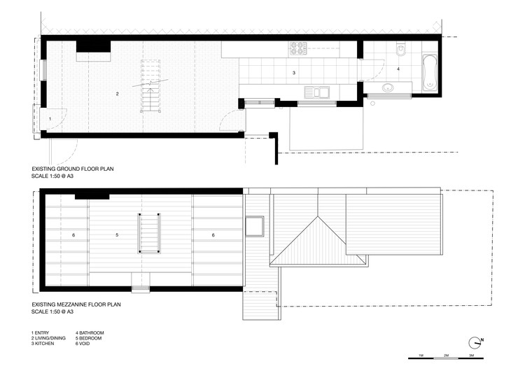
Existing / Ground + Mezzanine floor plan
现有/地面夹层平面图
© Tess Kelly
C.苔丝·凯利
由于有限的可用面积,空间是一个额外的,并被明智地使用。从底层看,没有迹象表明是第二层,保持了这座简陋的砖瓦工人家庭的完整性。仔细观察后,可以看到四个台阶从厨房窗口升起,给人一层兴趣和一个发现的过程。打开似乎是厨房橱柜的地方,可以进入光线充足的楼梯井和二楼,包括主卧室、睡袍、浴室和第二卧室/书房。楼梯是作为一个外部元素,并作为一个设备,以过滤光通过建筑物的中部。它被穿孔的板隔开,形成斑驳的光,流过楼梯井和室内;就像光线穿过树木,随着时间和季节的变化而变化。
With limited available area, space was a premium, and to be used wisely. From the ground floor there is no indication of second level, maintaining the integrity of this humble brick floored workers-cottage. Upon closer inspection, four steps can be seen rising past the kitchen window giving a layer of interest and a process of discovery. Opening what appears to be a kitchen cupboard allows access to the light-filled stairwell and second floor, comprising a master bedroom, walk-in-robe, bathroom and second bedroom/study. The stair is intended as an external element and acts as a device to filter light through the middle of the building. It is screened to the east by perforated panels that create dappled light that flows over the stairwell and interior; like light through trees, changing with the time of day and the seasons.
© Tess Kelly
C.苔丝·凯利
通过精确定位的窗户和天窗,可以看到邻近教堂的景观和它的标志性特征,创造了一种分层的连通感。通过内部景观,从现有和新的领域,制定具体的重点,为建筑设计的反应。可操作的玻璃提供自然光和交叉通风,而角度的体积捕捉一个美丽,不断变化的光线质量。
Views to the neighbouring church and its iconic features are framed throughout the dwelling by precisely positioned windows and skylights, creating a layered sense of connectivity. Framing specific focal points through the interior landscape, from both existing and new areas, informed the architectural design response. Operable glazing provides natural light and cross ventilation, while the angled volumes capture a beautiful, ever changing light quality.
Axonometric
从外部看,折叠的东方高地复制了天使的翅膀,保护着下面的建筑,向我们教会的灵感致敬。它还致力于明确立面,在保持隐私和光线质量的同时,分解建筑物的体积。
Externally the folded east elevation replicates an angel’s wing protecting the building beneath, tribute to our ecclesiastical inspiration. It also worked to articulate the elevation, breaking down building bulk while maintaining privacy and light quality.
© Tess Kelly
C.苔丝·凯利
Architects Whiting Architects
Location Fitzroy, Australia
Lead Architects Steven Whiting, Eleanor Eade, Josie Somerville
Area 112.0 m2
Project Year 2017
Photographs Tess Kelly
Category Houses
Manufacturers Loading...
客服
消息
收藏
下载
最近




























