查看完整案例

收藏

下载
Architects: Standard Studio Project: NH25 Loft / Old Amsterdam Canal House Conversion Location: Amsterdam, The Netherlands Area: 370 m2 Year: 2017 General contractor: Kasper Fruitema Interior fit-out: Robert Tediek Kitchen: Eginstill Photography: Standard Studio
建筑师:标准工作室项目:NH25Loft/OldAmsterdamCanalHouseConversionLocationLocation:Netherlands,NetherlandsArea:370m2year:2017总承包商:KasperFruitemaInteriorfit:RobertTediekKitchen:EginstistPhotoy:StandardStudio。
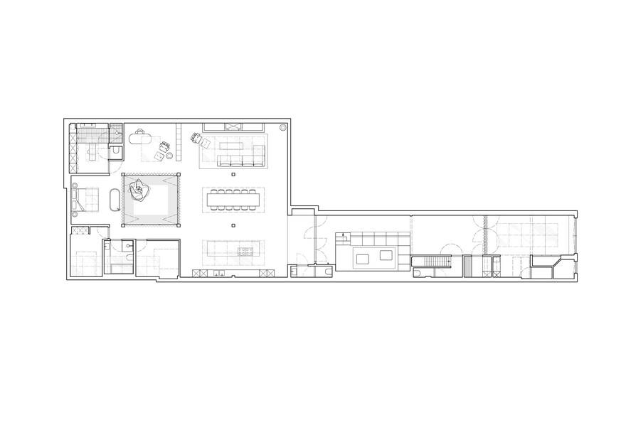
Description by architect: In the city centre of Amsterdam a hidden gem is built in an old canal house. The design was made in cooperation with Joyce Kelder. This Amsterdam canal house was built in the beginning of the 17th century. From the street the only part visible is big double garage door that marks the entrance. The loft is entered through the garage where is space for an old classic car and bikes. Adjacent to the entrance you come in at the sitting pit carried out with a home cinema.
建筑师描述:在阿姆斯特丹市中心,一个隐藏的宝石建在一座旧运河房子里。这个设计是与乔伊斯·柯尔德合作进行的。这座阿姆斯特丹运河屋建于17世纪初。从街道上看,唯一看得见的部分是标志着入口的大双车库门。阁楼是通过车库进入,那里是一个旧的古典汽车和自行车的空间。就在入口处,你来到了与一家庭影院一起进行的坐坑里。
The loft is mostly built in a former courtyard without any windows providing day light. Central in the lay-out Standard Studio designed a patio in the middle of the space bringing in the day light and adding some outdoor space. All the program like, bedrooms, bathroom, walk in closet and kitchen are situated around the patio. The patio is used to organize all the program which still allows the space to feel very open.
阁楼大多建在一个以前的庭院里,没有窗户提供日光灯。中央在布局标准工作室设计了一个庭院在中间的空间,带来了白天的光线,并增加了一些室外空间。所有的程序,如卧室,浴室,走在壁橱和厨房周围的露台。庭院是用来组织所有的节目,这仍然允许空间非常开放。
To add more natural day light six extra big roof lights are created to provide a lot of light to the spaces around the courtyard. Even though the loft is in the middle of a residential courtyard there is a lot of privacy because no direct visible connection is made through the surrounding buildings. The end result is a bright and vibrant open floorplan that suits the life style of the inhabitants. Open but private.
为了增加更多的自然日光,六个额外的大屋顶灯被创造出来,为庭院周围的空间提供大量的光。即使阁楼位于住宅庭院的中央,也有很大的隐私,因为周围的建筑没有直接可见的连接。最终的结果是一个明亮和充满活力的开放式规划,适合居民的生活方式。开放但私密。
客服
消息
收藏
下载
最近
















