查看完整案例

收藏

下载
© Bill Timmerman
(比尔·蒂默尔曼
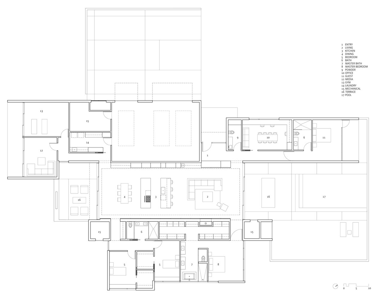
架构师提供的文本描述。峡谷屋是从沙漠中冒出来的,它是等份的土地形态和观赏机制.从外表上看-但不仅仅是景观中的一个物体-峡谷屋模糊了内外的界限,把外部环境深深地印在了家里的内部:将生活表现为一系列的瞬间、视野和倒影。
Text description provided by the architects. Emerging from the desert, Canyon House is equal parts land-form and mechanism for viewing. Stoic on the exterior - but more than an object in the landscape - Canyon House blurs the boundary between inside and out, imprinting the exterior environment onto the interior of the home: revealing life as a series of moments, vistas and reflections.
© Bill Timmerman
(比尔·蒂默尔曼
坐落在卡塔利纳山脉北部和图森山脉西南,压倒一切的意图是客户生活在“视图”-感官沉浸是驱动概念和效果的建筑。
Sited to frame the Catalina Mountains to the north and the Tucson Mountains to the southwest, the over-riding intent was for the clients to live "in the view" - sensory immersion being the driving concept and effect of the architecture.
© Bill Timmerman
(比尔·蒂默尔曼
这种身临其境的体验的表现是位于家庭中心的峡谷般的生活空间。东、西两旁有服务和卧室的两翼,南北相望,“峡谷”也是由水平基准面定义的。在这七英尺的基准之下,生活是有组织的;在上面,家庭内部以“神职人员”的形式到达星历。
The manifestation of this immersive experience is the canyon-like living space at the center of the home. Flanked on the east and west by the service and bedroom wings, and looking north and south, "the canyon" is also defined by a horizontal datum. Below this seven foot datum, life is organized; above, the interior of the home reaches up to ephemera in the form of a "clerestory" surface.
© Bill Timmerman
(比尔·蒂默尔曼
© Bill Timmerman
(比尔·蒂默尔曼
在窗墙上,基准面上方的面板可以俯瞰山顶,而侧壁牧师则捕捉到倾斜的倒影,这些反射随着居住者在整个房子中的移动而移动。其效果是让远处的全景进入并包裹在家里的内部。
At the window walls, the panels above the datum afford mountain-top views, while the side wall clerestory captures oblique reflections that shift as the occupants move throughout the house. The effect is for distant panoramas to enter and wrap the interior of the home.
© Bill Timmerman
(比尔·蒂默尔曼
峡谷内的听觉也同样受到漂浮在上面的声音“云”的影响,为交谈和沉思创造了一个宁静的环境。当白天变成黑夜时,云层收集并组织了人造光,它们变成了一个恒星星座,反映在神职人员身上。
Aural sensations within the canyon are likewise affected by an acoustic "cloud" that floats above, creating a serene environment for conversation and contemplation. The cloud collects and organizes artificial lights that become a constellation of stars, reflected in the clerestory, as day turns to night.
© Bill Timmerman
(比尔·蒂默尔曼
从峡谷空间到家的翅膀的空间阈值将注意力从大视野转移到亲密时刻和个人小插曲。峡谷之家通过构造的模棱两可和反映出相似之处来挑战感知,试图揭示超出我们感官的现实。
Spatial thresholds from the canyon space to the wings of the home shift attention away from the big views, towards intimate moments and personal vignettes. Canyon House challenges perceptions through constructed ambiguities and reflected likenesses, attempting to reveal a reality beyond our senses.
© Bill Timmerman
(比尔·蒂默尔曼
客服
消息
收藏
下载
最近








































