查看完整案例

收藏

下载
三楼的位置以斯瓦比亚阿尔卑斯山脉一览无为,其中包括位于村庄中心的中世纪修道院。修道院的主人希望能从房子里直接看到修道院。严格的开发计划和狭窄的施工窗口使实现这一愿望变得复杂。然而,满足需求的简要结构几何是允许开发的完整视图修道院——阳台面积的南边的房子被挤压出建筑物的信封,允许全景村庄和周围的景观。
另一个需要考虑的要点是隔音。建筑区域直接位于机场降落航线上。为了消除噪音,设计中包括了一个混凝土斜屋顶,以帮助偏转和避免飞机飞过头顶的声音。建筑师们所关心的问题是设法绕过有关屋顶的开发计划的规范,该计划允许使用红色或灰色的瓦片屋顶。其结果是一个独特的概念:房子被均匀地覆盖在浅灰色的“永恒的图画”纤维水泥面板上,延伸到倾斜的混凝土屋顶上。这“包装”的房子在一致的材料给它一个整体外观,建筑元素完美地结合作为一个同质的整体。
与南立面相比,北立面、东立面和西立面都是封闭的。细长的窗体不允许从邻近的房子看到任何视线,但仍然允许从房子内部看到。突出的入口区域和阳台,其巨大的玻璃表面,与看似线性建筑的主要房屋结构形成对比。这一效果是由建筑底层的黑色纤维水泥面板加强的。
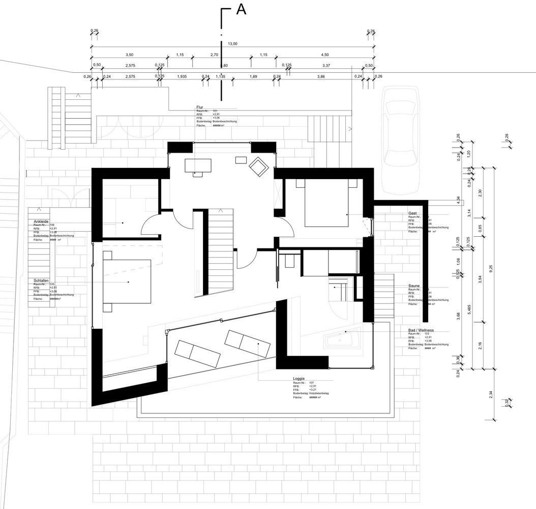
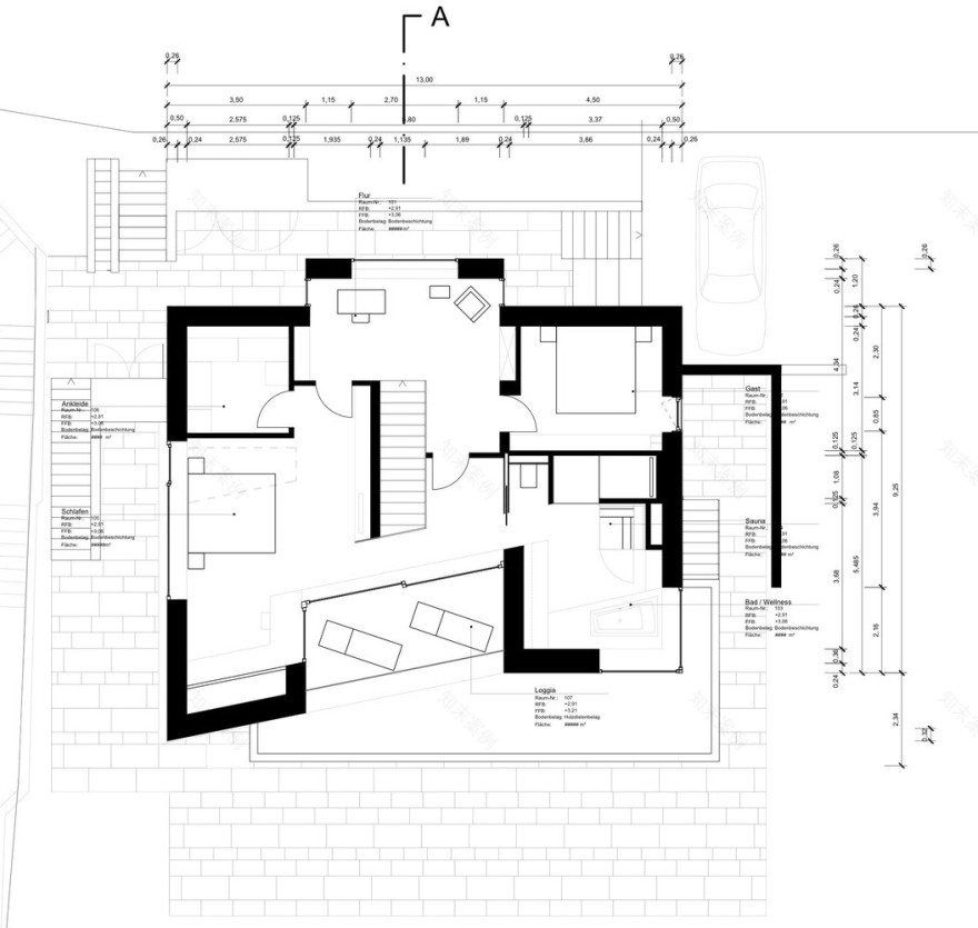
厨房、就餐区和生活区都没有柱子,因此可以相互渗透。这座建筑的中心是单层楼梯,连接着三层楼和不同的生活区。一楼从地板到天花板的窗户,无缝地连接了室内和室外,为居住区域提供了令人印象深刻的空间感。楼上是主卧室,有一个大浴室,里面有一个水疗中心和一个小图书馆。山坡上是孩子们的房间,有一个宽敞的游戏室。孩子们所有的空间都直接与花园相连。在房子的后面是自助休息室,以及洗衣房和技术室。
客服
消息
收藏
下载
最近


















