查看完整案例

收藏

下载
顾问盖革工程师,照明公司,JRA食品服务建设,战略能源解决方案,设计讲习班,SDI结构,史蒂文斯工程师,AEI附属工程师,彼得博索协会更多规格少规格
Consultants Geiger Engineers, Illuminart Inc., JRA FoodService Construction, Strategic Energy Solutions, Design Workshop, SDI Structures, Stevens Engineers, AEI Affiliated Engineers, Peter Bosso Associates More Specs Less Specs
© Rafael Gamo
拉斐尔·贾莫
架构师提供的文本描述。绿湾包装工有一个愿景,创造一个运动锚定的发展,不仅捕捉球迷的热情,在游戏日,而且促进灵活的全年规划贯穿整个季节和时间的一天。
Text description provided by the architects. The Green Bay Packers had a vision to create a sports anchored development that not only captures the passion of Packers fans on game day, but also promotes flexible year-round programming throughout each season and time of day.
© Rafael Gamo
拉斐尔·贾莫
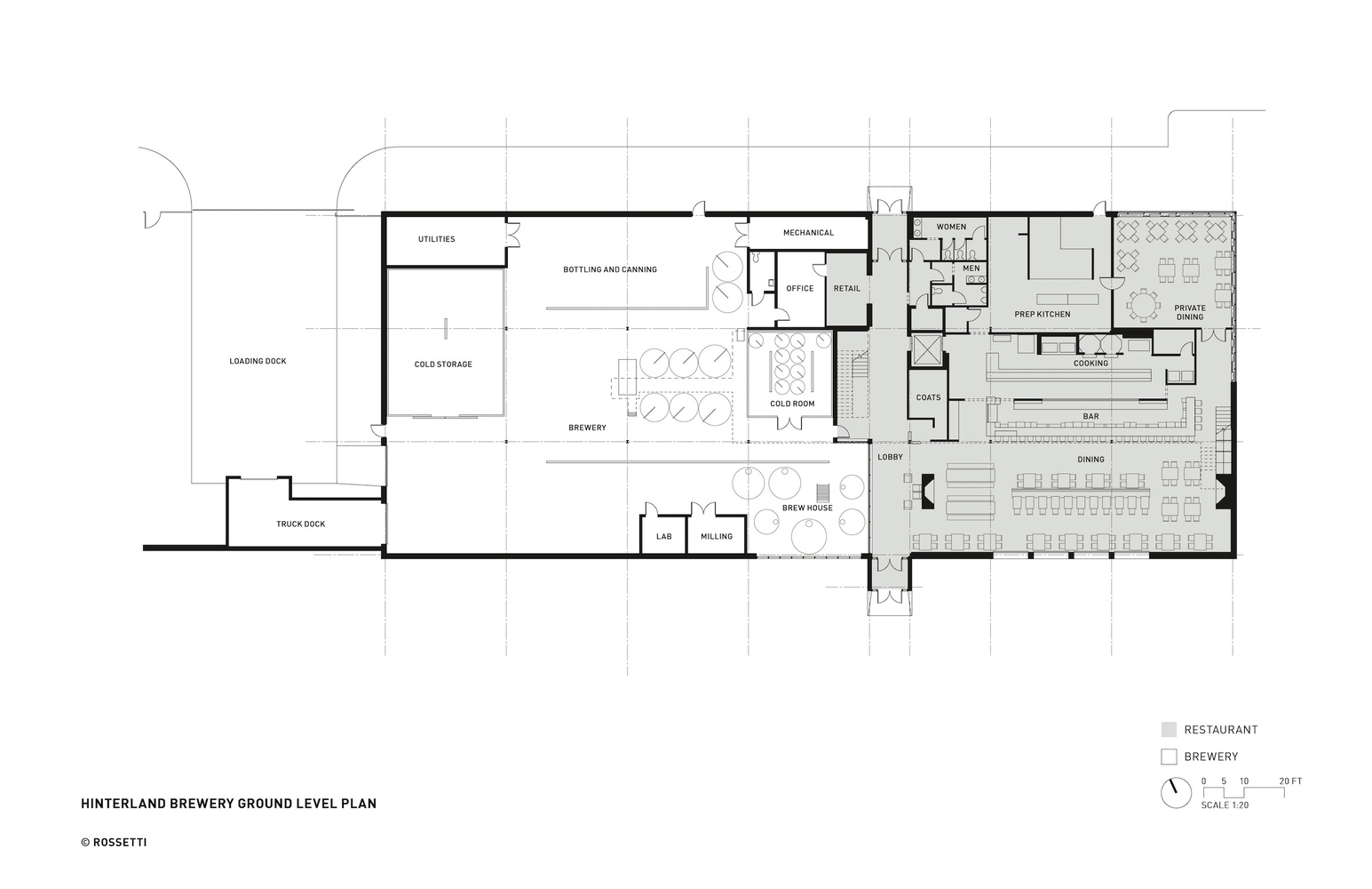
泰特敦区的设计策略侧重于公共领域的活力,并让商业元素发挥辅助作用。帕克广场由兰博菲尔德和腹地酿酒厂锚定,低矮的商业建筑向北排列,南边是城镇住宅。该地区的建筑反映了绿色湾的工业遗产,使用了当代的当地材料解释,如砖石、钢和鹅卵石。
The design strategy of the Titletown District focused on the vibrancy of the public realm, and let the commercial elements play a supporting role. Packer Plaza is anchored by Lambeau Field and by Hinterland Brewery, with low-rise commercial buildings lining the Plaza to the north and townhomes along the southern edge. The architecture of the district reflects the industrial heritage of Green Bay, using a contemporary interpretation of local materials, such as brick, steel, and cobblestone.
© Rafael Gamo
拉斐尔·贾莫
Master Plan Phase 1
总计划第一阶段
© Rafael Gamo
拉斐尔·贾莫
总体规划中最独特的元素之一是包括了一座两层高的雪橇山,从开始到结束都有100码长-这是美国第一座这样的山。兰博球场臭名昭著的冻土冻原被用作雪橇山馆的设计隐喻。作为公园的延伸,这座山丘在冻土带之上建立了建筑模型。
One of the most unique elements of the master plan was the inclusion of a two-story sledding hill that stretches 100 yards in length from start to finish—the first of its kind in the U.S. Lambeau Field’s infamous Frozen Tundra was used as a design metaphor for the Sledding Hill Pavilion. Modeling the architecture after a tundra with land above it, the hill peels up and away as an extension of the park.
© Rafael Gamo
拉斐尔·贾莫
Elevations
© Rafael Gamo
拉斐尔·贾莫
雪橇山坐落在两层楼高的亭子上,下面有一个溜冰池,就像一条冰冻的河流。一家餐厅/咖啡馆、零售店、溜冰出租和可出租活动空间都被规划在这个空间里,这个空间是用当地的白雪松和丰都莱克石建造的。这些资产加强了该地区冬季的活动,并在夏季变成一个绿地和广场,能够举办娱乐活动和其他活动。
The sledding hill sits on top of the two-story Pavilion with a skating pond winding underneath like a frozen river. A restaurant/café, retail shop, ice-skating rental, and leasable event space are programmed inside the space, which was built using local white cedar and Fond du Lac stone. These assets strengthen activity in the district during the winter months and, in the summer months, turn into a green space and plaza capable of hosting entertainment, events and more.
© Rafael Gamo
拉斐尔·贾莫
Architects ROSSETTI
Location 1941 True Ln, Green Bay, WI 54304, United States
Lead Architect Jon Disbrow
Project Manager Mike Shea
Design Team Mike Shea, Dave Andruccioli, John Bigtacion, Ramon Corpuz, Deena Fox, Jhana Frederiksen, Kenton Higgins, Carla Landa, Rana Malik, Thomas Pustulka, Mike Paciero, John Page, Chris Pine, Chloe Siamof, Tessa Sodini-Marshall, Greg Sweeney, Matt Rossetti
Area 11287.0 ft2
Project Year 2017
Photographs Rafael Gamo
Category Recreation & Training
Manufacturers Loading...
客服
消息
收藏
下载
最近




















