查看完整案例

收藏

下载
贝希斯建筑师的Nutley露台由两座现代城镇房屋组成,在伦敦北部汉普斯特德的一个自然保护区的一个褐田遗址上有一个完整的石灰石面的立面。
Belsize Architects' Nutley Terrace comprises two contemporary town houses with an integrated, limestone-faced facade on a brownfield site in a conservation area in Hampstead, North London.
© Nick Kane
尼克·凯恩
它位于20世纪40年代的公寓楼和一系列爱德华式的城镇房屋之间,以林地为后方,在两个相邻的建筑时期之间,引入了当代的轮廓。
It is situated between a 1940s apartment block and a series of Edwardian town houses, with woodland to the rear, and introduces a contemporary profile, while mediating between the two adjacent architectural periods.
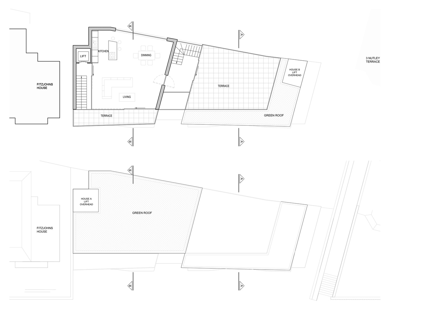
Ground Floor Plan
填塞的场地形状笨拙,没有花园的空间,它紧靠一条铁路隧道,而且出于法律上的原因,以保存原先在该地点的一些车库的实质内容。
The infill site, awkwardly shaped without space for gardens, is situated immediately over a railway tunnel and for legal reasons needed to preserve the substance of some of the garages which were previously all that was on the site.
© Nick Kane
尼克·凯恩
我们利用了这座高架建筑的优势,在楼上布置了起居室,通往大型屋顶露台,在伦敦各处欣赏南边的景色,而卧室就在下面。地下室的设计是为了容纳家庭和休闲场所。
We took advantage of the elevated site by arranging living quarters on the upper storeys, with access to large roof terraces to enjoy southerly views across London, while bedrooms are beneath. The basements are designed to accommodate family and leisure quarters.
© Nick Kane
尼克·凯恩
由木材、石头和玻璃组成的各种调色板创造了一个精心设计的单一立面,其中包含了一系列宽敞的私人阳台,以提供吸引人的室外空间。立面的流体运动主要来自周围建筑物的海湾结构。该设计创造了一个自信的当代存在,成功地标点和照亮街道。
A varied palette of timber, stone and glass creates a single carefully articulated façade which incorporates a series of spacious private balconies to provide attractive outdoor space. The fluid movement of the facade takes its lead from the bay structures of the surrounding buildings. The design creates a confident contemporary presence that successfully punctuates and lightens the street.
© Nick Kane
尼克·凯恩
Architects Belsize Architects
Location Hampstead, London NW3, United Kingdom
Area 795.0 m2
Project Year 2016
Photographs Nick Kane
Category Apartments
Manufacturers Loading...
客服
消息
收藏
下载
最近
























