查看完整案例

收藏

下载
本案用不同灰白色基调的背景色来统一整个空间,不同的空间用个性化的灯具、花艺来展现功能空间的差异,同时引导业主去体会一种健康简单优雅的现代生活方式。
▼负一层
负一层整体布置的简洁、大方,整面墙的白色系大理石显得精致、考究。不同深度的灰色系墙面和沙发让空间更有整体性。搭配未经雕琢的原木,让整个休闲厅充满了随性感。
▼一层
一层在保持整体感官连续的前提下,对不同使用者的空间作了满足个性化需求的设计:主客厅、公共交通空间现代简约、茶室会看到些许东方气质的表达。
过道没有其它繁杂的装饰,透明的玻璃楼梯、从外洒入的日光,再加上具有造型感的灯光,在点点红色插花的映衬下,融合汇聚成一幅别致的艺术格局。
开阔的客餐厅设计,使视觉得到延伸,空间的布局简约而不简单,这样一个纯粹、极致的空间具有着值得深刻考究的意义。以白色系大理石作为电视墙的背景,与木质墙面一刚一柔,加上灰色的沙发与几何形的地毯,演绎了一种自然的过渡感。
设计师特意打造出一款略带有东方气息的茶室,未经雕琢的原木桌椅显得朴实而静谧。
露台地面采用防腐木设计,令空间更有自然气息。
▼二层
二层客厅设计的干净而清透,加上古朴的枯枝摆件,为空间增添了一种神秘优雅的禅意感。
二层男孩房巧妙地用一组书柜把卧室一分为二,一半作为睡眠区,一半作为学习区,令两个功能空间互不干涉。
▼三层
三层主要作为主人休息、学习的区域。开放式的书房用不同颜色的原木和灰色系的瓷砖搭配,功能性与美感都恰到好处。
主卧室将现代简约的质感刻画得入木三分。灰色调的背景墙不需要繁琐的装饰,木制的墙面纹理自上而下贯穿。加上整面墙的大理石衬托,令空间多了一份情调。
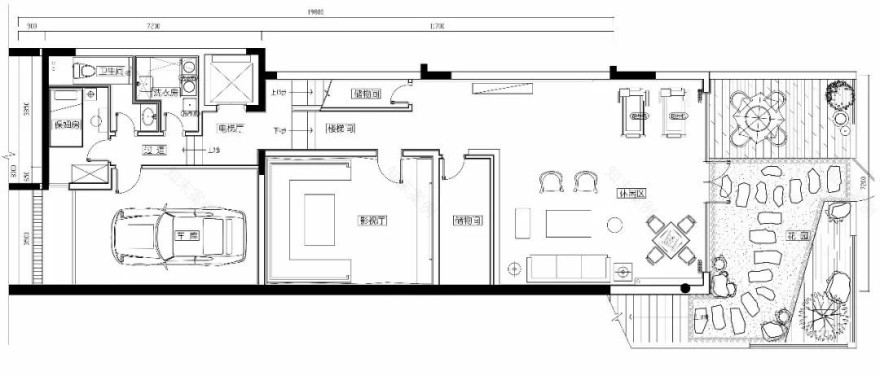
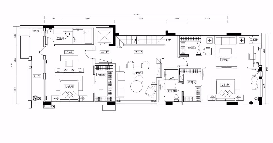
▼平面图
▲负一层
▲一层
▲二层
▲三层
客服
消息
收藏
下载
最近




























