查看完整案例

收藏

下载
架构师提供的文本描述。如今,我们生活在一个我们非常忙碌的世界里,我们需要不时地逃离它。摆脱压力、责任和文明,回到我们的根源,这一切都是从这里开始的。
Text description provided by the architects. Nowadays we live in a world where we are extremely busy and from time to time we need to escape from it. Escape from the stress, duties and civilizations back to our roots where it all started.
© BoysPlayNice
© BoysPlayNice
在过去的三年里,我们一直在重新设计、建造和测试不同类型的方舟掩体。我们想要创造一个地方,让你在大自然的中心舒适,给你一个完美的环境,让你的精神排毒。从这个角度来看,我们创造了一种新的庇护所类型:“进入野生小屋”。随着他周围的5个空缺,我们想创造一个视觉焦点的大自然周围。每一个开口都会带来另一种自然的气氛。
The past 3 years we have been working on re-designing, building and testing different types of Ark-Shelters. We want to create a place that gives you comfort in the heart of the nature and gives you the perfect setting for a detox of your mind. From this perspective we created a new Shelter type: “into the wild cabin”. With his 5 openings all around we wanted to create a visual focus of the nature all around. Each opening brings in another atmosphere of the nature.
© BoysPlayNice
© BoysPlayNice
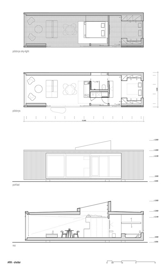
Lodge plans with text
带文本的洛奇平面图
有一个大的可开放的墙壁边和大的前玻璃使你觉得你坐在外面。浴室的牛奶玻璃窗为您提供了您所需的天然光线。我们做了一个额外的模块,它设置在屋顶上,有一个大窗户,这样你就可以在满是星星的天空下睡觉。隐蔽处,其低科技的外观,创造,使它试图与自然融合,同时完善其复杂和复杂的系统,自动与空间和光工作。
There is a big openable wall side and the big front glazing makes you feel like you’re sitting outside. The milk glass window in the bathroom gives you the all-natural incoming light you need. We’ve made an extra module which is set on the roof and has a big window so you can sleep under a sky full of stars. The Shelter¨, with its low-tech outlook facade, is created so that it attempts to blend with nature, while refining its complex and sophisticated system that automatically works with space and light.
© BoysPlayNice
© BoysPlayNice
由于有了自动系统,加热、冷却和遮阳都可以预先编程.双人床在天花板上自动上升,床下有一个隐藏的按摩浴缸,这创造了一个新的放松区域。防护罩可以通过太阳能电池板、电池和雨水收集器完全脱离电网工作.
Thanks to a automatical system the heating, cooling and shadings can be pre-programmed. The double-bed goes up automatically in the ceiling and beneath the bed there is a hidden jacuzzi, this creates a new relaxing area. The Shelter can work completely off-grid through solar panels, batteries and rain water collector.
© BoysPlayNice
© BoysPlayNice
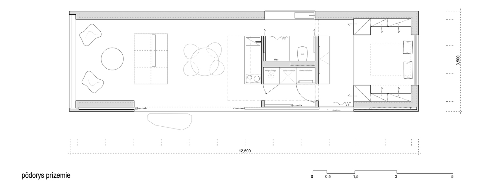
40平方米的中间有一个中央黑匣子,它创建了5个不同的区域,每一侧都是掩体中特定区域的一部分。在角落的滑动门创造了更多的空间,不同的区域可以完全分开。
The 40m2 has a central black box in the middle that creates 5 different areas, every single side is part of a particular area in the Shelter. The sliding doors in the corners create more space and the different areas can be completely divided.
由于在顶部的额外模块,我们有更多的来自上方的光线。盒子的左边是厨房和放松区,盒子后面有一个淋浴和一个水槽在窗户旁边。浴室旁边有大床和按摩浴缸。顶部的额外模块是另一间卧室,您也可以轻松地把它变成一个放松的中介区。
Thanks to the extra module on top we have more incoming light from above. The left part of the box works as a kitchen and a relaxing zone, the back of the box has a shower and a sink next to the window. Next to the bathroom we have the big bed and the jacuzzi. The extra module on top is another bedroom that you can also easily turn into a relaxing mediation zone.
© BoysPlayNice
© BoysPlayNice
这个新的庇护所对我们来说是一个全新的挑战
This new Shelter has been a totally new challenge for us an it’s all about the details, we wanted to create a place that has it all in least possible space but with all the possible luxury.
© BoysPlayNice
© BoysPlayNice
客服
消息
收藏
下载
最近































