查看完整案例

收藏

下载
© Egbert de Boer
埃格伯特·德波尔
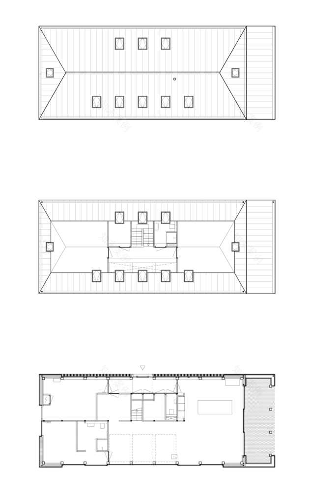
架构师提供的文本描述。VANDERSALM-AIM在t Rozendael-t Nijenhuis房地产上设计了两套住宅和一间工作室。在“红色换红色”计划的背景下,该地点现有农场的谷仓/马厩被拆除,以便为两个新的住宅目标让路。新的安排现在是一个现代化的农庄,加上现有农场的数量。住宅的位置表明了一个农场的隐私,但也提供了开阔的田园景观的具体看法。客户是孩子们的朋友。两院组织结构最重要的出发点是“与景观共存”。
Text description provided by the architects. VANDERSALM-aim designed two residences and a studio on ‘t Rozendael - ‘t Nijenhuis estate. In the context of the ‘Red for Red’ scheme, the barns/stables of the existing farm on the site were demolished to make way for two new residential objectives. The new arrangement now constitutes a modern farmyard, together with the volume of the existing farm. The positioning of the dwellings suggests the privacy of a farmyard, yet provides specific views of the open pastoral landscape as well. The clients are friends with young adult children. The most important point of departure for the organizational structure of both houses is ‘living with the landscape’.
© Egbert de Boer
埃格伯特·德波尔
现有的农场是一个复式(前屋/后屋),但由于新卷的选择情况,相关的视线保持完整,私人区域的创建没有邻居的意见。连绵不断的花园墙用来覆盖住宅的上升本质(一系列的地面水平起源于时间-一个典型的荷兰景观)。因此,这个有围墙的区域,作为一个“室外房间”变得可读性强,并且在视觉上是室内空间的一部分。花园的墙壁一直延伸到建筑物的底部,与人行道相同的石头向上延伸。这些都是胶合的,而不是砂浆,这样铺路的质地就变成了一块“石地毯”,从而构成了住宅的坚实基础。
The existing farm is a duplex (front house/rear house), but due to the chosen situation of the new volumes, relevant sight lines remain intact and private areas are created without a view of the neighbors. Continuous garden walls serve to encompass the dwellings in the ascending essenstructuur (series of ground levels originated through time - a typical Dutch landscape). This walled area, therefore, becomes readable as an ‘outdoor room’ and is visually part of the interior space. The garden walls continue through the plinths of the buildings, an upwards extension of the same stones as the pavement. These are glued, not mortar, so that the texture of the paving becomes a ‘stone carpet’ and thus comprises a solid base for the residences.
© Egbert de Boer
埃格伯特·德波尔
Elevations - House B
高地-B房
该项目反映了当代对当地谷仓类型的解释。由于深色配色方案和木制石板,农庄显得谦逊和私密。在另一个正面,高高的框架开口提供了一个无限的景观。这些房屋是用定制的木制承重结构建造的,没有可见的连接元件。结构除了承载功能外,还具有家具元素的特征。它始终是可见的,指的是棚屋;清晰、务实和清醒,但仍然很详细。在缺乏基于复杂性或外观的解决方案的情况下,设计决策仅以重要性、构造性和景观为基础。
The project reflects an interpretation of local barn typologies in a contemporary manifestation. The farmyard appears modest and private due to the dark color scheme and wooden slats. On the other facades, high framed openings offer an unlimited view of the landscape. The houses are constructed with a custom-made wooden loadbearing structure without visible joining elements. Aside from its bearing function, the structure acquires the character of a furniture element. It remains visible throughout and refers to the shed; clear, pragmatic, and sober, but nonetheless finely detailed. In the absence of solutions based on complexity or appearance, the design decisions are solely grounded in materiality, tectonics, and the landscape.
© Egbert de Boer
埃格伯特·德波尔
住宅实际上是能量中性的,它们是非常好绝缘的、无气体的,并且配备有空气源热泵。每个房屋具有大约40个光伏(PV)面板,其被结合在位于该地块边缘的单独的Sunken域中。停车区可以对电动汽车进行充电,在农院区不停车。这两个住宅都有一个宽敞的室内阳台,在南侧,在夏天和保护期间提供了自然的热缓冲。
The residences are virtually energy neutral; they are very well-insulated, gas-free, and equipped with an air source heat pump. Each house has roughly 40 photovoltaic (PV) panels which are incorporated in a separate sunken field situated at the edge of the plot. Electric cars can be charged in the parking area, and there is no parking on the farmyard terrain. Both residences have a spacious indoor veranda on the south side, which provides a natural heat buffer during the summer and protection for the greater part of the year.
© Egbert de Boer
埃格伯特·德波尔
底层采用低温加热,采用整体混凝土地板,效率高。建筑材料质量上乘,主要由木材组成。VANDERSALM-AIM是一个由建筑大师推动的办公室.建筑师作为建筑大师,从造物主的角度来看待他的领域,专注于情感(对建筑环境和景观的热爱)、幸福(地域性)以及自然的建筑对象(构造)。
The ground floor is equipped with low-temperature heating and has a high efficiency due to the monolithic concrete flooring. The building materials are of top quality and comprised primarily of wood. VANDERSALM-aim is an office driven by architectural mastery. The architect as master builder approaches his field from a maker’s standpoint and focuses on affection (love for the built environment and the landscape), well-being (groundedness), and the built object as a matter of course (tectonics).
© Egbert de Boer
埃格伯特·德波尔
Architects VANDERSALM-aim
Location The Netherlands
Lead Architect Bart van der Salm
Area 390.0 m2
Project Year 2017
Photographs Egbert de Boer
Category Houses
Manufacturers Loading...
客服
消息
收藏
下载
最近
























































