查看完整案例

收藏

下载
架构师提供的文本描述。麦克尤恩大学新的艺术和文化中心,阿拉德大厅,创造了一个优雅的入口标志,其城市中心校园在埃德蒙顿,AB。这座建筑的焦点是它的中央多层双层中庭,中间有引人注目的斜角人行桥,连接着五层楼中的每一层,从地面到顶层,自然光通过牧师进入。
Text description provided by the architects. MacEwan University’s new urban centre for arts and culture, Allard Hall, creates an elegant entrance landmark to its City Centre Campus in Edmonton, AB. The building’s focal point is its central, multi-storey double atria crossed by dramatic angled pedestrian bridges linking each of its five floors, from the ground to the top floor where natural light pours in via clerestoreys.
© Ema Peter
(EMA Peter)
每个楼梯的阳台在循环交叉处形成一个“巢”,提供一个暂停和非正式学习的区域,这与建筑的社交和协作学习中心形成了鲜明对比。这座建筑的设计强调了AllardHall作为汇聚思想和社会互动中心的身份,展示了生机勃勃的学生、工作人员和游客活动。
A balcony at each stairway creates a ‘nest’ at circulation intersections, offering a zone (perch) for pause and informal learning in contrast to the building’s social and collaborative learning hubs. The building’s design emphasizes Allard Hall’s identity as a hub for converging ideas and social interaction by showcasing a vibrant spectrum of student, staff, and visitor activities.
Nests Diagram
巢图
© Ema Peter
(EMA Peter)
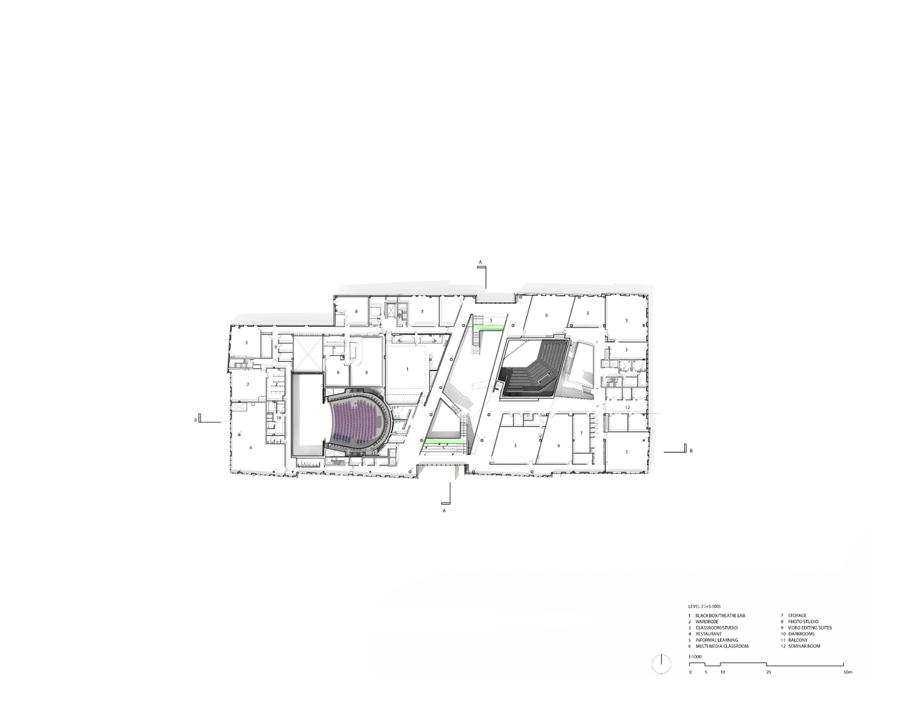
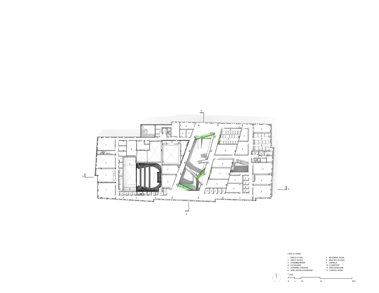
Allard Hall的一系列表演和教育空间完美地结合了尖端的学术和文化功能,包括:演播室、教育和办公空间;450个座位的前场剧院、一个200个座位的独奏厅、一个100个座位的黑匣子剧院;画廊以及一系列高科技计算机实验室、视觉艺术、数字和声音工作室。
Offering a perfect combination of cutting-edge academic and cultural functions, Allard Hall’s array of performance and educational spaces includes; studios, classrooms, educational and office spaces; a 450-seat proscenium theatre, a 200-seat recital hall, a 100-seat black-box theatre; galleries, and a range of high-tech computer labs, visual arts, digital and sound studios.
© Ema Peter
(EMA Peter)
© Ema Peter
(EMA Peter)
该建筑迷人的外观展示了一个现代的,光滑的幕墙外观,具有波浪状的形式,微妙地指一个舞台窗帘,一个恰当的比喻,动态和功能的建筑物。最新的能源建模技术优化了外墙的组成和机械系统的能源效率,这对于埃德蒙顿寒冷的冬天至关重要,并将有助于其LEED银靶。
The building’s captivating exterior presents a modern, sleek curtain wall façade featuring wavy forms to subtly reference a stage curtain, an apt metaphor for the dynamics and function of the building. Latest energy modeling techniques optimized the composition of the façade and the energy efficiency of mechanical systems which is crucial for Edmonton’s cold winters and will aid its LEED Silver target.
© Ema Peter
(EMA Peter)
© Ema Peter
(EMA Peter)
AllardHall是一个复杂的互动和协作场所,鼓励探索、创造力和学习。它的画廊和多个剧院,也作为一个首要的公共表演和活动场所在埃德蒙顿市中心的中心。
Allard Hall is a complex place of interaction and collaboration that encourages exploration, creativity, and learning. With its galleries and multiple theatres, it also functions as a premier public performance and event venue in the heart of Edmonton’s downtown.
Architects Revery Architecture
Location 11110 104 Ave NW, Edmonton, AB, Canada
Design Architect Revery Architecture
Design Principals Bing Thom, Venelin Kokalov
Architectural Team Jacqueline Wiles, Bibianka Fehr, Andrea Flynn, Sanaz Nooshafarin, Elaine Tong, Kyle Chan, Culum Osborne
Area 430000.0 ft2
Project Year 2017
Photographs Ema Peter
Category University
Manufacturers Loading...
客服
消息
收藏
下载
最近

































