查看完整案例

收藏

下载
© Camille Gharbi
c.Camille Gharbi
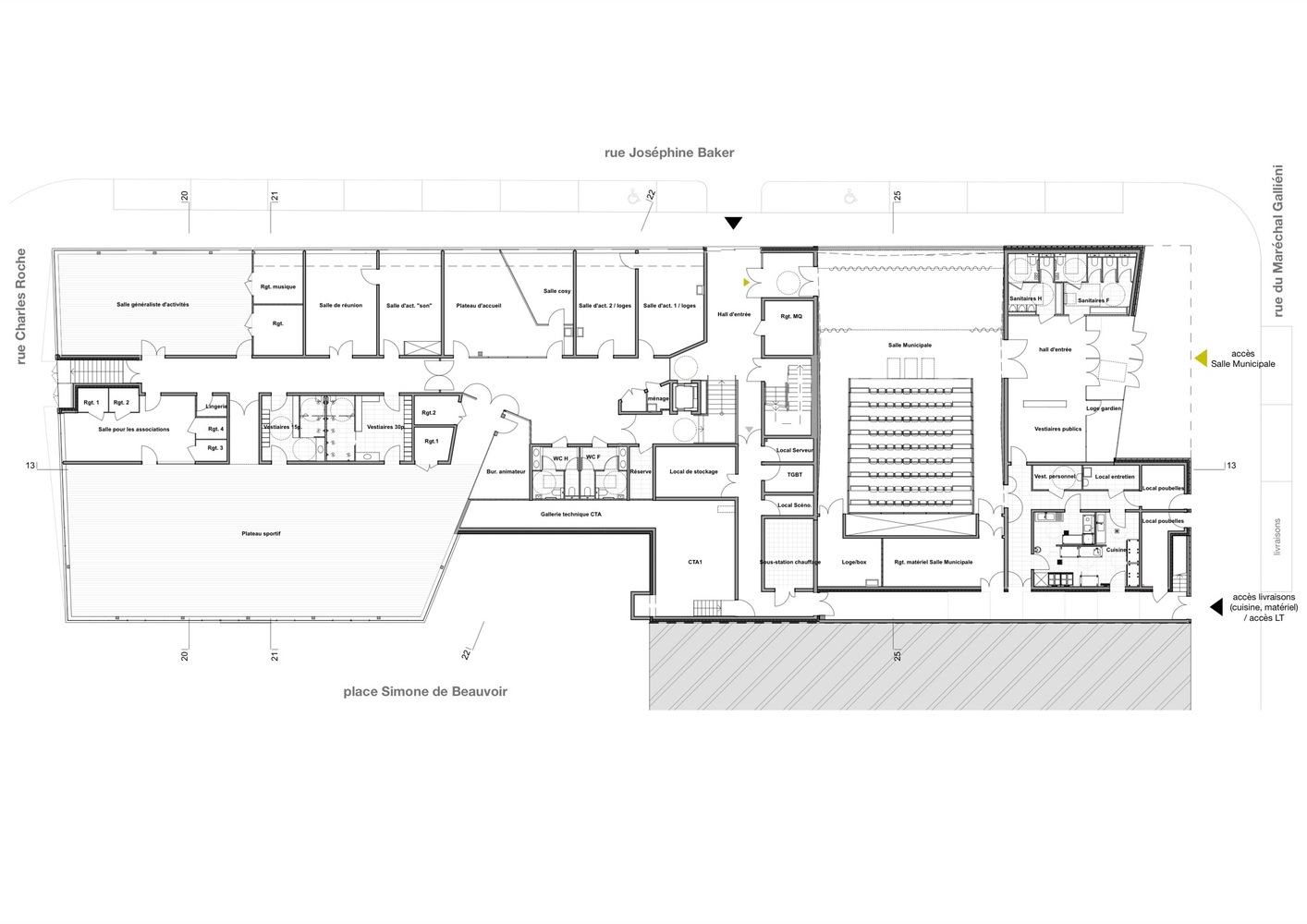
架构师提供的文本描述。在兰斯奥格瓦尔区市区重建的中心地带,这是一个破旧的60年代住宅区,有其问题,它在一个新的大广场和三条不同的街道上开放,而与一个住房和服务街区很大程度上是毗连的。
Text description provided by the architects. At the heart of the urban renewal of the Orgeval district in Reims, that is a worn-down sixties housing estate area with its problematics, the building opens up on a new large plaza and three different streets, while being largely contiguous to a housing and service block.
这座大楼结合了两个不同的方案。
This building combines 2 distinct programmes.
首先,Salle市政空间,或事件空间,披着黑砖,是一个大型的多用途活动空间。有了一个可移动的座位系统,它可以主持从大型聚会,音乐会,预测和剧院表演的一切。主要空间的内部是混凝土,交替光滑和纹理表面。墙壁单元是倾斜的,从来没有平行于彼此,以打破声音反射和最佳的声学性能。
First The Salle Municipale, or Event Space, clad in dark brick, is a large multipurpose event space. With a movable seating system it can host everything from larger gatherings to concerts, projections and theatre performances. The interior of the main space is in concrete, alternating smooth and textured surfaces. The wall elements are skewed, never parallel between each other, to break sound reflexes and for best acoustic performance.
© Camille Gharbi
c.Camille Gharbi
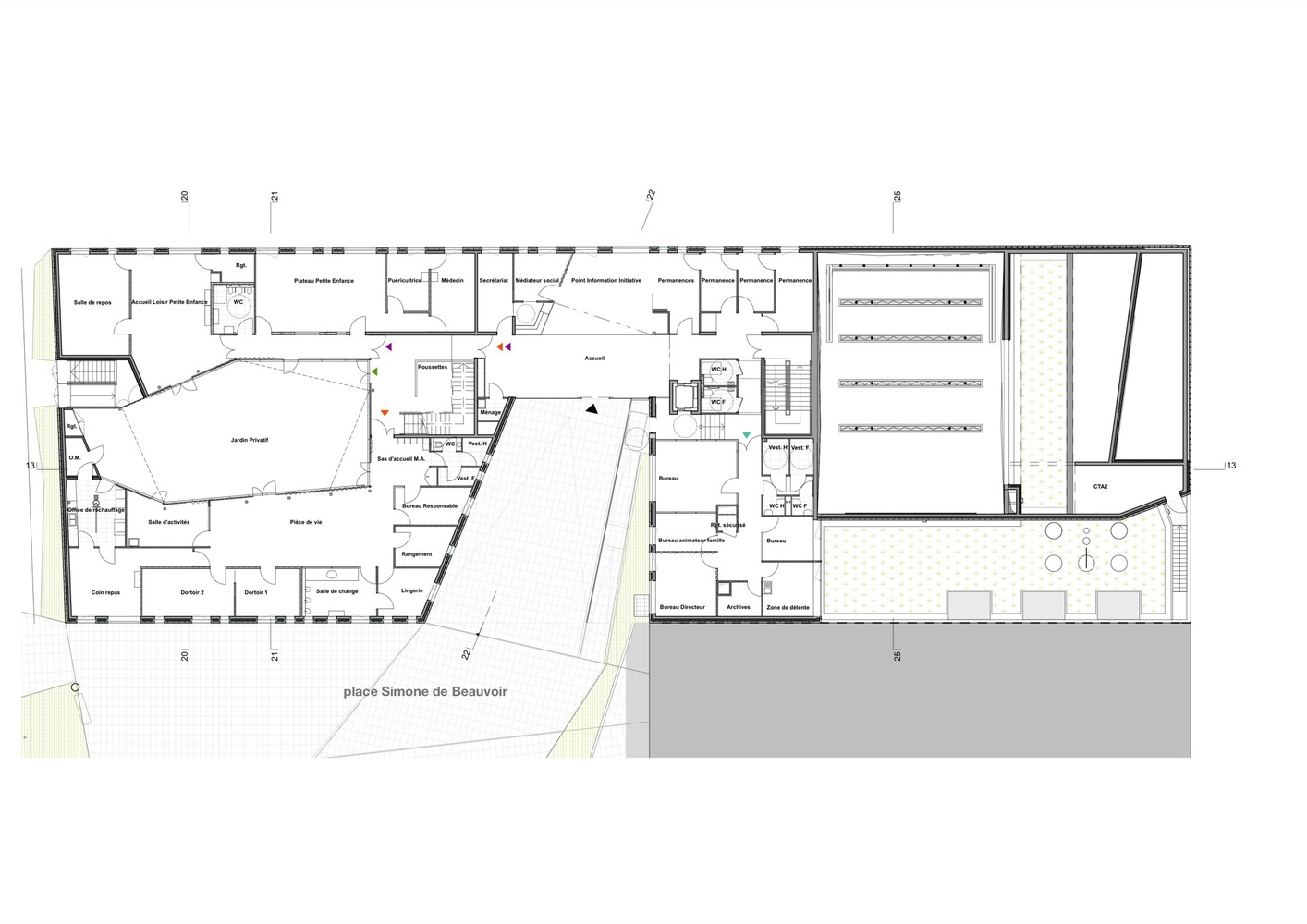
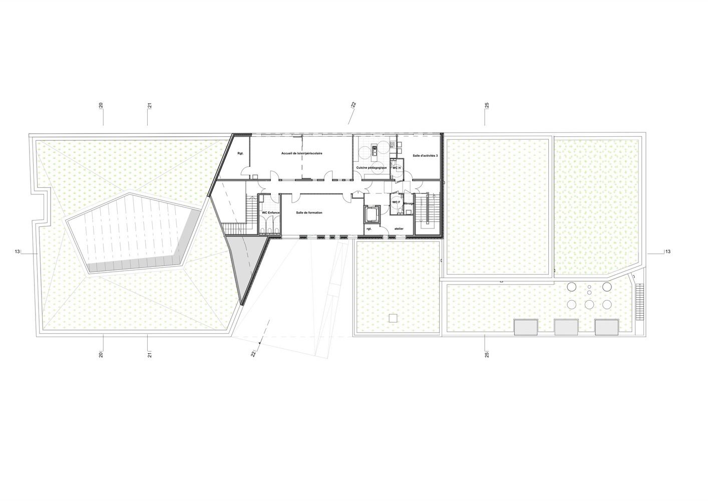
另一方面,第二个主要组成部分,即社区中心或四分位者Maison,为有体育、健身房和拳击场地、教室和车间、日托的地区居民提供更多的日常设施,但也为青年和老年人提供空间和活动,以及社会服务。
The second main component, the community center or Maison the Quartier, on the other hand offers more day-to-day facilities for the areas inhabitants with sports, gym and boxing spaces, classrooms and workshops, daycare, but also spaces and activities for youth and elderly, as well as social services.
© Camille Gharbi
c.Camille Gharbi
这座建筑利用了建筑组织中地势变化的不同之处。这座建筑具有象征性地向外部开放,建筑的建筑质量和透明插座都很大。一个大坡道,作为广场的延伸,通向正门大厅。
The building uses the differentiations in the shifts of the topography on the site in its organization. The building is symbolically open to the exterior with its upheaved built mass and transparent socle. A large ramp, that works as an extension of the plaza, leads to the main entrance hall.
© Camille Gharbi
c.Camille Gharbi
活动场所、车间和运动场都被降下,在街道和新广场上有着巨大的玻璃表面,使它们具有鲜明的工作室特征。因此,它提供了他们的意见,居民的邻居,这是致力于这座建筑。
The activities, workshops and sports area are lowered with large glazed surfaces to the street and the new square, giving them a distinct atelier character. Thus it offers them to the view of the inhabitants of the neighborhood to whom this building is devoted.
© Camille Gharbi
c.Camille Gharbi
儿童和日托的空间被抬高并与广场隔离。他们被组织周围,并打开一个大露台,作为他们的户外游乐场。在炎热的夏天,这个庭院可以用机械的纺织品覆盖和遮荫。
Spaces for children and daycare are raised and isolated from the plaza. They are organized around and open up to a large patio that serves as their outdoor playarea. On hot summer days, this patio can be covered and shaded with a mechanical textile covering.
© Camille Gharbi
c.Camille Gharbi
许多不同职能的组织是有机的,但有条纹的,有区别的。这转化为立面,因为建筑物将自己与周围的建筑区分开来,为这一地区的更新提供了一个特征。
The organization of the many disparate functions is organic, yet striated, differentiated. This translates into the façades as the building sets itself apart from the surrounding architecture giving an identity to the renewal of this area.
© Camille Gharbi
c.Camille Gharbi
产品说明:
Product Description:
在项目中使用的两种不同的砖块类型(暗砖和轻砖),两种区分两个主要方案(社区中心(浅灰砖)和活动空间(暗砖)。
Two different brick types (dark and light) where used in the project two differentiate the two main programmes (Community center (light grey brick) and event space (dark brick).
© Camille Gharbi
c.Camille Gharbi
浅灰色砖来自参考的Quartis的VanderSanden,被称为手工砖(不规则的表面有折痕,床面有特定的凹痕),颜色均匀,形状不规则。深色砖来自Wienerberger,参考的是忙碌的黑色。表面比手工砖光滑,但是每一块砖都有一个独特的不均匀的表面颜色,这给建筑带来了一个独特的图案,但每一块砖都有一种特殊的窒息热干燥工艺和添加剂。
The light grey brick is From Vandersanden , reference Quartis, and is what is called handmade brick (irregular surface with a creased texture, with a specific indentation in the bed surface) that is homogenous in color but irregular in shape. The dark brick is from Wienerberger , reference Hectic Black. The surface is smoother than a handmade brick, but with a special choked heat drying process and additives every brick has an individual heterogeneous surface color giving a distinct pattern to the building.
© Camille Gharbi
c.Camille Gharbi
这种砖被用作外墙覆盖层(安装在固定在混凝土上的钢架上,中间是矿物绝缘层)。我们不想看到迫击炮接缝和垂直膨胀节。迫击炮是放在非常薄的层,凹槽3-4厘米.对于垂直伸缩缝(强制每60平方米):它们被简单地视为每隔10-15米垂直运行的砖块之间的裸露接缝。
The brick is used as façade cladding (mounted on steel consoles that are fixed on the concrete, with the the mineral insulation in-between). We didn’t want the mortar joints nor the regulatory vertical expansion joints to be visible. The mortar was put in very thin layers, recessed by 3-4 cm. For the vertical expansion joints (mandatory every 60 sqm) : they were simply treated as open seams between the bricks running vertically every 10-15 meters.
Architects f+f architectes
Location Reims, France
Area 2500.0 m2
Project Year 2016
Photographs Camille Gharbi
Category Community Center
Manufacturers Loading...
客服
消息
收藏
下载
最近









































