查看完整案例

收藏

下载
架构师提供的文本描述。麻谷,哈普京东正在经历许多变化。日本当仁日发电厂是韩国第一家热电厂,80多年来一直负责向该城市供电。本世纪初,由于发电机的老化和首尔城市景观的改善,首尔决定将发电厂埋在地下,并在上面建一个公园。由于这些变化,当仁日电厂附近的地区逐渐经历了士绅化的过程,该地区许多地价较低的住宅被改造为商业空间。
Text description provided by the architects. Mapo-gu, Hapjeong-dong is undergoing many changes. Dangin-ri Power Plant, the first thermal power plant in Korea, has been responsible for supplying power to the city for more than 80 years. In the 2000s, due to the aging of the generator and to enhance the cityscape of Seoul, the city decided to underground the power plant and create a park above. Due to these changes, the area near the Dangin-ri power plant gradually underwent the process of gentrification, and many of the residential buildings in this area, which had low land prices, have been transformed into commercial spaces.
© SongYuSub
© SongYuSu
Hapjeong 359-18是在这种背景下重新设计的。现有的大厦由三层楼组成,是一幢住宅大厦。一楼是租用的,二楼和三楼由业主使用。顾客买下了这座大楼,并根据哈平洞的变化趋势将它改成了一座商业大楼,然后将它出租给餐馆、咖啡馆和办公室。此外,这座建筑是用砖块建造的,必须经过大量的结构加固才能进行改造。
Hapjeong 359-18 was remodeled in this background. The existing building, which was composed of three floors, was a residential building. The first floor was rented and the second and third floors were used by the owner. The client bought the building and changed it to a commercial building in accordance with the changing trend of Hapjongdong, so as to rent it to restaurants, cafes and offices. In addition, the building was built of brick and had to undergo a lot of structural reinforcement for remodeling.
© SongYuSub
© SongYuSu
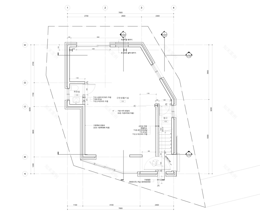
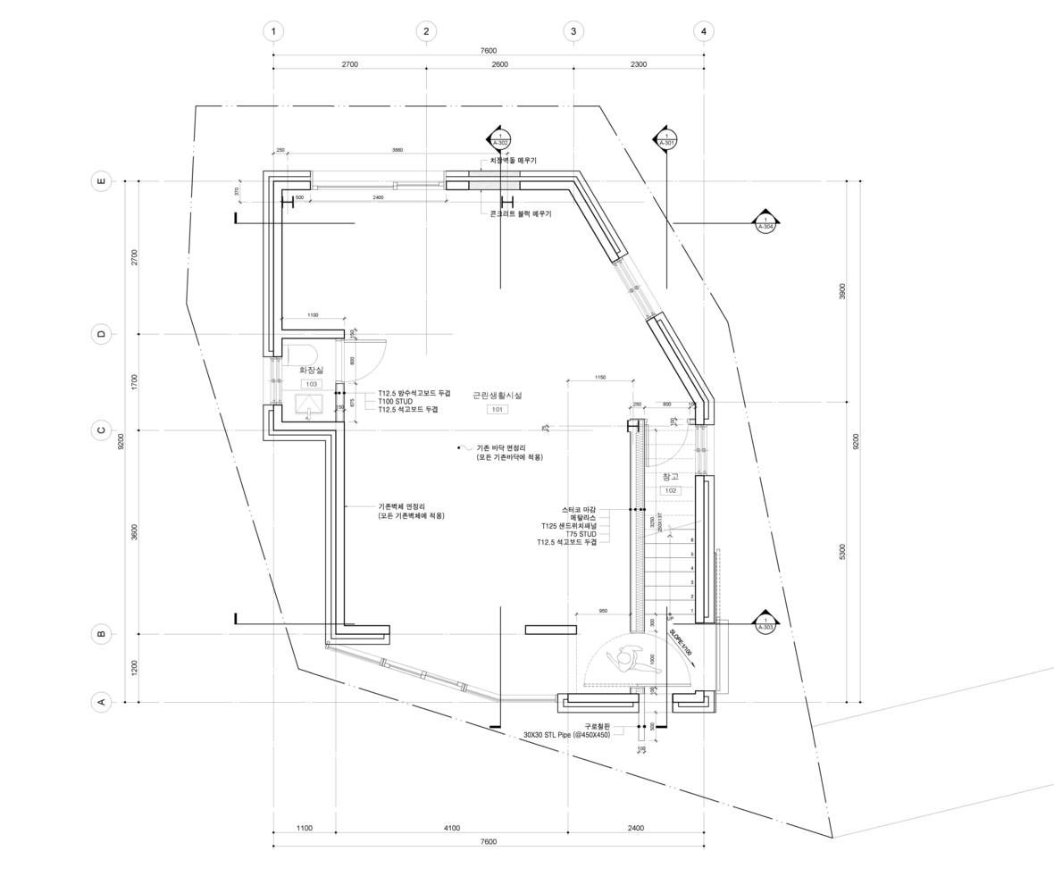
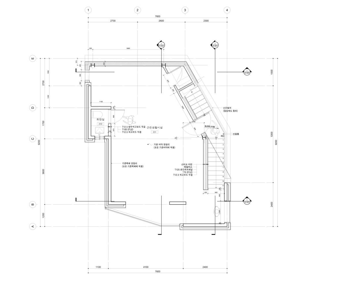
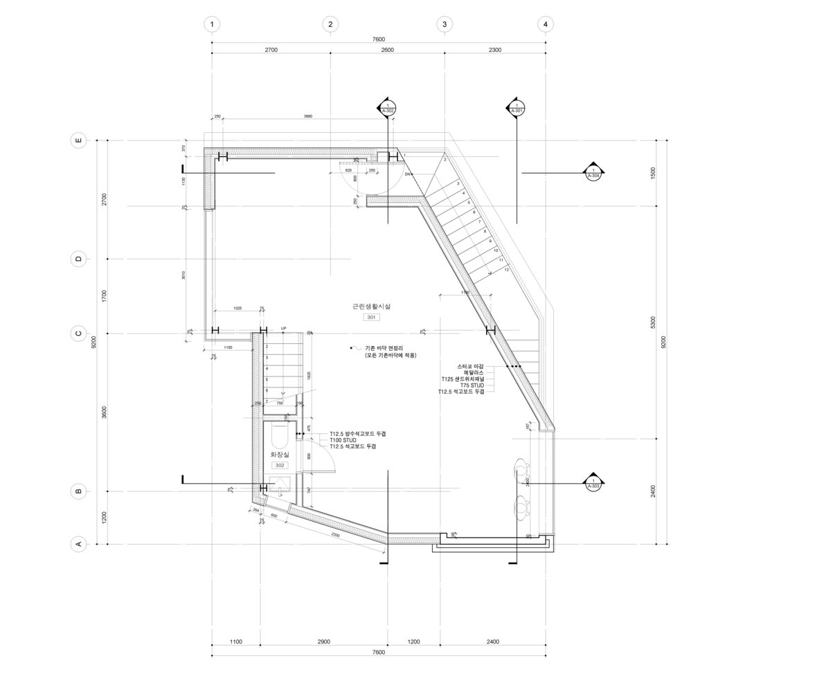
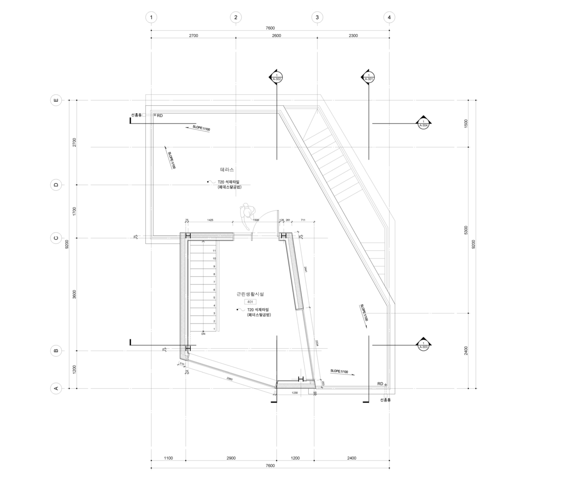
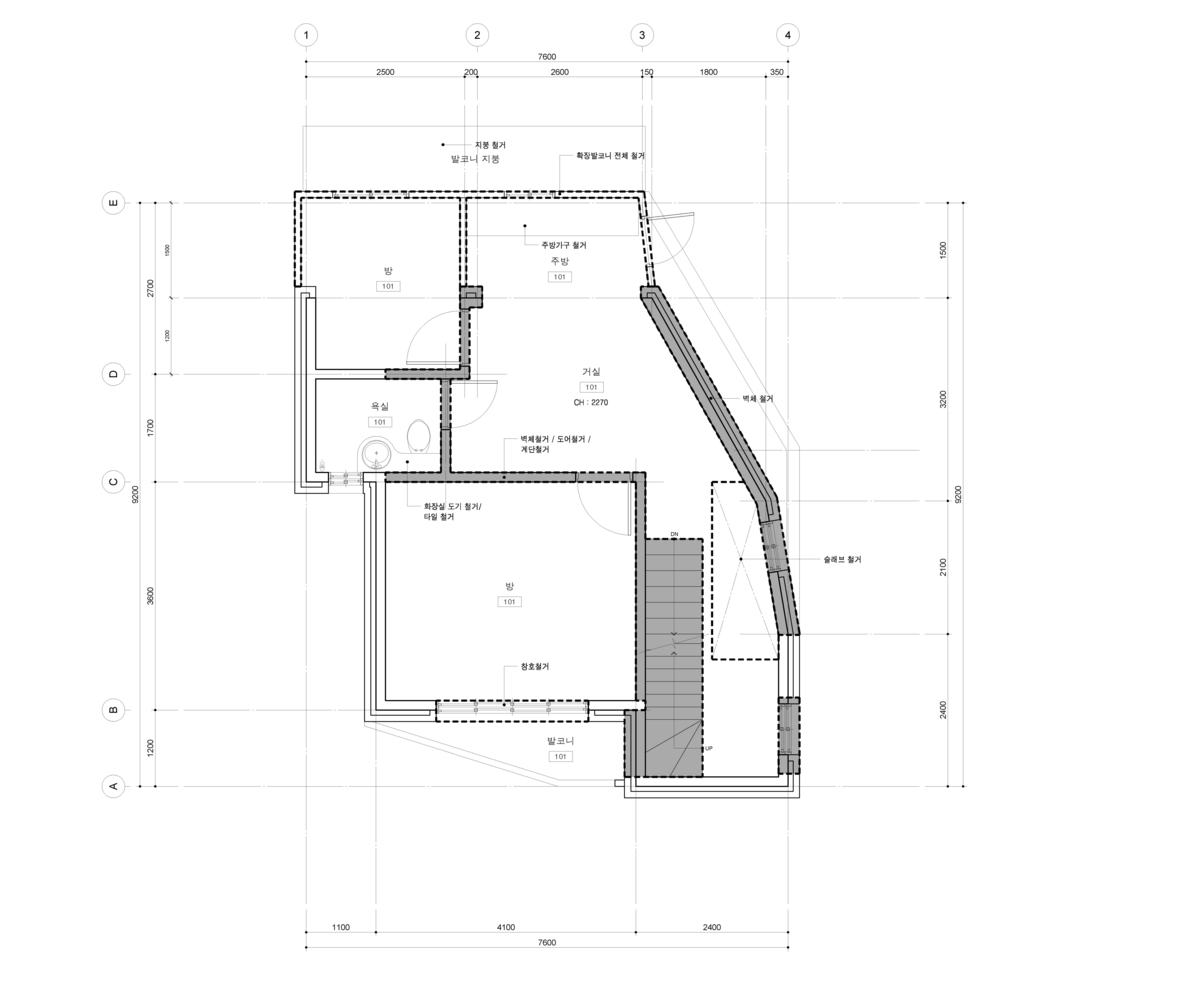
现有建筑在入口的右侧有一个门,供租户在一楼使用,而业主和室内楼梯通往二楼和第三层的通道位于前面。尤其是,从二层到三楼的楼梯太陡峭,必须用适当的楼梯来更换。该建筑扩展到四层建筑,楼梯位置向外改变,允许从外部楼梯独立进入每个楼层,从而最大限度地最大化每个楼层的视觉暴露量。此外,与来自第三楼层的内部楼梯连接的第四楼层具有单独的屋顶露台,其提供朝向新构造的当林-RI公园的视图。
The existing building had a door on the right side of the entrance to be used by the tenant on the first floor, and a doorway used by the owner and an indoor staircase to the second and third floors were located on the front. Especially, the stairs going up from the 2nd floor to the 3rd floor were too steep and had to be changed with proper stairs. This building was expanded to four story building and the stairway position was changed outwards, allowing independent entry from outside stairs to each floor, thereby maximizing the visual exposure of each floor. In addition, the fourth floor which is connected with the interior stairs from the third floor has a separate roof terrace that provides a view towards the newly constructed Dangin-ri Park.
© SongYuSub
© SongYuSu
现有的建筑物原来是用红砖砌成的。南、北、西的主干道上几乎看不到外露的高地被涂成白色,以尽量减少建筑成本,而主立面的东立面则用白色灰泥铺上,与窗户的黑色钢框架形成对比。
The existing building was originally cladded with red brick. While the south, north, and west elevations that have little visual exposure from the main access road were painted white to minimize the construction cost, the east elevation which is the main façade was cladded with white stucco, contrasting with the black steel frame of the window.
© SongYuSub
© SongYuSu
客服
消息
收藏
下载
最近

























