知末
知末
创作上传
VIP
收藏下载
登录 | 注册有礼

意外 青云居设计

2018/07/15 00:00:00
查看完整案例
微信扫一扫
收藏
下载
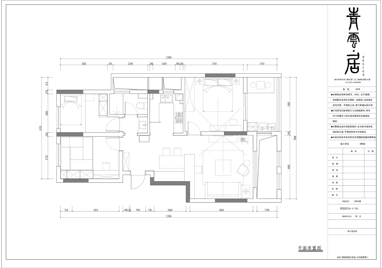
这是王小姐和何悟胡的第一套房子,也是他们的婚房,80后对待第一套婚房的装修,还是有一点追求的,希望可以住着舒服,没想到,万万没想到,装修完住着太舒服了,以至于小两口天天非常眷恋家庭的温馨感觉,不想去工作。
意外  青云居设计-1
意外  青云居设计-2
意外  青云居设计-3
意外  青云居设计-4
意外  青云居设计-5
意外  青云居设计-6
意外  青云居设计-7
意外  青云居设计-8
意外  青云居设计-9
意外  青云居设计-10
意外  青云居设计-11
意外  青云居设计-12
意外  青云居设计-13
意外  青云居设计-14
意外  青云居设计-15
意外  青云居设计-16
意外  青云居设计-17
意外  青云居设计-18
意外  青云居设计-19
意外  青云居设计-20
意外  青云居设计-21
意外  青云居设计-22
意外  青云居设计-23
意外  青云居设计-24
意外  青云居设计-25
意外  青云居设计-26
意外  青云居设计-27
意外  青云居设计-28
意外  青云居设计-29
意外  青云居设计-30
意外  青云居设计-31
北欧 混搭 青云居设计
南京喵熊网络科技有限公司 苏ICP备18050492号-4知末 © 2018—2020 . All photos and trademark graphics are copyrighted by their owners.增值电信业务经营许可证(ICP)苏B2-20201444苏公网安备 32011302321234号
客服
消息
收藏
下载
最近