查看完整案例

收藏

下载
里斯本位于 Alfama 山坡上,是一个可以眺望塔古斯河口的圆形剧场。在山脚下20世纪初港口垃圾填埋场的平地上,新游轮码头建筑重新回到这里:一个小的竞技场,背对着河岸,回头望向城市。
作为2010年国际竞赛中最小的建筑,即使在露天停车场和潮汐池,它仍紧凑地穿插在已经填埋的旧 Jardim do Tabaco 码头的墙间。建筑仿佛漂浮在地面之上,栖居在河岸边。它从地面升起,将公共空间与自身一起提升,变成了一个阶梯式的抽象的地形——如同一舟中转的木筏在河流和城市之间。
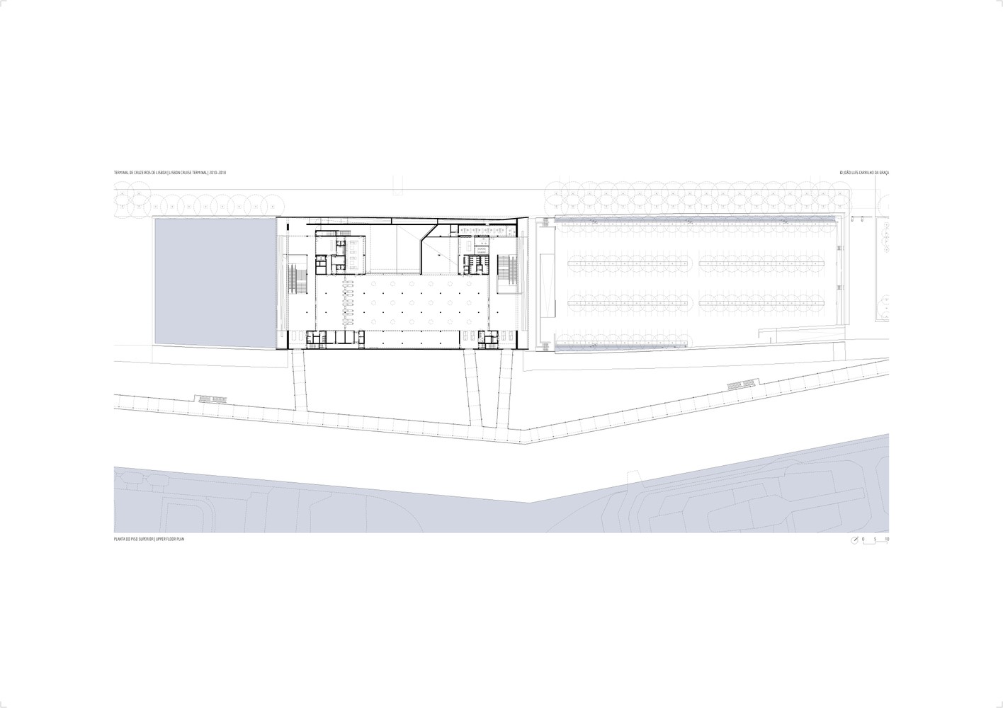
码头的功能容纳在这个外壳之下,从地面升起:停车场位于地下(可以连接到露天停车场);行李托运,处理和赔偿在地面层;旅客业务(登记,候船室,VIP室,免税店,公共咖啡店等)在上层;所有的灵活空间和停车场一样,都考虑到码头未来的发展,在其他自然事件,固定时间和非应季之外,则作为一个海事站。
码头建筑外层使用软木和白色混凝土建造结构建造的外骨骼包裹,这是为减轻建筑物重量的专门开发的方案,受限于已经存在的基础,该概念来自 Carrilho da Graça 最初里斯本双年展的实验设计,它有一种特殊的触感,通过入海口反射的阳光,即著名的“里斯本之光”而变得明亮。
在河岸方向,码头仿佛城市里一座不起眼的石头房子,而靠近城市一侧则以明显的折痕提示出入口,由此协调了使用者与河岸城市之间的视觉关系:这是一个几乎总是在运动中使用的建筑物中,沿着舷梯和凉廊,走在屋顶上,走在通往主立面的切线方向上,目光可以四处飘荡,仿佛身处电影场景之中。
客服
消息
收藏
下载
最近















































