查看完整案例

收藏

下载
这次 ttg 的年轻人们希望把一起一起青年旅舍北京店的理念带到苏州,在关注居住舒适度的同时,更加注重居住之外的交流与体验,更加注重营造年轻化的社区环境。
苏州一起一起·湿地小鹿青年旅舍一经运营,便作为了 2018 年威尼斯建筑双年展主宾城市苏州日分会场。
项目的起始点来自于对青旅选址建筑及相邻城市环境的学习。
建筑位于苏州最为繁华商圈之一的道路节点,曾经是在苏州七八十年代鼎盛期的北塔商场,有着悠久的经营历史与深厚的苏州市井氛围。
因建筑地处繁华的城市,与市井商业街道相邻,人们早已习惯把这栋建筑的立面视作沿街的商铺。
▼保留沿街商铺
▼改造过程
▼空间内设计一个可以对外营业的咖啡厅
在空间设计上,一起一起苏州店设计从底层沿街店铺入手,用五个嵌入式玻璃房子小店和一个入口的走廊,对原有相对沉闷的外观进行干预,直至向建筑内部空间定向延伸,最大程度地增加了建筑的通透程度。
这让人们在路过这些店铺时,可以看到内部公共区域乃至更多的层次,以及其中发生的活动。
这些店铺将建筑的室内空间、建筑前的步道、举办市集时作为扩充场地的广场缝合到了一起。
▼入口走廊串联内部各个空间
▼公共区域联结了住宿空间与沿街店铺,从而共同形成了一个居住与年轻化市集的结合体
▼公共活动区
客房空间,在注重隐私度和舒适度的基础上,也尽可能增加了开放与联结的设计元素——在与底层商铺对应的二层区域,多间客房的晾衣区和内部活动区在视觉上彼此相连接,共同构成了一条完整的外廊。
这些想法和具体的操作使得苏州这座城市得到了一个生动活跃的“年轻人的立面”, 并让原有的建筑具备了一些“室内园林”的通透性。
▼客房空间
▼多间客房的晾衣区和内部活动区在视觉上彼此相连接,共同构成了一条完整的外廊
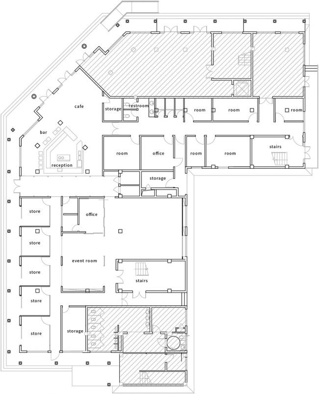
▼一层平面图
▼二层平面图
客服
消息
收藏
下载
最近




















