查看完整案例

收藏

下载
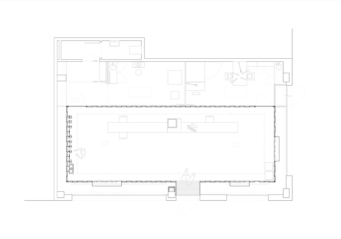
该项目包括在奥洛特(赫罗纳,加泰罗尼亚)作为现有局部翻新的光学。尽管有一个非常低的预算,同时在客户的理念和建筑师是提出与周围的店铺比较有吸引力的外观。我们想要与创建了该程序和内容将连接成光环境具有光学畸变的恒定效应创造模糊,光与影的气氛的玩。
这把我们带到了基础干预对创建“一个盒子到另一个盒子”。它的建立在边框样式,而不是把它在传统的双面方式的U-玻璃盒子。这给了我们的条件相同的面孔在两侧,并帮助降低成本。这种玻璃盒子定义了商业和公共领域本身,而第二个框是当地周边本身。这两者之间,会有订购的私人和产品计划。
U型玻璃箱下令在定义它周围不同大小给予回应不同要求的位置:在两个街道立面,那里有展示,U型玻璃盒子给60厘米分开,但在后面的部分它给了足够的距离放置办事处。
这种结晶皮肤穿有不同的窗口旁的街道和广场在它前面创建的外部和内部之间的关系。这样,它产生的恒人以外的动作和内部创造朝着搞砸通过窗户突然定义视觉U型玻璃框中显示的阴影和扭曲的认识上的动态效果。它给人的印象是一个眼睛里面的努力,找到正确的方式去看看。这样,立面成为一个不断变化的皮肤,寻找不同,这取决于在白天和夜间的光线和人发生了什么。
客服
消息
收藏
下载
最近









