查看完整案例

收藏

下载
© Jim Stephenson
吉姆·斯蒂芬森
架构师提供的文本描述。这所房子的扩建和翻新改造了一个维多利亚时代的梯田在海布里保护区。简短的是创造一个开放的规划空间,改善与花园的关系,以及一个可以作为社交空间享受的厨房。原来的厨房很黑,天花板的高度很低,只有两米多一点。
Text description provided by the architects. This house extension and refurbishment transforms a Victorian terraced property in a Highbury conservation area. The brief was to create open plan spaces with an improved relationship to the garden, and a kitchen that could be enjoyed as a social space. The original kitchen was dark and had a very low ceiling height of just over two meters.
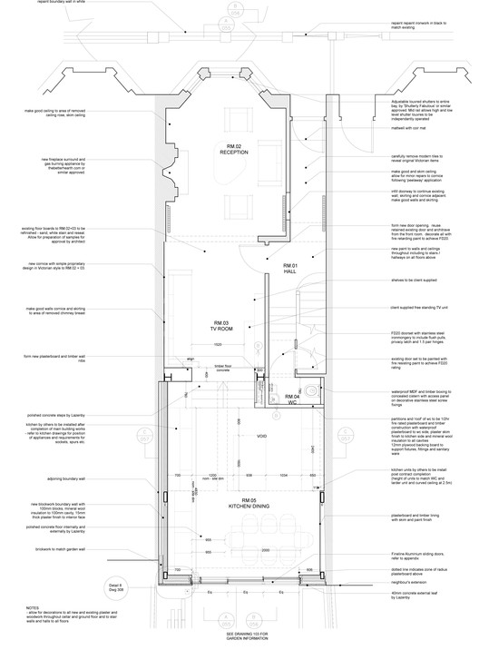
Proposed Ground Floor Plan
拟议底层图则
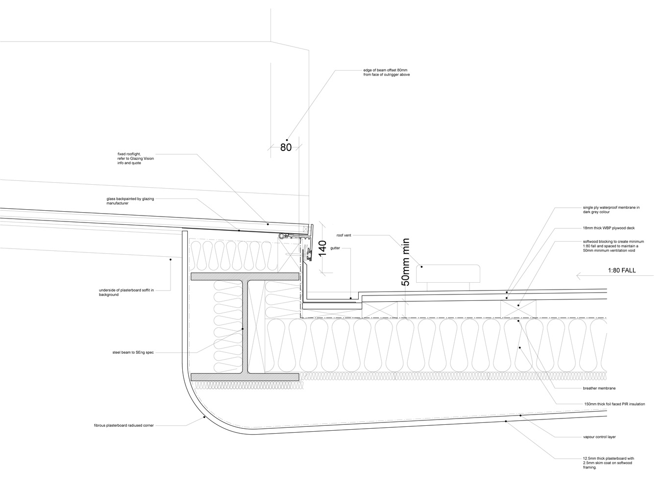
工程包括拆除位于地面和一楼的质量较差的温室和原有的后部房间。这允许在新厨房中创建双高度空间。定制抛光的不锈钢枝形吊灯增加了戏剧,反射强调了双高度空间的垂直度。抛光的不锈钢表面在内部继续有一个凹陷的不锈钢展示柜和外部带有包层的细节。
Works included the demolition of the poor quality conservatory and original rear rooms at both ground and first floors. This allowed a double-height space to be created in the new kitchen. A bespoke polished stainless steel chandelier adds drama and the reflections emphasize the verticality of the double height space. Polished stainless finishes are continued internally with a recessed stainless display case and externally with cladding details.
© Jim Stephenson
吉姆·斯蒂芬森
高的,3.1米的细框玻璃门可以不间断地看到外部,一个雕刻的天花板轮廓与弯曲的灰泥引导眼睛朝向花园。前一条狭窄的走廊不适合携带大型物品进入厨房,因此重新配置了一层平面图,并创造了一条更为慷慨的流通路线。
Tall, 3.1m fine framed glass doors allow uninterrupted views to the exterior, and a sculpted ceiling profile with curved plasterwork leads the eye toward the garden. The previous narrow corridor was unsuitable for carrying large items through to the kitchen, so the ground floor plan was reconfigured and a more generous circulation route created.
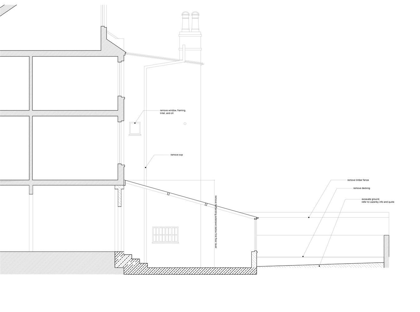
Proposed Section B
拟议B节
这现在通过接待室,一个大的开放到厨房连接的空间,并允许良好的自然光水平在后接待室。厨房抛光的混凝土地板提供了一个均匀的纹理表面,并一直延伸到花园,这与延伸的覆盖层相匹配。花园设计的特色是一个定制的木栅栏,在石灰石上种植花盆。
This now leads through the reception rooms, with a large opening to the kitchen connecting the spaces and allowing good natural light levels in the rear reception room. The polished concrete floor of the kitchen provides a uniform textured surface that continues into the garden, and this matches the extension cladding. The garden design features a bespoke timber fence with planters in limestone.
Architects Architecture for London
Location London, United Kingdom
Lead Architects Architecture for London / Ben Ridley
Area 95.0 m2
Project Year 2014
Photographs Jim Stephenson
Category Houses Interiors
Manufacturers Loading...
客服
消息
收藏
下载
最近




























