查看完整案例

收藏

下载
景翔会所项目荣获2017金外滩奖最佳休闲娱乐空间设计奖
景翔会所坐落在一座公寓式写字楼的顶楼,是景翔建筑设计顾问有限公司董事长贾涛先生创立的一个书画、艺术交流平台。
原始建筑层高较低,下水管、烟道、消防等管道错综复杂,过道狭小光线弱,为空间的设计增添了很大的难度。
原始建筑层高较低,下水管、烟道、消防等管道错综复杂,过道狭小光线弱,为空间的设计增添了很大的难度。
电梯间是会所的起点,设计师加重了传统材料的比例,利用小青瓦叠垒、细竹密拼、实木天花格栅,呈现出点、线、面的交错效果,让顾客一开始就感受到浓厚的传统文化气息。
过道受消防管道的影响,空间净高离地只有2.2m。设计师在过道顶面设置了两块向上凹的灯光膜,巧妙的营造出一个向上拉伸的视觉感受。过道的垂直高度,解决了空间对人的压迫感。
过道受消防管道的影响,空间净高离地只有2.2m。设计师在过道顶面设置了两块向上凹的灯光膜,巧妙的营造出一个向上拉伸的视觉感受。过道的垂直高度,解决了空间对人的压迫感。
在传统绘画理论中,“留白”能提供一个无限遐想的空间,也能寄托丰富的情感。
空间景物不尽可观,或则有可取之景,通过“圆框”把景物引入其中,形成一副定格的画面。
在整体白色基调的空间中,设计师为了寻求其变化,利用青砖、瓦片与漏窗构成出两处别具一味的艺术墙,增加了空间的层次感。
灯光能给人们带来温暖,同样,灯光也能区隔出空间,门厅与展厅通过灯光的冷暖对比,使两个空间既独立又交融。
少即是多,结构既是美,楼梯间在满足功能的基础上,去除了一切多余的装饰和符号,把装饰还原给结构。
展厅的主角是展陈的对象,空间是它们的载体。白色的主调,灰色的地面,深色艺术砖瓦和花格窗,颜色、材质之间的跳跃节奏,宛如一首动听的乐曲。天花保留原有结构梁与楼板,局部的吊顶,恰好解决了消防管道、空调设备的外露。
保留了原有建筑结构的特点,将展厅靠窗的局部空间延伸至二楼,让观展者拥有一个独特的感观。
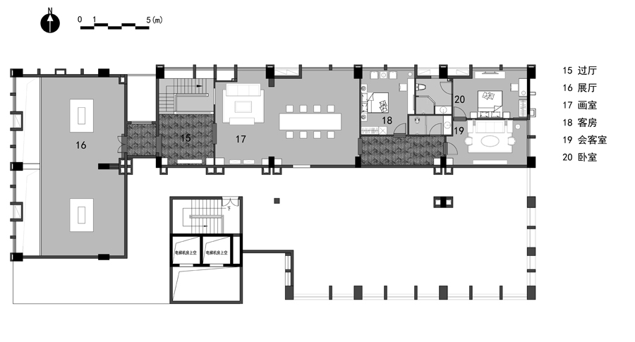
主创设计: 廖仓健 设计团队: 如一设计 项目地点: 中国 长沙 中建芙蓉嘉苑 设计时间: 2015年9月 设计面积: 810㎡ 主要材料: 青石板、青砖、老门板、白沙、水曲柳木饰面、灯光膜、玫瑰金不锈钢
景翔会所、如一设计、会所、廖仓健
客服
消息
收藏
下载
最近




















