查看完整案例

收藏

下载
© Priscilla Paggiaro
(Priscilla Paggiaro)
架构师提供的文本描述。这所房子是在一片土地上设计的,地势优越。街道两旁没有邻居,这使得宽敞的空间得以在没有隐私的情况下消失,并将自然光和天空的变化融入到内部环境中。
Text description provided by the architects. The house was designed on a land with prime location within the allotment. The lack of neighbors on their sides facing the street allowed generous openings without loss of privacy and incorporating to the internal environment the natural light and the sky with its transformations.
© Priscilla Paggiaro
(Priscilla Paggiaro)
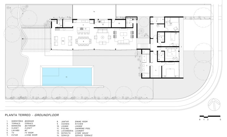
该项目提出了两个具有不同用途和形式的区块,以明确区分生活的两个方案概念:社会化和回忆。
The project proposes two blocks with different uses and forms to clearly separate two programmatic concepts of living: socialization and recollection.
社会化是在“开放”中经历的。它与园林和景观的充分结合,提出了一种人、景、地关系的新形式。在这部分房子里有生活区、烹饪区、社交区和娱乐区。
Socialization is experienced in the "open house". Fully integrated with the garden and the landscape, it proposes a new form of relationship between people, landscape and place. In this part of the house are located the living areas, cooking, socializing and entertainment.
© Priscilla Paggiaro
(Priscilla Paggiaro)
沿着主空间的大滑动门用自然光照射室内,使花园和天空成为内部环境的一部分,强调内外空间之间的联系,而不限制这些空间之间的循环。
Large sliding doors along the main space bathe the interior with natural light and allow the garden and the sky to be part of the internal environment, accentuating the connection between the internal and external spaces, without limitations to the circulation between these spaces.
© Priscilla Paggiaro
(Priscilla Paggiaro)
聚会发生在“封闭的盒子”中,旨在保护个性。它回到了社会领域,气氛既适合休息,也适合反思。一个照顾身体和灵魂的地方。
The gathering happens in the "closed box", designed for the protection of individuality. With its back to the social areas, the atmosphere is suitable for both rest and reflection. A place to take care of body and soul.
© Priscilla Paggiaro
(Priscilla Paggiaro)
在这个街区,它漂浮在花园里,位于卧室里。它面向东方的窗户和森林让我们看到日出,享受大自然的寂静。
In this block, which floats on the garden, are located the bedrooms. Its windows facing east and the forest allow us to witness the sunrise and enjoy the silence of nature.
Sketch Section
草图科
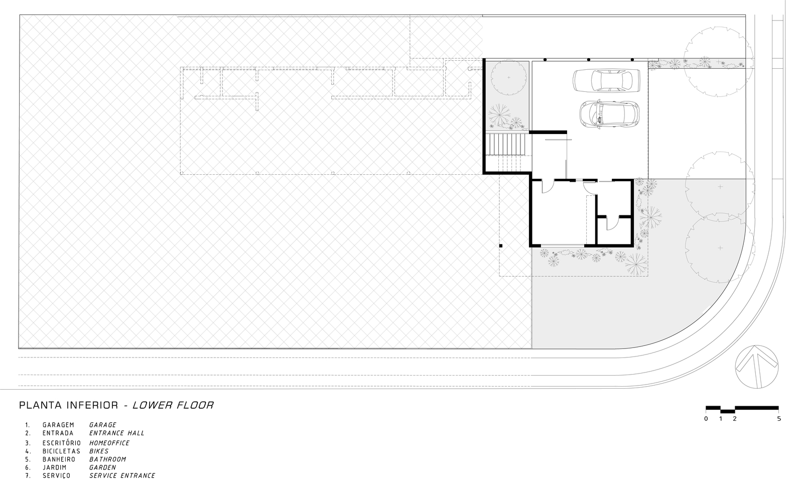
宿舍的体积由两个特征相反的元素支撑。一边是一块石头砌块的沉重,办公室就在那里,另一边是一个没有填满的车库,背景是一个花园。
The volume of the dorms is supported by two elements with opposite characteristics. On one side the heaviness of a stone block, where the office is located and on the other the lightness of the unfilled garage with a garden in the background.
© Priscilla Paggiaro
(Priscilla Paggiaro)
景观美化的概念是扩大在社会领域中的多样性和使用自由。建议将草坪作为室内区域和游泳池露台的延伸。为了隐私起见,高大的物种被放置在陆地的边界上,一个树篱取代了传统的封闭墙。
The concept of landscaping was the expansion in the variety and freedom of use in social areas. The lawn is proposed as an extension of the indoor areas and pool terrace. For privacy, tall species have been placed along the boundaries of the land and a hedge replaces the traditional closing walls.
© Priscilla Paggiaro
(Priscilla Paggiaro)
在房子里散步是一种感受不同气氛、纹理、感觉、声音和视觉效果的体验。
Walking around the house is an experience to feel different atmospheres, textures, sensations, sounds and visuals.
Architects Ricardo Ropelle Felippi Arquiteto
Location Vila Alvorada, Brazil
Area 446.9 m2
Project Year 2015
Photographs Priscilla Paggiaro
Category Houses
Manufacturers Loading...
客服
消息
收藏
下载
最近



























