查看完整案例

收藏

下载
结构工程师法安易结构加固工程威工江室内装修上海天池建筑装饰有限公司王金芳合作者J
Structure Engineer Fa'an Yi Structural Reinforcement Construction Weigong Jiang Interior Renovation Construction Shanghai Tianci Building Decoration Co., Ltd, Jinfang Wang Collaborators J&CO design More Specs Less Specs
Dining Room. Image © Shengliang Su
餐厅。形象(生梁苏)
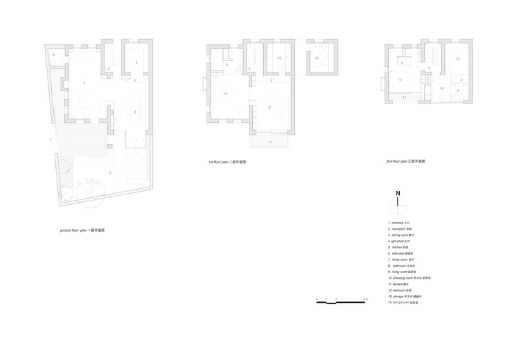
架构师提供的文本描述。巷居(简称李龙)是上海独特的居住类型。这座城市的城市结构曾经是如此密集,现在只剩下少数几个了。该项目位于上海法租界区,目的是改造上世纪30年代这种带有庭院的车道房屋,以容纳三间卧室,配备独立的卫生间和设施,满足用户的日常需求。
Text description provided by the architects. Lane house (or Li long) is a unique residential typology of Shanghai. The urban fabric of the city was once densely constituted of such kind, now only a handful remained. Located in Shanghai French concession area, the project was to remodel such a 1930s’ lane house with a courtyard to accommodate three bedrooms with independent restrooms and facilities meeting the users’ daily needs.
Axonometric
关于原来的场地,设计小组处理了一种谨慎的手术方法,在房子中央切了一个狭小的开口,使人想起了南方那些小传统房屋中典型的窄光轴之一。精心保存和暴露部分木质结构,平衡新旧关系。该项目唤起了一种具有现代建筑语言的中国南方乡土民居的感觉。
With respect to the original site, the design team dealt with a discreet surgical approach, cutting a slim opening in the center of house, reminds one of the typical narrow light shaft in those small southern traditional houses. Carefully preserving and exposing parts of the wooden structure, balancing the relation between old and new. The project evokes a sense of southern Chinese vernacular dwelling with modern architectural language.
Living Room. Image © Shengliang Su
起居室。形象(生梁苏)
该遗址是一座三层楼的房子,由木制桁架和砖墙支撑,这在30年代很常见。房子分成两个海湾,房间又窄又深。东侧海湾被分成两个隔间,后面被楼梯占据,相邻的小房间被分成四层,一个只能从楼梯上的半月台进入。因此,后面的房间比正面的房间高出一半,这是车道房的一个典型特征。我们的主要重点是如何恢复这个极其填充,但没有适当照明的老房子,并连接分裂的水平。
The site is a three-story house supported by the wooden trusses and brick bearing walls which is common during the 30s. The house was divided into two bays, the rooms were narrow and deep. The east side bay had been split into two compartments, the back was occupied by the staircase and the adjacent small rooms which had been dissected into four levels, one can only enter through the semi-platform on the stairs. Therefore, the back rooms are half a level above the frontal rooms, which is a typical trait of a lane house. Our main focus stands upon how to revive this extremely stuffed yet not properly lit old house, and connect the split levels.
Light Shaft. Image © Shengliang Su
轻轴。形象(生梁苏)
建筑师们没有增加更多的空间,而是采取了一种相反的方法-在东侧海湾的中间,从一层到另一层,从一层到一层的狭小开口。4:1长径比是南方传统小民居典型的窄光轴之一。透过透明半透明的玻璃,阳光以柔和的触感进入中心的室内空间。
Instead of adding more space, the architects took an opposite approach- cutting a slim opening from ground floor to roof between the split and the main floors in the middle of the east side bay. The 4:1 aspect ratio reminds one of the typical narrow light shaft in those small southern traditional houses. Enclosed with transparent and translucent glass, Sunlight shed into the interior space at the center with a gentle touch.
Frame. Image © Shengliang Su
框架。形象(生梁苏)
Sketch Cut
草图切割
3rd Room. Image © Shengliang Su
第三房间。形象(生梁苏)
随着阳光的移动,玻璃盒从明亮到暗淡,光轴形成了房子的内部同心度。在一楼,一座桥穿过它,进入以前有墙的阁楼,与主空间形成对话。在二楼,阁楼里的卧室看着穿过明渠的洗手间,在那里有几个台阶把两个房间连接起来。
With the move of sunlight, the glass box glows from bright to dim; The light shaft formed the inner concentricity of the house. On first floor, a bridge penetrates through it and goes into the previously walled attic room, forming a dialogue with the main space. On second floor, the bedroom in the attic looks into the restroom across the light shaft where a few steps linking the two rooms.
Staircase. Image © Shengliang Su
楼梯。形象(生梁苏)
竖井的高度垂直合成这三层,其深度重新分配空间的形式水平。通过植入这样一个光轴,允许空气和光的庆祝,同时也交织了分裂的地板,丰富了家庭生活的空间体验。
The height of the shaft vertically synthesizes the three floors, and the depth of it redistributes the forms of space horizontally. By implanting such a light shaft, allows the celebration of air and light and also interweaves the split floors, enriches the spatial experience of domesticity.
1st Bath Room. Image © Shengliang Su
第一间浴室。形象(生梁苏)
Living Room. Image © Shengliang Su
起居室。形象(生梁苏)
建筑师们在室内使用这种材料是有节制的。设计师们通过一系列的结构加固,有意地保护和暴露了木结构的部分,把新旧结合在一起。从顶层阁楼到底层,一直用木板包裹着整个房子,沿着楼梯蜿蜒而行;木板变成了箱子和墙壁,铅在一楼餐厅里蔓延开来,一直延伸到院子里。橡木和白色的调色板给家一种宁静的色调。
The architects employed the material in the interior with restraint. Intentionally preserving and exposing parts of the wooden structure, the designers united the new and old through a series of structural reinforcement. A continuous use of wooden plank wrapped up the entire house from the top attic to the ground floor, following the tortuous thread along the staircase; the planks were transfigured into chests and walls, and the lead spread on the first floor dining room, extending into the yard. The palette of oak and white gives the home a tranquil tone.
Architects Atelier TAO+C
Location Shanghai, China
Design Team Tao Liu, Chunyan Cai, Weilu Wang, Shengding Liu, Lihui Han, Qianjuan Wang
Area 190.0 m2
Project Year 2017
Photographs Shengliang Su
Category Houses Interiors
Manufacturers Loading...
客服
消息
收藏
下载
最近






























