查看完整案例

收藏

下载
传统湘西风格结合现代材料 — 张家界·六甲设计酒店
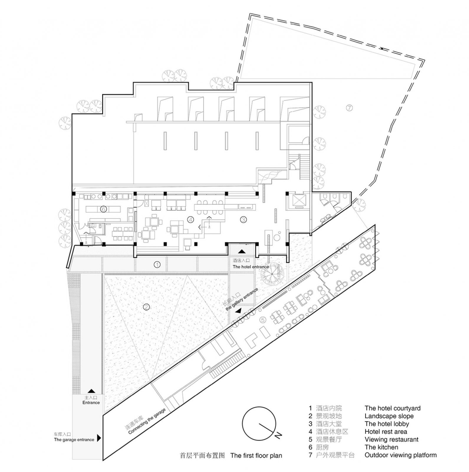
张家界·六甲酒店(SIXX Hotel)位于湖南省张家界武陵源景区核心地带,酒店依山而建,溪水从酒店门下经过,隔水相望是武陵源景区主入口和景区繁华的景区商业街,酒店区域是张家界景区里闹中取静的一块风水宝地。
通过自然的山地高差和后期设计的优化,酒店内形成一个绿意盎然高低起伏的内庭院。
庭院内还保留了原有几十年树龄的枇杷树、杏树和桃树。
酒店依山而建,建筑师把地块的高差特性融入酒店空间,利用自然高差组织空间的观景流线,让景观成为酒店的一部分,提升酒店整体品质。
为了改善原有建筑的停车问题,建筑师利用地势高差,在入口处加建了一个半地下车库。
沿着酒店外沿的崖壁,建筑师建造了一条观景面极佳的全景玻璃长廊,给酒店提供瑜伽、健身、餐饮、聚会的功能。
半地下车库与景观长廊内部空间相连通,外部空间的坡道-绿植坡地-景观长廊利用自然高差形成了一条连贯的观景平台,并与酒店主体建筑围合成一个相对私密的内庭院。
建筑师以湘西本土建筑的传统语言为基础,运用现代材料重新赋予酒店以新的风貌。
建筑外立面多以当地的青石板石材、灰瓦、白墙、红松木等传统材料,结合不锈钢、金属拉伸网板、玻璃等现代材料。
参考湘西传统建筑熏黑色窗棂格栅,建筑师在酒店主体建筑的外立面上安装了用黑色金属拉伸网板加工制作成的折叠式遮阳窗。
即体现了湘西传统建筑的风格,又满足了酒店客房在山区盛夏季的遮阳需要。
酒店前台
对于酒店室内空间的设计风格,建筑师体现的更多的是利用原生质朴材料,刻画空间、处理光线,而简化表皮、饰面的装饰。
为了呼应湘西文化里质朴、神秘、野性的气质,室内空间里大量运用了灰水泥、白石水磨石、红松木、黄铜、植鞣革等材料。
大堂
客服
消息
收藏
下载
最近





























