查看完整案例

收藏

下载
© Scott Norsworthy - Andrew Latreille
(斯科特·诺斯沃西-安德鲁·拉特维尔
架构师提供的文本描述。新学生中心位于特伦特大学标志性交响乐团校园的正门处,是对联系的简明探索:将建筑物与邻近奥托纳比河的田园景观连接起来;将新建筑与周围最初校园建筑的历史先例连接起来-由加拿大现代建筑大师罗恩·托姆(RonThom)设计;最重要的是,在一个充满活力和鼓舞人心的环境中,把学生们联系起来。
Text description provided by the architects. Located at the main entrance to the Trent University’s iconic Symons Campus, the new Student Center is a concise exploration of connections: connecting the building with the bucolic adjacent Otonabee River landscape; connecting new construction to the historical precedent of the surrounding original campus architecture—designed by Canadian modern architectural master Ron Thom; and, most importantly, connecting the students with one another in a dynamic and inspiring setting.
© Scott Norsworthy - Andrew Latreille
(斯科特·诺斯沃西-安德鲁·拉特维尔
CONTEXT & PROGRAM Directly adjacent to the University’s iconic Bata Library on the campus’ waterfront, the building creates important new links from campus entry points to the riverside and surrounding landscape. Replacing a parking lot, the site is framed by the campus entry road to the west, the existing library to the north, the Otonabee River and pedestrian “Founders Walk” to the east, and a mature woodlot to the south, with the University’s existing Athletic Center beyond. The main entrance of the building addresses the principal bus stop at the campus gateway, through which thousands of students arrive each week. Another entrance connects the pedestrian path along the campus entry road. Both of these circulation paths form an ‘X’, where a new indoor student “Forum” connects directly to the riverside—naturally connecting campus elements that had previously been isolated.
© Scott Norsworthy - Andrew Latreille
(斯科特·诺斯沃西-安德鲁·拉特维尔
Concept Diagram
概念图
© Scott Norsworthy - Andrew Latreille
(斯科特·诺斯沃西-安德鲁·拉特维尔
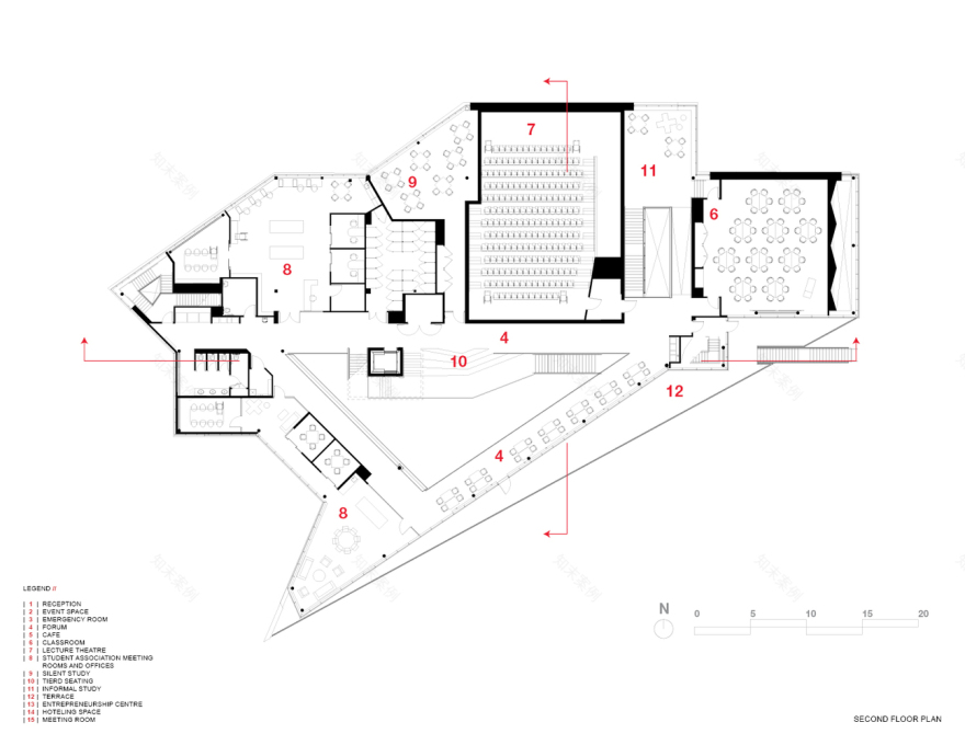
PROGRAM & INTERNAL ORGANIZATION A unique feature of the facility is that it seamlessly integrates both student centre and formal learning spaces, which have been arranged to ensure all building areas are well used and animated over the course of each day. Program areas include a variety of informal student lounges, collaboration and study spaces, student club spaces, new offices for the Trent Student Association, a multi-purpose event space, and a range of classroom/lecture spaces. The new student spaces were intended to relieve pressure from overcrowding in the adjacent existing library, and work to create a larger student social and study precinct at the heart of the campus.
© Scott Norsworthy - Andrew Latreille
(斯科特·诺斯沃西-安德鲁·拉特维尔
这座三层楼的建筑是围绕着论坛组织起来的,整个三层楼的高度都是由论坛构成的,人们可以从那里看到建筑物的所有活动。论坛的中心性和可见度是设计的关键,它是社会活动的中心,也是直观地导航和访问所有设施程序的中心。学生们通过楼梯、长凳、休息室和各种相邻的学习区域组成循环脊柱,跟随更大的城市流动进入这个空间,并通过建筑物向上移动。论坛空间的灵活性还将允许它举办音乐会、招聘会和其他对特伦特学生生活至关重要的活动。
The three storey building is organized around the Forum, which rises through the full 3-storey height of the structure and from which one can view all of the activities of the building. The centrality and visibility of the forum is key to the design, acting as a hub for social activities as well as for intuitively navigating and accessing all of the facility’s programs. Students follow the larger urban flow of circulation into this space and up through the building via a circulation spine composed of stairs, benches, lounges, and a variety of adjoining study areas. The flexibility of the forum space will also allow it to host concerts, job fairs, and other events central to Trent student life.
Transverse section
Longitudinal section
DESIGN & TECHNICAL PRINCIPLES Featuring a solid ground-level façade on the road side, the building opens to panoramic views south to the river, and to the larger campus and surrounding landscape from the upper storeys. A true indoor-outdoor space, interior gathering spaces open to exterior patios and terraces. From the river side, the legibility of the building’s floor plates subtly references the geometry of the adjacent Bata library in a more elongated, organic language.
© Scott Norsworthy - Andrew Latreille
(斯科特·诺斯沃西-安德鲁·拉特维尔
响应一种愿望,连接到原来的特伦特校园设计,同时也达到一个独特的和当代的方法,自然美的网站,面向道路的一面,建筑是一个独特的照片蚀刻预制混凝土。预制板的外部装饰是从一个独特的粗骨料混凝土的形象使用在巴塔图书馆和整个校园,增强了动态褶皱在面板形式。可见的外部木材屋顶结构-由200毫米深道格拉斯杉木玻璃梁-联系周围的树木环境,以及详细的原始大学建筑。同时,楼层的物质性、细节性和强烈的横向表达有助于与罗恩·托姆校园的重要性和形式逻辑进行沟通,并提供一个更轻松、更尊重的当代反义词。
Responding to a desire to connect with the original Trent campus design but also to arrive at a unique and contemporary approach to the natural beauty of the site, the road-facing side of the building is clad with a unique photo-etched precast concrete. The precast panels’ exterior finish was created from an image of the distinctive rough aggregate concrete used on the Bata Library and throughout the original campus, enhanced by dynamic folds in the panel forms. Visible exterior wood roof structure—comprised of 200mm deep douglas fir glulam beams—ties both to the surrounding wooded environment as well as detailing in the original university buildings. Together, the materiality, detailing and strong horizontal expression of floor levels serve to communicate with and offer a lighter, respectful contemporary counterpoint to the materiality and formal logic of the Ron Thom campus.
First floor plan
第一层平面图
以被动方式为中心的建筑设计以务实的可持续战略为基础。该建筑经过仔细考虑的方向和实心到空的关系,利用冬季从南部和东部获得的热量,但深檐确保关键地区遮阳夏季阳光。自然通风是通过中心的大型3层论坛提供的。该幕墙玻璃达到高性能通过使用低-E,着色和开裂的玻璃单位,其中充满氩。其他措施包括空气处理装置的能源回收、LED照明和低流量管道装置。作为社会可持续性愿望的基础,并延续特伦特作为一个社会进步机构的历史,这座建筑符合大学严格的无障碍准则,并纳入了重要的空间,如无性别厕所和母乳喂养区。
A pragmatic sustainable strategy underpins the design of the building, centred on passive approaches. The building’s carefully considered orientation and solid-to-void relationships take advantage of heat gain in winter from the south and east but deep canopies ensure key areas are shaded from summer sun. Natural ventilation is provided through the Center's large 3-storey forum. The curtain wall glazing achieves high-performance through use of Low-E, tinted and fritted glazing units that are filled with argon. Other measures include energy reclamation on air handling units, LED lighting and low flow plumbing fixtures. Underpinning a desire for social sustainability and to continue Trent’s history as a socially progressive institution, the building meets University’s stringent accessibility guidelines, and incorporates important spaces such as gender free washrooms and a breastfeeding area.
© Scott Norsworthy - Andrew Latreille
(斯科特·诺斯沃西-安德鲁·拉特维尔
Architects Teeple Architects
Location Peterborough, ON, Canada
Project Team Stephen Teeple, Chris Radigan, Darryl Biedron, Eric Boelling, Aiden Mitchelmore, Julie Jira, Polly Auyeung, Tanya Cazzin
Area 34000.0 ft2
Project Year 2017
Photographs Scott Norsworthy - Andrew Latreille
Category University
Manufacturers Loading...
客服
消息
收藏
下载
最近

























