查看完整案例

收藏

下载
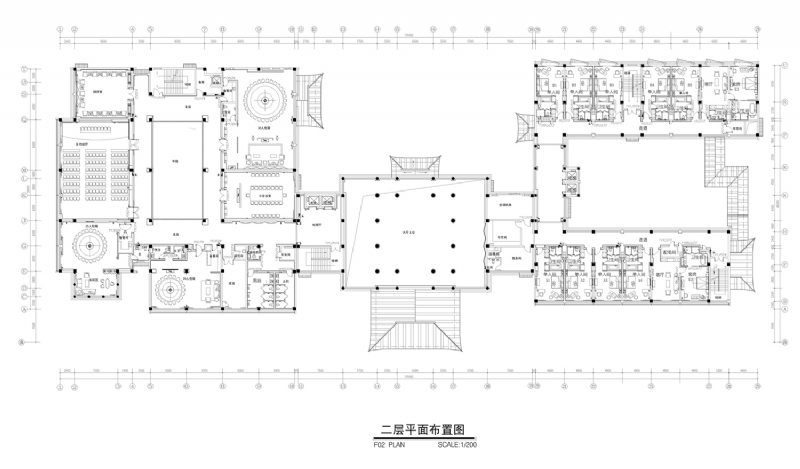
简介:常熟阅山轩假日休闲酒店
历史文化名城常熟市中心有一座著名的虞山,有“十里青山半入城”的美誉。虞山脚下有一千年古刹兴福寺,古诗中“曲径通幽处,禅房花木深”这一名句即描写此处。阅山轩假日休闲酒店就位于虞山脚下千年古刹兴福寺旁,前邻破龙涧,后倚茶园。地理位置优越,环境幽静,空气清新。 常熟是一个历史文化名城,是吴文化的发源地之一,文化底蕴深厚,可以展现的历史文化元素很多。不论是良渚文化、吴文化还是琴、书、画、印、诗、茶以及历代常熟名人典故等等。在众多的历史文化元素中,考虑到酒店所处的地理位置以及酒店的名字,可以以“吴文化”为背景,以虞山为核心,集中展示常熟的“山文化”以及与虞山有关联的文化元素。酒店的建筑设计为新中式风格,室内设计延续室外的风格。 虞山传统文化的丰富性和多样性,给设计师提供了太多的设计资源,这种设计运用不应该停留在低劣粗糙的符号堆砌。设计师需要进入更深入的研究,从浅层的表象建构变到深层次的文化意识,从形而下到形而上,提高文化的附着性,同时还要兼顾市场,再设计对设计师而言是有很高的要求。 乘着东方之韵、驾着西方之色,创造出了既有西方形式美、又有东方意境美的形神兼备的艺术精品。这就是我们常说的“中国精神,世界表达”。我们真正在探寻的是中西文化相互融合的艺术之神,追求的是一种东方气质美学,向这混沌的世界展示着精神的“大美”。
历史文化名城常熟市中心有一座著名的虞山,有“十里青山半入城”的美誉。虞山脚下有一千年古刹兴福寺,古诗中“曲径通幽处,禅房花木深”这一名句即描写此处。阅山轩假日休闲酒店就位于虞山脚下千年古刹兴福寺旁,前邻破龙涧,后倚茶园。地理位置优越,环境幽静,空气清新。 常熟是一个历史文化名城,是吴文化的发源地之一,文化底蕴深厚,可以展现的历史文化元素很多。不论是良渚文化、吴文化还是琴、书、画、印、诗、茶以及历代常熟名人典故等等。在众多的历史文化元素中,考虑到酒店所处的地理位置以及酒店的名字,可以以“吴文化”为背景,以虞山为核心,集中展示常熟的“山文化”以及与虞山有关联的文化元素。酒店的建筑设计为新中式风格,室内设计延续室外的风格。 虞山传统文化的丰富性和多样性,给设计师提供了太多的设计资源,这种设计运用不应该停留在低劣粗糙的符号堆砌。设计师需要进入更深入的研究,从浅层的表象建构变到深层次的文化意识,从形而下到形而上,提高文化的附着性,同时还要兼顾市场,再设计对设计师而言是有很高的要求。 乘着东方之韵、驾着西方之色,创造出了既有西方形式美、又有东方意境美的形神兼备的艺术精品。这就是我们常说的“中国精神,世界表达”。我们真正在探寻的是中西文化相互融合的艺术之神,追求的是一种东方气质美学,向这混沌的世界展示着精神的“大美”。
客服
消息
收藏
下载
最近


































