查看完整案例

收藏

下载
简介:陈朝辉设计工作室——套内15㎡香港长实岚山第3座6-22H户型
累了,铺好床上用品,有木有哆啦A梦睡觉事的感觉,酷吧!这个就是完整的15㎡ 的基本作用。当然它不是很完美,也存在很多瑕疵和不足。小麻雀该有的功能它一个也没落下,至于它的致命缺陷因为它的完美表现而被人接受,在这里叫做得失之间做选择。
这餐就吃打包的日本料理吧!对了忘记把投影幕降下来,飘窗的2盏小壁灯有童趣吧!吃饭了。
因为改了门槛,所以电磁炉和微波炉有了相对舒服的摆放尺寸,当然洗菜盆这个位置怎么能缺少砧板呢,起码要给个地方切点水果吧?这样的洗菜盆就能满足,饿了,去厨房做一顿大餐。
水泥、白色陶瓷面、镜子、不锈钢,这个就是卫生间,更神奇的是这才3。1㎡ ,竟然还能摆放浴缸,能不佩服这建造师的牛X。
把榻榻米垫和板打开,这个时候呈现出来的是一个储藏空间,功能有发生了改变。
困了,从衣柜顶端的被子架拿出床上用品,铺在榻榻米上面就形成了1。8米的大床,这个时候空间瞬间变成卧室,不想厨房对着床可以把推拉门往厨房这边关,这个时候出现了一个问题就,厨房和卫生间的门只能关一个,当然选择权在你手里。目前这个空间瞬间变成了卧室。美美睡上一觉
吃饱喝足了,看个大片什么的。这个时候空间瞬间变成客厅或者视觉室什么的。
当升降机升起来,摆上美食,这个空间瞬间变成了餐厅,能容纳4个人就餐。要是不想让衣柜里的东西影响到食欲,只要轻轻按下开关,投影幕就会慢慢降下来,然后把推拉门往卫生间那边关。
这个空间现在是个禅室,水泥地水泥墙体,榻榻米,台阶做成鞋架。目前的卖点在衣柜门,原本的推拉门或者对开门已经不见,代替它们的是自动投影幕,当布完全降下来,就形成了衣柜的门,也就是说把衣柜推拉门和电视的钱花在了投影机和投影幕上了,从而得到了家庭影院和高科技的
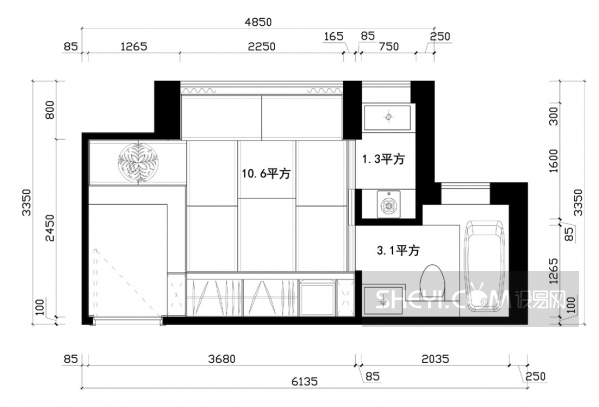
初步平面布局优化: 通过把厨房和卫生间的门改成推拉门,让厨房的电磁炉得到了合理的空间,卫生间的门口让出衣柜的空间,所以在这里摆放衣柜,同时要考虑到冰箱和洗衣机这2个硬件要求,调查过市场上最小尺寸的冰箱和洗衣机后,简单把它们摆放在衣柜里,下面为洗衣机上面
户型大致分析: 这个户型开门就不见了1㎡ 左右,一下子不见了好多好多毛爷爷了,一个想到的就是毛爷爷,真抱歉!看到这个户型的时候就在纠结了,沙发呢?床呢?冰箱呢?洗衣机呢?开始有想过对着门口做个上下床,楼梯用柜子来做,形成鞋柜和储藏柜加楼梯的作用,然后下面
客服
消息
收藏
下载
最近














