查看完整案例

收藏

下载
本案为信业阳光城·绿岛湖壹号样板房。
绿岛湖壹号临湖而立,在水一方,是亲近自然的本真栖居之地;居其中者,傍水而憩,生活也因此有了一份自得的慵懒情绪。
为了留住这份出世般的清幽通透,闲散而平静,库玛团队通过本案实现了对样板房的突破——大胆地通过一系列“高级灰”来为“质感”代言,通过质璞表象彰显空间掩藏的尊贵内涵。
▲原区分索引
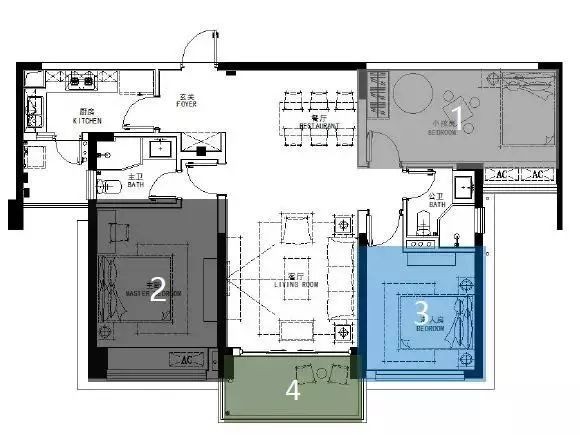
▲优化区分索引
在家具和物品的陈列上,克制是关键。摒弃多余的装饰与造型,力求每一个细节都会是点睛之笔。
细脚家具的选择让空间没有因为大片灰调而“寸步难行”,而在摆放上更满是开阔视线,拓宽空间感的“小心机”;四处都是冷静的线条,刻意裸露的原始质感,让灰色的多变性展示得淋漓尽致。
油画不再是装饰本身,而是作为立面的构成,与三角造型的灯具、定制图案的布艺品一同成就几何的构成感;为了缩小高冷的感觉,用幽默的艺术品来平衡;吊装的小茶几既充满情趣,也为空间减重;就连那一两株普通的绿意盎然竟也显得与众不同。
餐厅俨然成为生活艺术的一部分,整个空间没有过多的装饰,仅以一副几何画作作为提亮空间的元素。
抬头一看,你的目光无法从这个灯组上移开,通透玻璃外型与铜艺灯框组合,在刚与柔、冷与暖的对比中,质感立刻蔓延开来。
▲主卧
色彩包罗万象,千变万化,既可以艳的惊人,又可以实的质朴……但奔放的颜色会阻碍质感的表达,“高级灰”的运用使空间设计增添了另外一种格调,它不惊艳,不浮夸,没有造作,安静地沉淀岁月的光辉,塑造出了别样的意境。
艺术品般的侧柜,柜面的感观丰富转折而蜿蜒,其特有的比例和尺度感透出对设计的求新,而又不会影响习惯上对空间的认知。
增加电视柜,丰富空间功能。霜灰色墙体在阳光下呈现光泽肌理,搭配充满绿意的植株,主卧氛围松弛且优雅。房间里的每一件物品都恰到好处,赋予空间抽象理性与优雅感性的交融之美。
▲儿童房
儿童房作了布局优化,以营造丰富有趣的儿童游戏与家庭互动空间。将冒险家最爱的大自然移到了屋内,原木材质的家具和帐篷形状的床头也在为这份鲜活招相呼应,让整个房间充满了少年的纯真锐气。
▲儿童房
儿童房作了布局优化,以营造丰富有趣的儿童游戏与家庭互动空间。将冒险家最爱的大自然移到了屋内,原木材质的家具和帐篷形状的床头也在为这份鲜活招相呼应,让整个房间充满了少年的纯真锐气。
原来的衣柜改为斗柜,更能释放空间感。
本案选材在金属、石材、木头、棉麻、皮革——这些经典的现代主义的设计元素重新搭配使用,在功能与形式、情感与理性、精致与平凡之间进行富于感染力的演绎。
而最重要的是,当摒弃了这个喧嚣时代亮丽的视觉冲击,“高级灰”与质感相互成就。
客服
消息
收藏
下载
最近




























