查看完整案例

收藏

下载
架构师提供的文本描述。这所房子位于布宜诺斯艾利斯郊外,在一个私人街区内。最明确的质量是它的巩固植被。这一特征和地块的特殊条件作为我们的第一近似。这是为了创造一个特殊的配置,捕捉和生活的景观,围绕着房子。
Text description provided by the architects. The house is located in the outsides of Buenos Aires, inside a private neighbourhood. The most defined quality is its consolidated vegetation. This feature and the plots specific conditions gave as our first approximation. This was to create a special configuration that capture and live with the landscape that surrounded the house.
© Fernando Schapochnik
c:Fernando Schapochnik
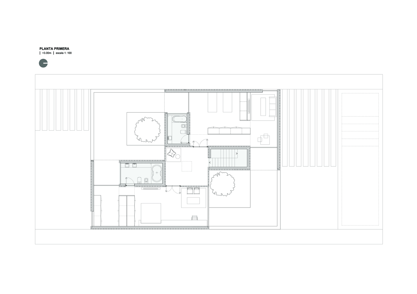
First floor plan
第一层平面图
© Fernando Schapochnik
c:Fernando Schapochnik
为了做到这一点,我们开发了一个由庭院、画廊和阁楼组成的系统,使外部和内部之间的关系以一种持续的方式发生。这种特殊的组织,没有很大的等级,因此给出一个连续的,曲折的空间,定义的关系,充分和空的内部组成。这种间歇性确定了典型家庭用途的规模。新的内部条件让位于新的景观,与我们在这种类型的情节中所使用的最经典的类型相反。大祈祷与抽象盒体现在其运作中,景观所呈现的不同的长短关系。在底层,通过庭院和阁楼的结合,房子与更直接的建筑联系在一起。相反,在第一层,我们提出了两个梯田,寻求在它们周围的树冠之间寻找长距离的联系。这种不同的景观方法,在每个地方,也反映在白天和晚上的使用。住房方面的一个重要问题。
To do this we developed a system of courtyards, galleries and logias that make the relationship between exterior and interior occur in a continuous way. This special organization, without great hierarchies, give as a result a continuous and sinuous space defined by the relation of full and empty inside the composition. This intermittency identifies the scales of the typical domestic uses. A new interiority gives place to a new landscape, in contraposition to the most classical typology we use to find in this type of plots. The big prayed and abstract box manifests in its operations the different long and short relations that the landscape proposes. On the ground floor, the house relates with the more immediate, through the combination of courtyard and logias. Instead, in the first floor we propose two terraces that seek long extent relation looking between the trees canopies that surround them. This different approach to landscape, that differ in each ground, is also reflected in the use during the day and the night. An important issue in housing.
© Fernando Schapochnik
c:Fernando Schapochnik
Cross Section
© Fernando Schapochnik
c:Fernando Schapochnik
砖总结了整个体积,它自然地融入了周围的环境。我们选择砖作为材料,因为它的几何清晰度,和它允许的特殊连续性。在这个意义上,优先级不是我们构建的,而是空间,通过这个结构,我们定义和配置。
The brick sum up the entire volume and it incorporates naturally to the environment of the neighbourhood. We chose brick as a material, for its geometrical clarity, and the special continuity it allows. In this sense, the priority is not what we build but is the space that, through this construction, we define and configure.
© Fernando Schapochnik
c:Fernando Schapochnik
客服
消息
收藏
下载
最近





























