查看完整案例

收藏

下载
© Lizeth Aviles
(莉斯·阿夫莱斯)
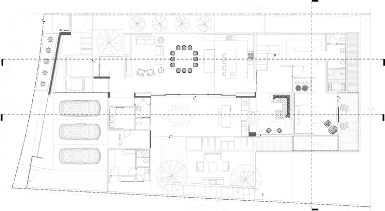
架构师提供的文本描述。这个单户式住宅位于墨西哥下加利福尼亚蒂华纳的一个居民区的山顶上。这块989平方米的地块以前被一座房屋占用,房屋结构受到严重破坏,无法救援;然而,一些建筑材料被打捞出来,并捐赠用于再利用和回收利用。这一建筑安排考虑到了两个方面的需要:第一,创建一个能够容纳南面花园和中央庭院的脚印;第二,提供一个功能齐全的地面层,以便在用户老化时满足他们的需求。
Text description provided by the architects. This single-family residence is located on top of a hill in a residential area in Tijuana, Baja California, Mexico. The 989 square meter plot was previously occupied by a house that suffered severe structural damage making it impossible to rescue; however, some of the construction materials were salvaged and donated for reuse and recycling. The architectural arrangement was conceived taking two needs in consideration; first, to create a footprint able to accommodate a south facing garden and a central patio, and second to provide a fully functional ground level to accommodate user's needs as they age.
© Lizeth Aviles
(莉斯·阿夫莱斯)
Ground Floor Plan
© Lizeth Aviles
(莉斯·阿夫莱斯)
地形图在布局中也发挥了重要作用,因为下坡自然建议将公共区域和主卧室放置在街道一级,以便更容易进入,而私人区域则位于地面以下;通过这种安排,实现了一个微妙而有趣的主立面。(鼓掌)
The plot topography also played an important role in the layout distribution, as the downward slope naturally suggested to place the public zone and master bedroom at street level for an easier access, and private areas below surface level; achieving with this arrangement a subtler yet interesting main façade.
选择建筑的外部材料,使房屋在老化的同时,以更高的能量和维护效率为目标,材料选择主要由裸露混凝土和双层保温红砖组成。双层玻璃窗户加上隔热的金属屋顶也有助于提高房屋的热舒适性。采用对环境负责的办法,包括提供灰色水处理过程以维持景观的系统,以及部分供应家庭能源需求的太阳能电池板。
The building’s exterior materials were chosen so that the house would age properly while at the same time aiming at a higher energy and maintenance efficiency. The material selection primarily consists of exposed concrete and a double wall of insulated red brick. Double glazed windows with thermal break and insulated metal roof also contribute to the thermal comfort of the house. With an environmentally responsible approach, systems were included to provide for gray water treatment process to sustain the landscape, and solar panels to partially supply the energy needs of the family.
© Lizeth Aviles
(莉斯·阿夫莱斯)
建筑方案分为两层,街道层主要由前面的公共区域占据,主卧室在后面,下层作为私人区域。主要通道包括一个过渡空间,包括一个带喷泉的小露台和一个室内大厅;这条通道通往一个开阔的区域,包括客厅、餐厅和厨房,所有这些都与中央露台直接相连。
The architectural program is distributed in two levels, the street level mostly occupied by public areas on the front, with the master bedroom on the back and lower level as the private areas. The main access consists on a transitional space including a small patio with a fountain and an indoor lobby; this passage giving access to an open area that includes living, dining rooms, and kitchen, all these with direct communication to the central patio.
Upper Floor Plan
上层平面图
滑动玻璃墙可直接连接室内区域与中央露台、烧烤区和烟囱外,使整个空间成为一个统一的室内-室外区域,独立进入游客洗手间。作为公共和私人区域之间的过渡空间,一间充满自然日光的舒适而实用的家庭客房位于地面后面,独立进入中央露台。
A sliding glass wall provides a direct connection between the indoor areas and the central patio, BBQ area and outside chimney, allowing for this whole space to become a unified indoor-outdoor area, with independent access to a visitor’s restroom. As a transitional space between the public and private areas, a cozy and functional family room flooded with natural daylight is located on the back of the ground level, with an independent access to the central patio.
© Lizeth Aviles
(莉斯·阿夫莱斯)
主卧室位于地面,有南花园景观,包括一个私人浴室,有宽敞的壁橱和阳台。宽敞舒适的楼梯可以进入较低的楼层,包括两间卧室、一个家庭办公室/人洞/可选的第四间卧室、一个小酒窖和储藏空间。每个房间都可以独立进入花园。
The Master bedroom located on the ground level enjoys a southern garden view and includes a private bathroom with a spacious walking closet and balcony. Wide and comfortable stairs give access to the lower level, consisting of two bedrooms, a home office/man cave/optional fourth bedroom, a small wine cave, and storage space. Each of these rooms with independent access to the garden.
© Lizeth Aviles
(莉斯·阿夫莱斯)
Architects Guillot Arquitectos
Location Tijuana, Mexico
Design Team Ramon Guillot, Iza Loyola, Renee Perez
Area 480.0 m2
Project Year 2018
Photographs Lizeth Aviles
Category Houses
Manufacturers Loading...
客服
消息
收藏
下载
最近
























