查看完整案例

收藏

下载
© Field Condition
场条件
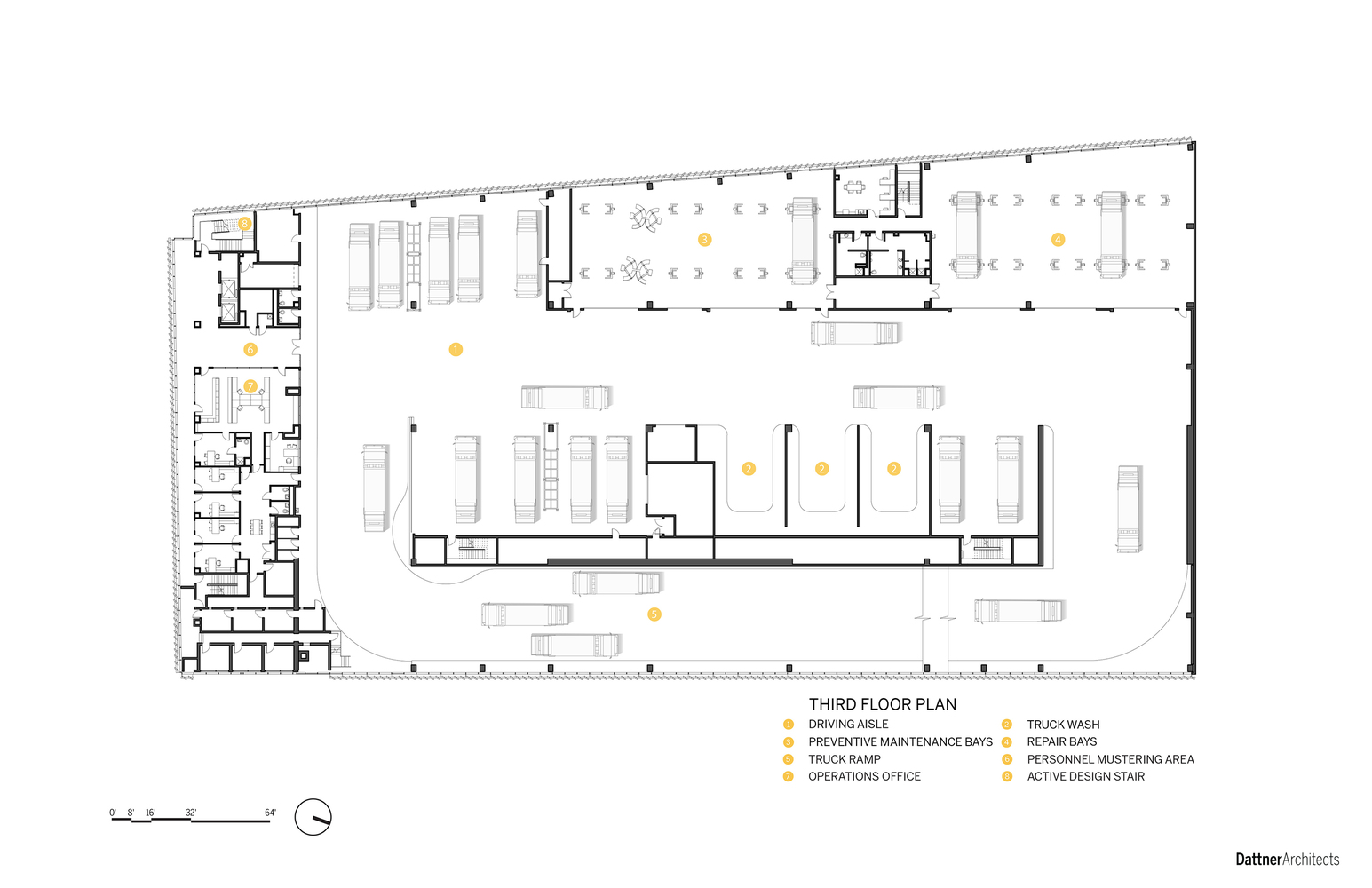
架构师提供的文本描述。曼哈顿区1/2/5的车库,俯瞰哈德逊河在春天街和西街的拐角处,有三个地区的车库为纽约市卫生厅。新的多层建筑可容纳150多辆公共卫生车辆,包括卡车、前端装载机、撒盐机、重型设备残骸车和人员车辆;每个地区都有单独的洗车和人员设施;以及集中加油和维修设施。双层外墙由2600个定制、穿孔、金属翅片、垂直拼合和照明组成的幕墙组成。可操作的被占领的空间,鳍减少了太阳的热量和眩光,创造了一个空灵的包装遮住机械百叶窗,并屏蔽从邻居的前照灯的看法。大面积1.5英亩的绿色屋顶软化了周围建筑物的视野,保护了屋顶膜,提高了雨水的保水能力和热性能。
Text description provided by the architects. The Manhattan Districts 1/2/5 Garage, overlooking the Hudson River at the corner of Spring Street and West Street, houses three district garages for the NYC Department of Sanitation. The new multi-story building accommodates over 150 sanitation vehicles including trucks, front-end loaders, salt spreaders, heavy-equipment wreckers, and personnel vehicles; separate vehicle wash and personnel facilities for each district; and centralized fueling and repair facilities. The double-skin façade wraps the curtain wall with 2,600 custom, perforated, metal fins, vertically articulating and lighting the building’s massing. Operable for the occupied spaces, the fins reduce solar heat gain and glare, create an ethereal wrapper to obscure mechanical louvers, and shield the view of headlights from neighbors. An extensive 1.5 acre green roof softens views from neighboring buildings, protects the roof membrane, and enhances storm water retention and thermal performance.
© Albert Vecerka/ESTO
c Albert Vecerka/Esto
Ground floor plan
作为纽约积极设计项目的基准项目,该车库已获得LEED黄金认证。作为LEED分级的第一个卫生设施,互动和迭代设计过程对于确定项目目标至关重要。该小组与DSNY和一个社区委员会的批准程序密切合作,通过一系列的讲习班来开发一个垂直组织的多区车库的项目要求。通过这一过程,确定了合并共享空间、降低楼层高度和优化循环效率的机会。
A benchmark project for NYC’s Active Design program, the garage has achieved LEED Gold certification. As the first LEED rated Department of Sanitation facility, an interactive and iterative design process was critical to establishing project goals. The team worked closely with DSNY and a Community Board approvals process, through a series of workshops to develop the program requirements for a vertically organized multi-district garage. Through this process, opportunities were identified for combining shared spaces, reducing floor to floor heights, and optimizing circulation efficiency.
© Albert Vecerka/ESTO
c Albert Vecerka/Esto
© Albert Vecerka/ESTO
c Albert Vecerka/Esto
就在朝北的春街对面,盐棚的水晶、多面的平面活跃了这个高度可见的结构,充当了车库透明、抄写式外观的对立面。浇铸的混凝土结构逐渐向底部倾斜-创造了更多的行人空间-并从一条夜间照明的琉璃护城河上升起。这座棚屋海拔近70英尺,可容纳5,000吨盐,并在这个重要的十字路口创造了一个标志性的地标。在开业之年内,曼哈顿区的1/2/5车库
Directly across Spring Street to the north, the Salt Shed’s crystalline, faceted planes enliven this highly visible structure, acting as a counterpoint to the diaphanous, scrim-like façade of the Garage. The cast-in-place concrete structure tapers toward the bottom—creating more pedestrian space—and rises from a glazed moat that will be illuminated at night. Rising nearly 70 feet, the shed houses 5,000 tons of salt and create an iconic landmark at this important intersection. Within the year of opening, the Manhattan Districts 1/2/5 Garage & Salt Shed have become a source of neighborhood pride.
© Pavel Bendov
帕维尔·本多夫
Architects Dattner Architects
Location New York, NY, United States
Lighting Design Domingo Gonzalez Associates
Landscape Abel Bainnson Butz
Area 431300.0 ft2
Project Year 2015
Photographs Albert Vecerka/ESTO, Field Condition, Michael Anton, Pavel Bendov
Category Buildings
Manufacturers Loading...
客服
消息
收藏
下载
最近


























