查看完整案例

收藏

下载
设计公司:小大建筑设计事务所
类型:商业建筑商店茶室
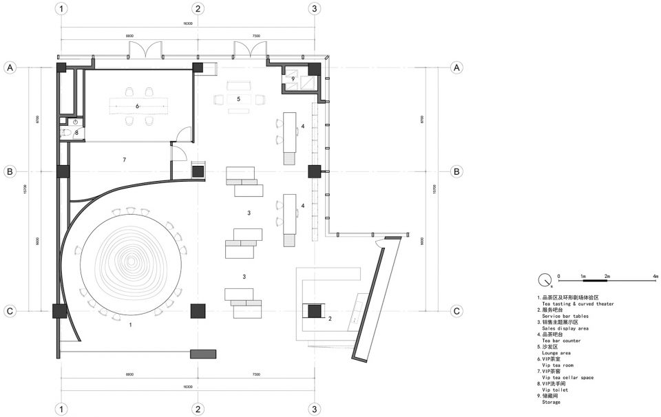
设计项目是一间提供无农药茶叶的茶馆,位于中国杭州。
杭州是有名的龙井茶产地,在西湖边就可以看到陡峭的茶山,山上散布着一片片梯田。我们因此联想到把这梯田的气魄带进茶馆内。
▼室内设计以西湖边茶山上的梯田为意象
▼将梯田的气魄带入茶馆
商品的展示柜由用意大利产的灰姑娘色大理石和有透明感的波纹玻璃板组装的小柜子以不规则的高低差组合在一起做成,营造出杭州山水的风景特色。
▼展示柜使用了大理石和波纹玻璃
▼营造杭州山水的风景特色
大圆桌的直径为6.2m,桌面使用人工大理石层层堆砌,呈现出梯田一般缓和的起伏。在桌面凹槽内注入水,随着高低深浅的差异,将看到水的颜色也产生渐变。在人口密集的商业中心里,为了让客人能在喝茶的这片刻中享受充足的空间的余地,所以有了这样距离感的设计。
客服
消息
收藏
下载
最近















