查看完整案例

收藏

下载
‘Tochka na Karte’乡村酒店(俄文为“地图上的一个点”)位于距离圣彼得堡120公里的拉多加湖岸边,位于卡雷利亚共和国边界。酒店综合体包括两层长的双人房、独立的套房和一座接待大楼。酒店采用预制技术设计:3.5x7M模块在工厂组装,然后交付现场,内部装饰、网络和卫生工程。
‘Tochka na karte’ country hotel (Russian for ‘a point on the map’) is located 120 km away from Saint-Petersburg on the shore of the Lake Ladoga, at the border of the Republic of Karelia. The hotel complex consists of prolonged 2-story blocks of double rooms, detached suites, and a reception building. The hotel is a designed in a prefabricated technology: 3.5x7m modules are assembled at the factory and then delivered to the site with the interior finish, networks, and sanitary engineering inside.
© Dmitry Tsyrencshikov
(C)Dmitry Tsyrencshikov
这些模块几乎准备好迎接客人:其余的工作是连接他们的电源和布置家具。酒店共有3个街区:32间标准房、独立套房和接待楼。一个单元是一个面积18平方米的标准房间。套房由两个模块组成。接待室由三个模块和一些预制元件拼凑而成。酒店模块的扩展范围包括四个2层楼高的由楼梯和露台连接的街区。地形形式,树木布局和我们努力提供的海岸景观,从每一个房间构成建筑物的地点。
These modules are almost ready to welcome guests: the rest of work is to connect them to a power supply and arrange the furniture. The hotel comprises 3 blocks: 32 standard rooms, detached suites, and reception building. One module is a standard room 18 sqm in area. A suite room is assembled from two modules. The reception building is pieced together from three modules and some prefabricated elements. An extended range of the hotel modules consists of four 2-stories blocks interconnected by stairways and terraces. Terrain forms, trees layout and our strive to provide a view of the shore from every room constitute the buildings’ location on the site.
© Dmitry Tsyrencshikov
(C)Dmitry Tsyrencshikov
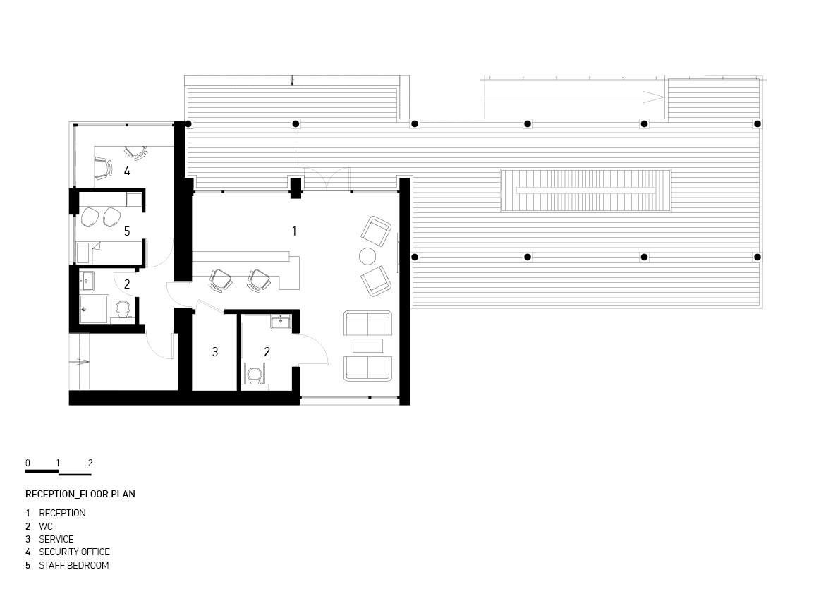
Ground Floor Plan
© Dmitry Tsyrencshikov
(C)Dmitry Tsyrencshikov
模块的位置,使整个建筑物“分散”在松树之间。正是卡雷利亚北部自然的背景决定了我们的建筑设计:酒店坐落在沃克西河汇入拉多加湖的地方。所有模块都位于现有的松树中,由于模块化技术的使用,这些松树被保存下来。这种情况的第一个后果是最大限度地扩大居民与环境之间的互动。从每个房间都可以看到拉多加湖,这体现在从地板到天花板的玻璃上。
The modules are located so that the whole bulk of buildings is ‘dispersed’ among the pine trees. It is the context of the northern nature of Karelia that defined our architectural design: the hotel is situated at the point where the Vuoksi river runs into the Lake Ladoga. All of the modules are located among the existing pine trees which were saved from cutting down thanks to the modular technology. The first consequence of this context was to maximize the interaction between a resident and environment. It is expressed in a floor-to-ceiling glazing with a view of the Lake Ladoga from each room.
© Dmitry Tsyrencshikov
(C)Dmitry Tsyrencshikov
二是选材和图案。丰富的木材和深色金属在外部完成转移了一个焦点,从建筑,突出大自然作为主角在这一空间。目前,这个项目是俄罗斯领土上公共设施模块化建筑中唯一一个具有真正建筑价值的案例。我们认为,我们成功地实现了现代北欧建筑所固有的地方的精髓。
The second is selected materials and patterns. An abundance of wood and dark metal in exterior finish shifts a focal point from architecture highlighting the nature as the protagonist in this space. Nowadays this project is the only one case of the modular architecture of public facilities on Russia’s territory that has a real architectural value. We believe we succeeded in achieving the essence of a place inherent to modern Nordic architecture.
© Dmitry Tsyrencshikov
(C)Dmitry Tsyrencshikov
Architects Rhizome
Location 188760, ul. Zaozernaya, Priozersk, Leningrad Oblast, Russia
Lead Architects Evgeny Reshetov, Tatiana Sinelnikova
Design Team Artem Stepanov, Anastasia Voropaeva, Elizaveta Morozova, Lubov Lukonina
Area 1330.0 m2
Project Year 2017
Photographs Dmitry Tsyrencshikov
Category Hotels
Manufacturers Loading...
客服
消息
收藏
下载
最近









































