查看完整案例

收藏

下载
架构师提供的文本描述。AIS联络中心发展
© PanoramicStudio, YAMASTUDIO
c.PanoramicStudio,YAMASTUDIO
Ground Floor
© PanoramicStudio, YAMASTUDIO
c.PanoramicStudio,YAMASTUDIO
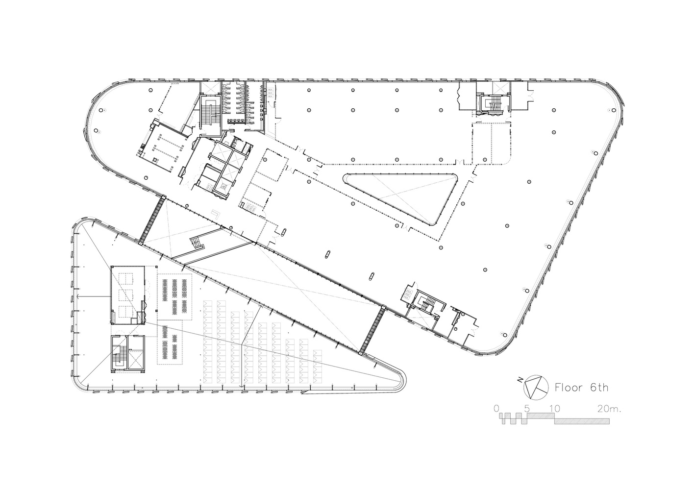
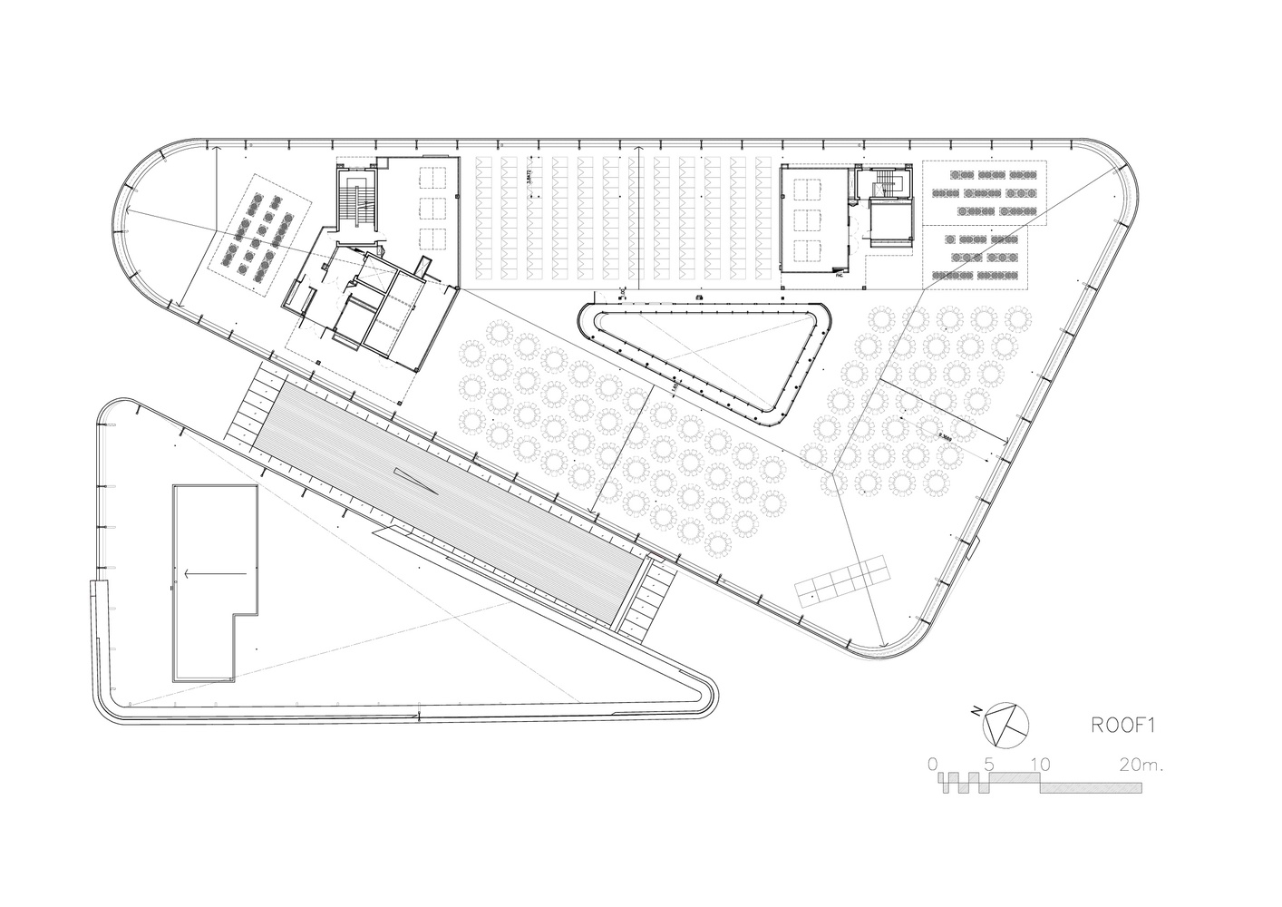
呼叫中心和训练区占用的面积较大,中间有一个透明的天窗大厅,而较小的是专为娱乐区域而设计的。在传统的泰式住宅中,建筑中间的主中庭作为“沙恩”或者被广泛认为是一个平台,被用来连接功能和人,甚至提供一个额外的公共空间。员工不仅从这个空间中受益,休息一下工作时间,而且还友好地相互交流。
The larger one occupied by call center and training area with a transparent skylight hall in the middle of the area while the smaller one is designed for recreation areas. The main atrium in the middle of the building acts as “Charn” or widely acknowledged as a terrace in traditional Thai house, is used to connect both function and people or even provides an additional communal space. Not only the staffs benefit from this space by taking a break from working hours, but also kindly interact with each other.
© PanoramicStudio, YAMASTUDIO
c.PanoramicStudio,YAMASTUDIO
锥形建筑的形状有助于调整墙壁的角度,从而减少从太阳照射在外墙上的热量的面积,从而降低建筑物的总热量。建筑物顶部的曲线明显受到公司标志的启发。
The tapered building shape helps adjusting angle of walls results in reducing area of heat gain from the sun on the façade, thus decreasing a total heat gain of the building. The curve on the top of the building is clearly inspired by the company logo.
© PanoramicStudio, YAMASTUDIO
c.PanoramicStudio,YAMASTUDIO
客服
消息
收藏
下载
最近




































