查看完整案例

收藏

下载
“建筑是有人居住的雕塑”是著名的罗马尼亚艺术家康斯坦丁布兰库西的短语之一。这与建筑师Felipe Gonzalez Arzac的工作哲学的前提之一有关,以及我们在图像中共享的房屋。
"Architecture is inhabited sculpture" is one of the phrases of the prestigious Romanian artist Constantin Brancusi. It has to do with one of the premises of the work philosophy of the architect Felipe Gonzalez Arzac, and the housing that we share in images.
© Javier Agustin Rojas
c.哈维尔·阿古斯丁·罗哈斯
理性主义的、现代的和概念性的语言都在这所房子里物化,就像纯粹的几何形式一样。确切地说,有一种意图是,行人把房子的外部看作是一个雕塑物体;那是布兰库西所指的有人居住的雕塑。
The rationalist, modern and conceptual language materializes in this house, in the same way as the pure geometric forms. Precisely, there is an intention that the pedestrian see the house on its exterior as a sculptural object; that inhabited sculpture to which Brancusi referred.
© Javier Agustin Rojas
c.哈维尔·阿古斯丁·罗哈斯
© Javier Agustin Rojas
c.哈维尔·阿古斯丁·罗哈斯
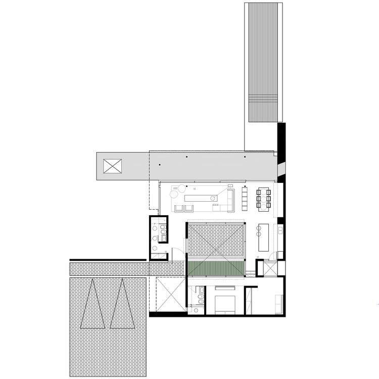
在那里,一桶生硬的混凝土,它完全盲目的外墙和开放的一面,给人一种特殊的视觉冲击力,产生了一种感觉,那就是在里面目睹一座完全黑暗的房子,封闭着,与外界没有多大关系。然而,当进入房屋时却产生了相反的效果,房子几乎全部被分解和穿孔,以一个大庭院为组成中心,触发循环和其组成的中轴线。
There, a bucket of blunt concrete, its totally blind façade and its open sides give a particular visual impact, generating the sensation of being witnessing a completely dark house inside, closed, without much connection with the outside. However, it is the opposite effect that is generated when entering the house, which is decomposed and perforated almost entirely with a large courtyard as a compositional center, trigger circulation and central axis of its composition.
© Javier Agustin Rojas
c.哈维尔·阿古斯丁·罗哈斯
© Javier Agustin Rojas
c.哈维尔·阿古斯丁·罗哈斯
这场内外博弈以及决定建造内部露台是本研究的标志之一,在此也起到了主导作用:在这里,室内完全是玻璃化的,与外部联系在一起,寻求极限的消解。从这个意义上说,房子揭示了对立方体的探索和开发的意图,立方体在不同的层次上由两个横贯它的轴驱动;一种与“混凝土箱”的静态断裂的主竞争横轴,由餐厅和纵向桌子、走廊、混凝土墙和无限直线水槽构成的直线透视无穷大的角度来增强这一轴。然后,房子提出了另一个二次横轴,在一个平行于街道的方向上,用下边的墙来定义进入房屋的通道。在这座房子的概念化中,有一个单独的段落应该是混凝土,它的价值应该是塑料和可锻铸材料,而玻璃是一种透明的材料,它是反对强制的混凝土盒子的。两者都创造了一个产生两种截然不同的情况的家,一种来自外部,另一种来自内部。
This game between exterior and interior and the decision to create internal patios is one of the hallmarks of this study, which also plays a leading role here: here, the interior, totally glazed, is linked to the exterior, seeking the dissolution of limits. In this sense, the house reveals a search and an intention of exploitation and spatial disintegration of the cube, which is dynamized from two axes that cross it in different hierarchies; a main competitive transversal axis that breaks with the static of the "concrete box", generating a lineal perspective to the infinite, articulated by the dining kitchen and the longitudinal table, the gallery, the concrete wall and the infinite linear sink that ends enhance this axis. Then, the house proposes another secondary transversal axis, in a direction parallel to the street, materialized with the lower wall that defines the access to the house. A separate paragraph in the conceptualization of this house deserve concrete and its value as plastic and malleable material, and glass, as a transparent material that opposes the imposing concrete box. Both create a home that generates two very opposite situations, one from the outside and a very different inside.
© Javier Agustin Rojas
c.哈维尔·阿古斯丁·罗哈斯
© Javier Agustin Rojas
c.哈维尔·阿古斯丁·罗哈斯
因此,作为一种艺术作品,住宅提供了多种外观,溶解的边界和游戏视觉的建筑成为雕塑居住。
Thus, as a work of art, housing offers multiple looks, dissolved boundaries and a game visual where the architecture becomes that sculpture to be inhabited.
© Javier Agustin Rojas
c.哈维尔·阿古斯丁·罗哈斯
客服
消息
收藏
下载
最近
































