查看完整案例

收藏

下载
© Maxime Desbiens
3.Maxime Desbiens
背景和设置拉米森高蒂尔位于劳伦蒂斯,在魁北克省附近的蒙特-特雷姆布兰特镇。它位于丘陵地带,周围环绕着这片山区特有的茂密的森林。这块地位于一座布满云杉和桦树的岩石山上。东边是主干道,西边是业主的马场。客户们想要一本书,主要面向下面的马匹竞技场。同时,他们想利用地势形成的亲密关系。在道路和房屋之间的森林护堤创造了一个视觉过滤器,允许一个顺序前进的建筑物。从下面的主干道上看不出体积,但逐渐显现出来,最终形成了由不透明的砖块组成的壮丽的外墙,其中有一个离中心的拱门。这是房子的正门。
Context and setting La Maison Gauthier is located in the Laurentians, in Quebec, near the town of Mont-Tremblant. It is set in a hilly terrain and is surrounded by a dense expanse of forest characteristic of this mountainous region. The lot is located on a rocky hill covered with spruce and birch. It is bounded to the east by the main road and to the west by the owners’ horse farm. The clients wanted a volume with views largely oriented towards the horses’ riding arena below. At the same time, they wanted to take advantage of the intimacy created by the topography of the lot. The forested berm between the road and house creates a visual filter, allowing a sequential progression towards the building. The volume is not visible from the main road below,but gradually emerges, culminating in the imposing facade of opaque brick with a single off-centered arch. This is the main entrance to the house.
© Juliette Busch
朱丽叶·布希
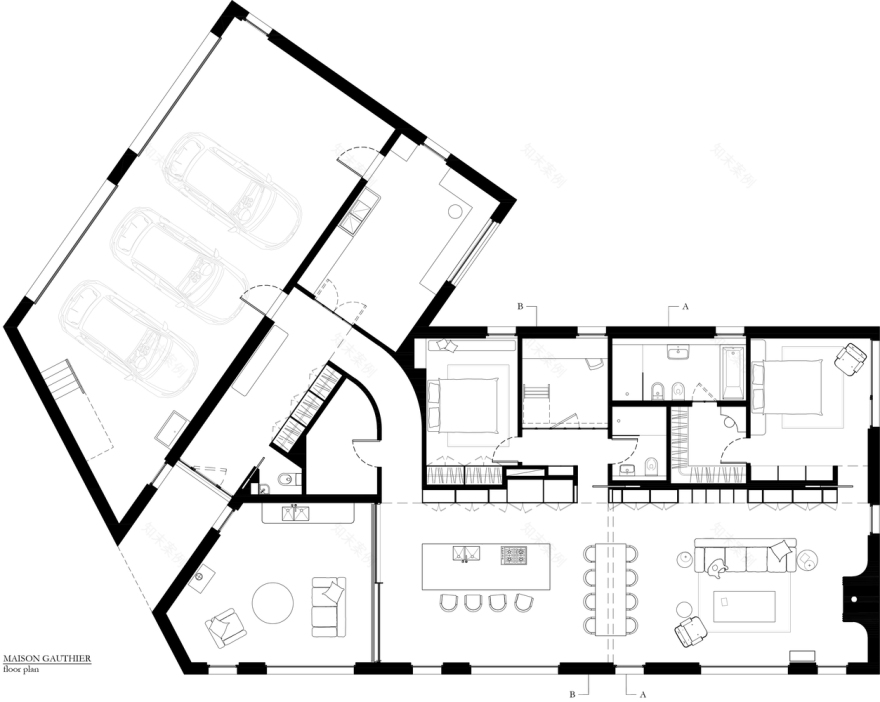
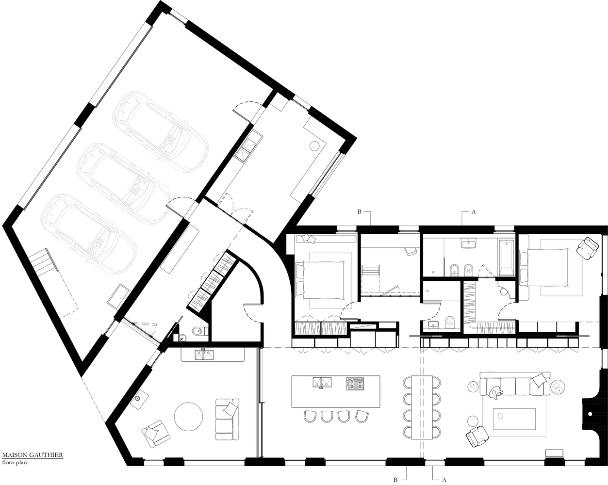
组织和感性叙事客户对美国极简主义画家的显著兴趣,加上她的陶瓷工作室的存在,影响了平面图的组成和内部空间设计中简单几何形状的相互联系。欧洲马厩和养马中心是最初设计阶段探索过的参考资料之一。这座房子的设计采用了一个不对称的V方案,将两个不同的区域连接在一起:车库和客户的陶瓷工作室的机翼,以及公共生活区的机翼。不同的空间是相互关联的,这样就可以为用户和访问者创造一个感性的叙事,他们经历了压缩和扩展的交替感觉。简单的原材料(砖、石灰、油橡木)的感官存在有助于营造一种宁静的氛围。
Organization and perceptual narrative The client’s marked interest in American minimalist painters, along with the presence of her ceramics studio, influenced the composition of the floor plan and the interconnection of simple geometric shapes in the design of the interior volumes. European stables and horse-breeding centres were among the references explored during the initial design phase. The house is designed in an asymmetrical V plan connecting two distinct areas: a wing for the garage and the client’s ceramics studio, and a wing for the common living areas. The various spaces are interconnected in such a way as to create a perceptual narrative for users and visitors, who experience alternating sensations of compression and expansion. The sensorial presence of simple raw materials (brick, lime, oiled oak) helps to create a tranquil atmosphere.
© Maxime Desbiens
3.Maxime Desbiens
Cross Section A
横断面A
© Juliette Busch
朱丽叶·布希
从入口拱门,序列标志着服务区域,艺术家的工作室,和更亲密的家庭空间之间的隔阂。弯曲的走廊在两翼之间形成了一个门槛。其降低的天花板产生了一种变暗和缩小的感觉,这与大容量和光的主要房间在末端(有趣的海狗效应)形成鲜明的对比。在这里,高倾斜的天花板被两层垂直的面纱隔开,把厨房、餐厅和客厅隔开,而不把房间的体积隔开。露台标志着从内部到外部的流体延伸。
From the entrance arch, the sequence marks a division between the service areas, the artist’s studio, and the more intimate family space. The curved corridor forms a threshold between the two wings. Its lowered ceiling produces a sensation of darkening and narrowing, which starkly contrasts with the expansive volume and light of the main room at the end (interesting chiaroscuro effect). Here, high, inclined ceilings are divided by two vertical veils that partition the kitchen, dining room and living room without compartmentalizing the volume. The gazebo marks a fluid extension from the interior towards the exterior.
© Maxime Desbiens
3.Maxime Desbiens
虚空的比例和重要性-宽而低的开口-仔细地描绘了对马匹竞技场的看法。不同的比例创造了一个有趣的张力之间的内部体积和景观。巨大的天窗面向东方,直射石灰覆盖的垂直面纱,并允许自然通风的主要体积。这些中空的体积创造了一种明亮的,发光的气氛,给空间留下了神圣的品质。陶瓷工作室中的第三门“轻炮”将天象光引导到房间里。斜面天花板的表面,加上垂直面纱和轻炮,提供了通常与实体空间相关联的空洞雕塑品质。虚空的实质赋予了体积身体。
Proportions and materiality of the void Wide, yet relatively low openings carefully frame the views towards the horses’ arena. The varying proportions create an interesting tension between the interior volume and the landscape. Vast skylights oriented towards the east direct light towards the lime-covered vertical veils and also permit natural ventilation of the main volume. These hollow volumes create a bright, luminous atmosphere, lending a sacred quality to the space. A third “light cannon” in the ceramics studio directs zenithal light into the room. The inclined surfaces of the faceted ceiling, combined with the vertical veils and light cannons, lend the void sculptural qualities usually associated with solid space. The materiality of the void gives body to the volume.
卧室和浴室被厚厚的隔墙隔开,卧室和浴室被安排在房屋V形空间的褶皱中,营造了一种亲密、内省的氛围。室内空间的多样性与外观体积的简单性形成鲜明对比。这个巨大的屋顶坐落在一个7英尺高的砖基上。地理与现有农场的令人印象深刻的身体交谈,同时在自然环境中留下痕迹。不对称的体积、包围形式、弯曲走廊的海岛效应、阴影、边缘、阈值、空隙和原材料,使地方的独特气氛得以出现,而不掩盖房屋的结构逻辑。
Separated from the living area by a thick dividing wall, the bedrooms and bathroom are organized within the fold of the V-shaped volume of the house, creating an intimate, introspective ambiance. The variety of interior spaces contrasts with the apparent simplicity of the exterior volume. The massive roof rests on a seven-foot brick base. The geometries converse with the impressive body of the existing farm, at the same time making their mark in the natural surroundings. The asymmetrical volume, enveloping form, chiaroscuro effect of the curved corridor, shadows, margins, thresholds, voids, and raw materials allow the unique atmosphere of the place to emerge without concealing the structural logic of the house.
© Maxime Desbiens
3.Maxime Desbiens
Architects Atelier Barda architecture
Location Mont-Tremblant, Canada
Area 3500.0 ft2
Project Year 2017
Photographs Maxime Desbiens, Juliette Busch
Category Refurbishment
Manufacturers Loading...
客服
消息
收藏
下载
最近



































