查看完整案例

收藏

下载
© Ravindra Kanade
拉文德拉·卡纳德
架构师提供的文本描述。四周密密麻麻的树叶环绕着,IBNII度假村的水疗中心被选为森林中为数不多的空地之一,这里曾经是咖啡屋工人的宿舍。建筑群被设计成支离破碎的区块,漂浮在中央水体中,通过高架人行道连接起来。其目的是将独特的建筑空间与自然元素连接起来-中央庭院到天空,按摩室连接池塘,走廊连接森林。
Text description provided by the architects. Surrounded by dense foliage around, the Spa complex at IBNII Resort was chosen to be located in one of the few clearings in the forest where, coffee estate workers’ quarters, once stood. The complex is designed as fragmented blocks, floating within a central water body, connected through elevated walkways. The intention was to connect distinct architectural spaces, uniquely, to natural elements – central court to the sky above, Massage rooms to the pond and corridors to the forest.
© Ravindra Kanade
拉文德拉·卡纳德
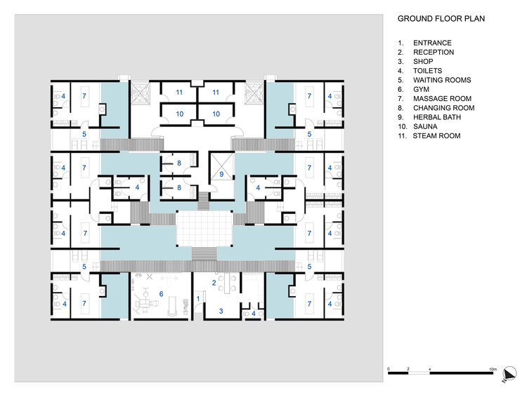
Floor Plan
© Ravindra Kanade
拉文德拉·卡纳德
最独特的设计特点,是陡峭的45度单斜屋顶,屋檐几乎与下面的水接触。它们被设计在中央庭院的两边,汇入水中,使中央空间向广阔的天空开放,这在这个度假村所在的110英亩、密林的场地内是一种罕见的体验。
The most unique feature of the design, is the steep 45-degree single lean-to roofs, the eaves of which almost touch the water below. They are designed on either side of the central courtyard converging into the water and opening the central space to the expanse of clear skies, which is a rare experience within the 110 acres, densely forested, site that this resort is located in.
这些屋顶实际上是按摩室的墙壁,将视线引向水体,并从庭院和外面的走廊中有效地遮住了使用者的隐私。通过打开屋顶的上部,自然光线进入了这些房间。屋顶下面池塘的边缘被设计成一个座位,这样你就可以用脚坐在水塘里。
These roofs practically act as the walls to the massage rooms, directing one’s view down to the water body and effectively sheltering the privacy of the user by cutting the view from the courtyard and the corridors outside. Natural light is brought into these rooms by opening up the upper portion of the roofs. The edge of the pond underneath the roof is designed as a seat such that one can sit with their feet immersed in the water pond.
© Ravindra Kanade
拉文德拉·卡纳德
裸露的立方体物体,包括桑拿、厕所、更衣室和草药浴,被仔细地放置在汇合的屋顶之间,以捕捉森林的一瞥,同时在走廊中航行。这些区块的设计和就近的位置,使他们的开口面对空白的墙壁,使个别房间开放和内化的自然因素,同时保持他们的隐私水平。
The bare cuboidal objects, housing the sauna, toilets, changing rooms and herbal bath, are carefully placed in relation to each other between the converging roofs to capture glimpses of the forest while navigating through the corridors. The blocks are designed and positioned in close proximity such that their openings face blank walls allowing the individual rooms to open up and internalize the natural elements while maintaining their privacy levels.
© Ravindra Kanade
拉文德拉·卡纳德
走廊上堆满了当地的石头-Jaisalmer、ChocularAndhra、KAdappa等不同宽度的石材,并填充了白色的大理石芯片。这两个倾斜的屋顶上覆盖着重叠的喜马卡尔石板石。中央展馆的地板是用结构玻璃制成的,可以观赏睡莲和池塘里的鱼。
The corridors are finished with a combination of local stones – Jaisalmer, Chocolate Andhra, Kadappa of varying widths with in-situ white marble chip filling. The two sloping roofs are covered with overlapped Himachal Slate Stones. Central Pavilion floor is made with Structural Glass to view the Water lilies and the fish which populate the pond.
© Ravindra Kanade
拉文德拉·卡纳德
Architects AHCPL, PLAYGROUP Studio
Location Mysore - Madikeri Rd, Kannanda Bane, Ibnivalvadi Rural, Karnataka 571201, India
Lead Architect Harsh Patel
Area 6000.0 ft2
Project Year 2016
Photographs Ravindra Kanade
Category Spa
Manufacturers Loading...
客服
消息
收藏
下载
最近


























