查看完整案例

收藏

下载
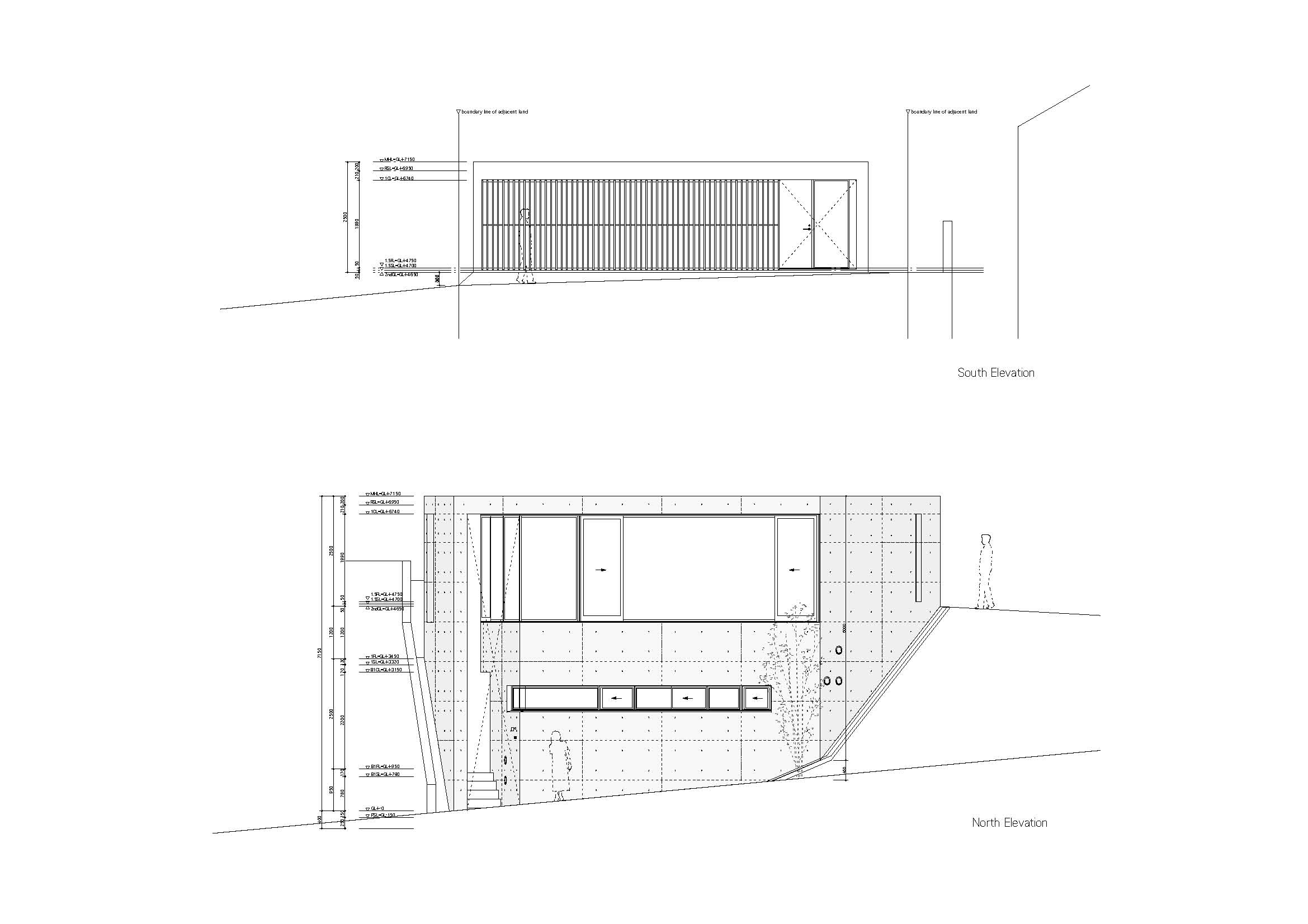
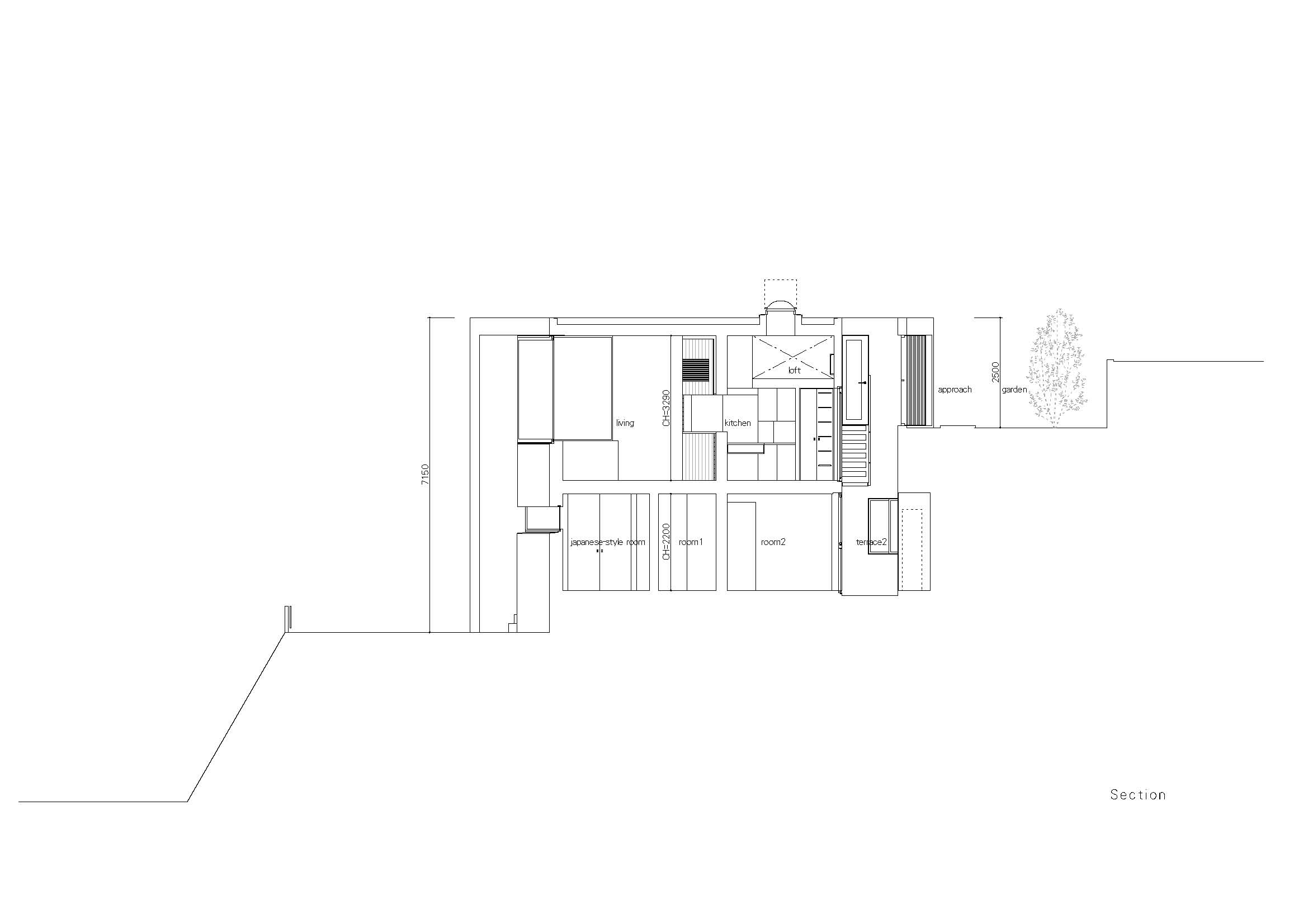
它的选择不是建立在坡地上,而是掩埋了这个计划的开始和框架。钢筋混凝土的外壳是一座房屋,一堵挡土墙,通过两者的结合,实现了总成本和使用资源的降低。具有工程规模的小型房屋已使其具有广阔的生命力。钢筋混凝土是这座房子中数量最大的建筑材料,在与木材的柔软性相协调的同时,它作为一种成品材料得到了最大程度的利用。这是一项建议,当房子是建在斜坡上的地面上。
Firm Naoya Kawabe Architect & Associates
Type Residential › Private House
STATUS Built
YEAR 2008
keywordsarchitecture, architecture news, interiors, interior design, portfolio, spec, brands, marketplace, products House in Atsugi
主要建筑、建筑新闻、内部设计、室内设计、产品组合、规格、品牌、市场、产品住宅
客服
消息
收藏
下载
最近

















