查看完整案例

收藏

下载
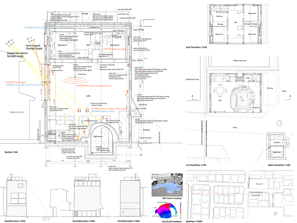
这个地区有一种特殊的开放气氛。街道上有招牌和花盆,有很多长期居民,他们经常在街上闲聊,这是一个“分区条例的特别谷点”。在该地段南面的边界线附近,指定了一条分区更改界线(商业区至房屋区)。因此,这所房子可以比附近的房子稍微高一点。在这样的环境下,建造了一座两层的木屋.第一层与街道相连,创造与外面热闹相连的生活空间,二楼与繁忙街道相隔一段距离,其楼板比相邻屋檐高,可吸收足够的阳光进入第一层。
Firm SpaceSpace
STATUS Built
YEAR 2010
keywordsarchitecture, architecture news, interiors, interior design, portfolio, spec, brands, marketplace, products Ground and above Roof House
关键词建筑、建筑新闻、室内设计、组合、规格、品牌、市场、产品地面及屋顶以上
客服
消息
收藏
下载
最近














