查看完整案例

收藏

下载
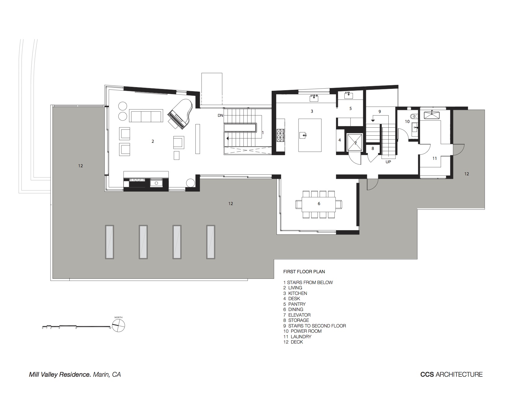
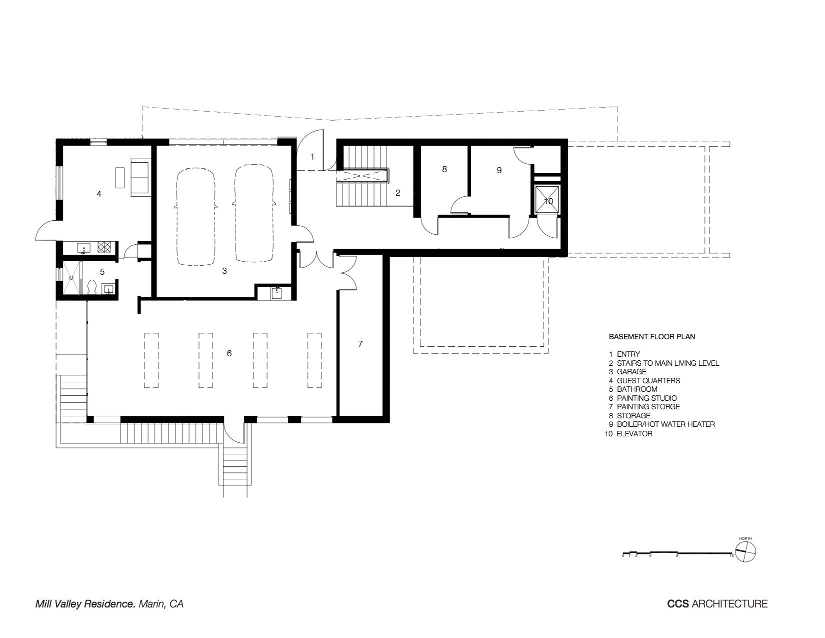
这座位于密尔谷的5000平方英尺的房子是为一对空巢夫妇设计的.该遗址是建筑的灵感和指导元素:巨大的山景。塔玛尔派斯,与红木树林的亲密联系,和陡峭的斜坡。考虑到它的地理位置,沿着山坡往上爬,挤在红树林之间,这座房子被分成三层。较低的楼层建在山坡上,而上面的两层则开放供人观赏。
一楼包括车库,入口,绘画工作室,画廊和客人宿舍。入口是一个两层高的空间,有一个通往二楼的楼梯-主要的生活层-连接到外面,从多个方向看风景。这个双高的空间,房子的核心空间,有一个很大的窗户海湾,集中在10英尺远的一片红木树林上。顶层有两间卧室,一间家庭办公室和一座通往上院落和游泳池的横冲直撞的桥。
天然铜是主要的外部材料,包裹二楼的房屋,强调主要居住空间的位置。第二层以下的墙是暴露的混凝土,上面的是水泥灰泥。室内唤起了乡村画廊的感觉,有白色的墙壁,广阔的玻璃和宽阔的木板橡木地板。
Firm CCS Architecture
Type Residential › Private House
YEAR 2011
keywordsarchitecture, architecture news, interiors, interior design, portfolio, spec, brands, marketplace, products Mill Valley Residence
关键词建筑,建筑新闻,室内设计,组合,规格,品牌,市场,磨坊谷住宅
客服
消息
收藏
下载
最近
















