查看完整案例

收藏

下载
这所房子是为一个有两个孩子的年轻家庭准备的。
虽然公共和私人领地含糊不清,但最终的条件是建筑与景观之间的关系最为清晰。
我们选择将行分解为片段,而不是仅仅将行“墙”扩展到站点的末尾。
是石头还是建筑?
在微观尺度上,在材料选择上进一步发展了等高线自然条件与正交总体方案条件之间的张力。
砖块还提供了一种非常有形的尺度感和制造感,是将抽象概念转化为现实的过程,体现在谷物中,以及无法“放大”到一定规模之外的过程。
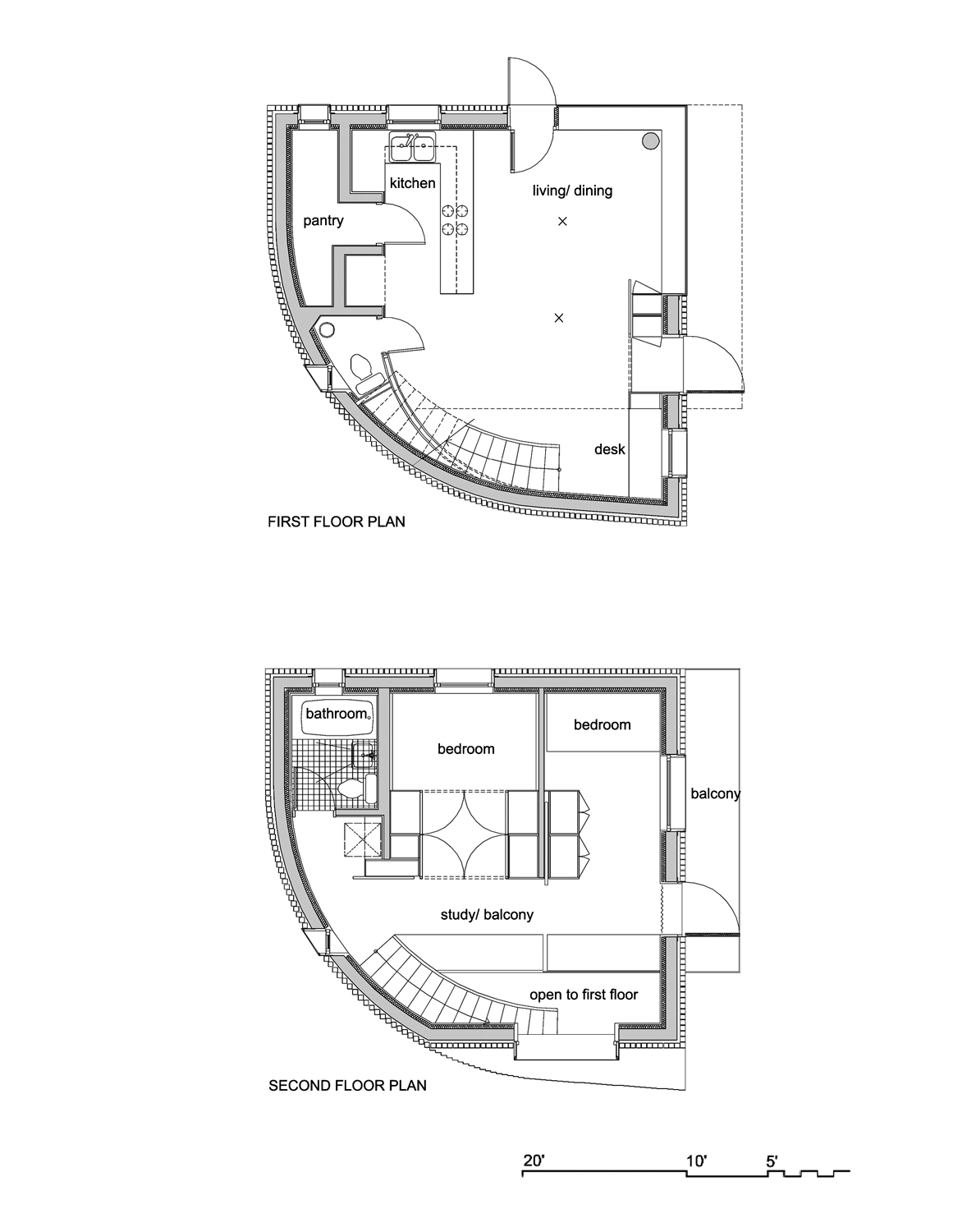
房子的中间部分,第二阶段,占据了总体规划中定义的后院。
Firm Mass Studies SLADE ARCHITECTURE
Type Residential › Private House
YEAR 2001
SIZE 1000 sqft - 3000 sqft
keywordsarchitecture, architecture news, interiors, interior design, portfolio, spec, brands, marketplace, products Pixel House
关键词建筑,建筑新闻,室内设计,组合,规格,品牌,市场,产品像素屋
客服
消息
收藏
下载
最近











