查看完整案例

收藏

下载
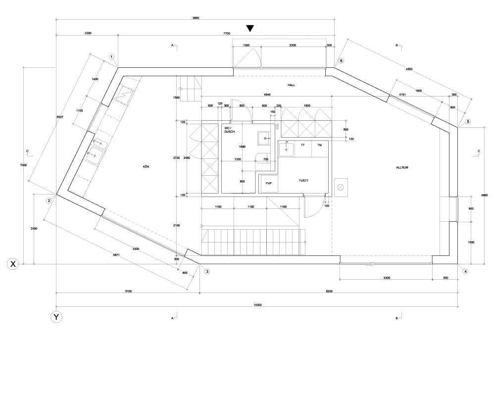
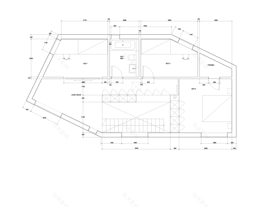
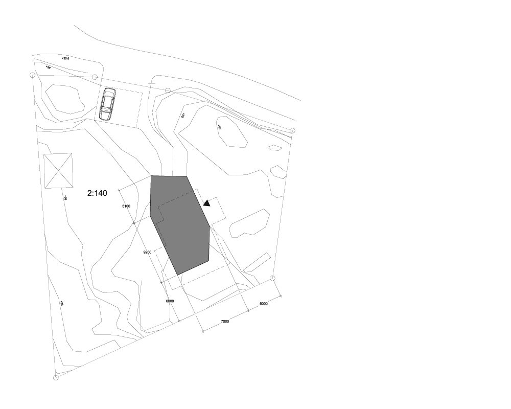
该物业位于哥德堡西北的住宅区,山顶俯瞰北海。建筑体积的形状遵循现场的现有地形,目的是在建筑物周围自然行走,并在房间之间创造一个内部飞行,强调特定的景色。
Firm Johannes Norlander Arkitektur AB
Type Residential › Private House
STATUS Built
YEAR 2010
SIZE 10,000 sqft - 25,000 sqft
keywordsarchitecture, architecture news, interiors, interior design, portfolio, spec, brands, marketplace, products House Tumle
建筑、建筑、新闻、室内、室内设计、组合、规格、品牌、市场、产品House Tumle
客服
消息
收藏
下载
最近












