查看完整案例

收藏

下载
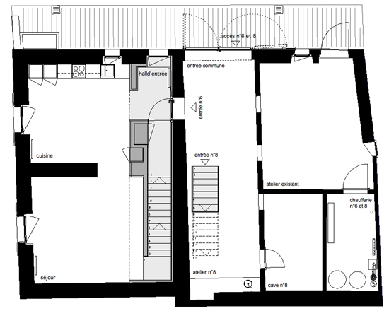
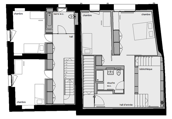
该项目涉及位于距日内瓦几公里的Corsier村的一座老农村建筑,由一座谷仓和一座房子组成,将改造成两套新公寓。关键的概念是保护建筑物的性质,同时在现有的墙壁中引入明显的项目要素。旧屋只是简单的翻新:起居室、厨房和餐厅都位于一楼,与花园相连。卧室位于楼上。新的垂直循环支撑着建筑物的三层,新创造的空间被视为一件家具,包括楼梯、橱柜和浴室。第二套公寓建在谷仓里。它是作为一个对象发展起来的,它把自己定位在一个大容量中。它可以从外面通过大的,原来的谷仓开口,并进一步揭示,因为你探索它的周界。楼梯通向公寓的入口处。卧室在书中的位置,似乎是在图书馆的地方雕刻。穿过这个空间,一个人到达这个物体的顶部,在谷仓的屋顶下,客厅和餐厅结合在一起。厨房和壁炉被视为从原始物体中生长出来的体积。农场的原始材料被保存下来,由厚厚的不规则墙壁和一个大房间组成,室内用杉木板处理。这个“容器”的质地与物体的质地形成鲜明对比,后者是由光滑而精确的木质表面组成的。
Firm bunq architectes
Type Residential › Apartment
YEAR 2010
keywordsarchitecture, architecture news, interiors, interior design, portfolio, spec, brands, marketplace, products BU - Transformation and Creation of two Apartments
关键词建筑,建筑新闻,内饰,室内设计,组合,规格,品牌,市场,产品BU-改造和创造两个公寓
客服
消息
收藏
下载
最近



















