查看完整案例

收藏

下载
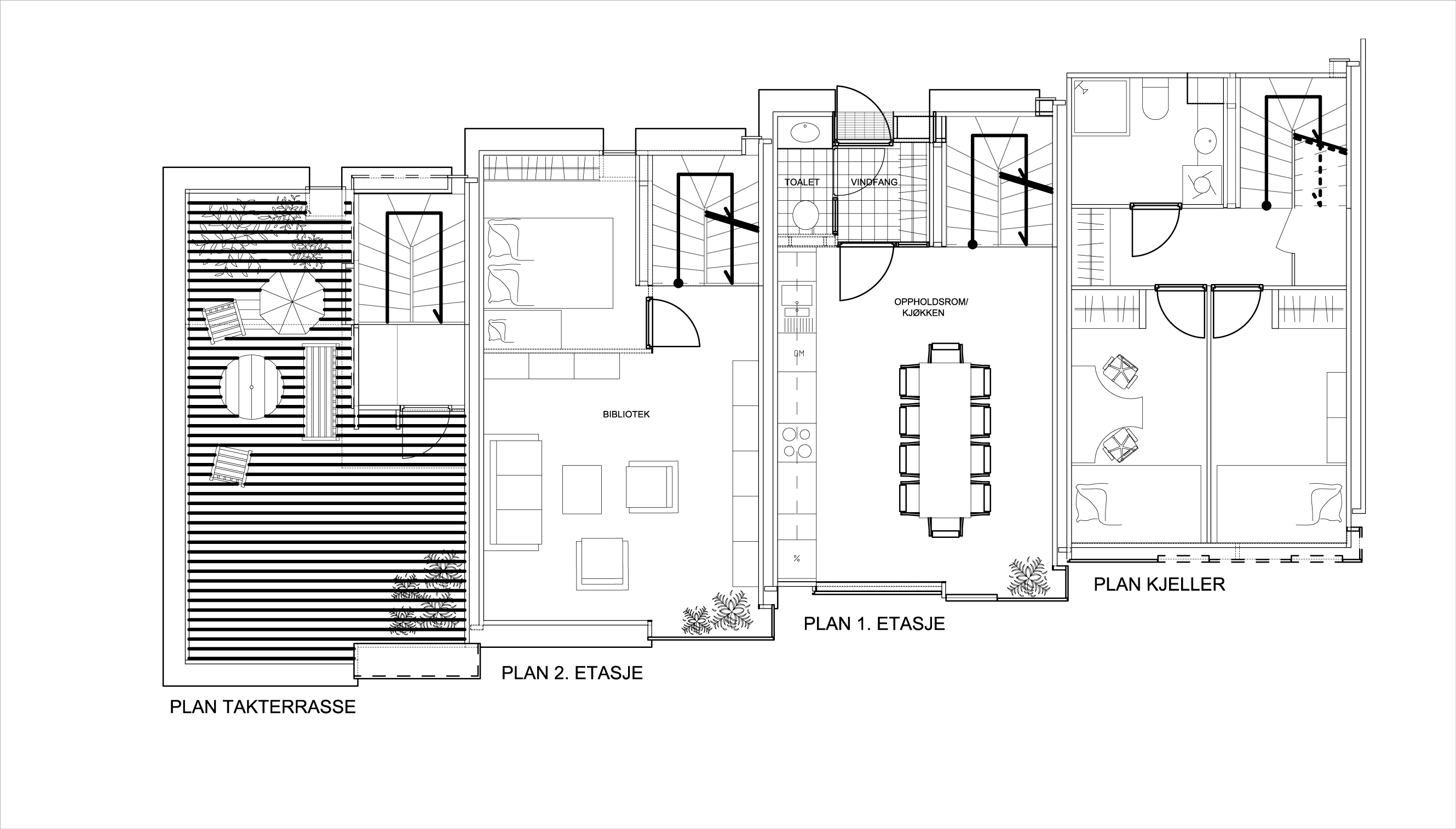
斯托雷瓦社区的三层楼高的一排房子坐落在一个倾斜到峡湾的地方。该网站有海湾和山脉的全景。Storelva这个名字源于一条流经此地边界的河流。这些房屋离道路相当近,但在西面和北面建立了隐蔽的户外游憩区,远离交通,有效地缓冲了河水的奔流声,所有的单位都有屋顶露台,共用花园、游乐区、隔开的储藏室、自行车棚、烧烤棚和地面上的交通运输设施,所有的单位都有屋顶露台和共用花园、游乐区、独立储藏室、自行车棚、烧烤棚和地面交通。主要结构为奥地利KLH Massivholz GmbH公司生产的实木元素,外部矿物羊毛绝缘和未经处理的心材松木板材。环境工厂位于屋顶地板上.南面有一个太阳能收集器,在那里,大玻璃表面可以看到壮观的景色。所有的房间和车场都有运动控制的照明,并且强调采光室。所有的房子几乎都关闭了朝北的正面,(从整个立面上开了一扇窗户,让更多的日光)来遮挡严寒的北风。这些房屋在地面设有热收集器,供进气口预热/冷却,一个蓄热系统的缓冲槽,与备用的空气-水热泵相结合,储存和输送能量给地下供暖系统(位于浴室和中心)。建造这些住所的目的是表明,即使在最极端的气候下,也有可能在不使用外部供暖系统的情况下实现可持续的、面向未来的生态解决方案。由于这些房子位于北极圈上方,在黑暗季节的两个月里,太阳能电池板没有足够的日光来预热水。在这个季节,空气到水和热泵提供足够的能量来为水和进气提供足够的热量。为了避免冷凝问题,一些以前的被动房屋项目一直在努力解决,这些建筑结合了一个跨层结构的紧凑木材元件和一个高水平的隔热和先进的热回收系统。承重元件位于绝缘的温暖一侧,由单层防潮卷材保护.绝缘层采用松板通风心材。内部紧凑型木材构件
Firm Steinsvik Arkitektkontor AS Steinsvik Arkitektkontor AS v/Odd Karl Steinsvik
Type Residential › Multi Unit Housing Private House
YEAR 2007
SIZE 10,000 sqft - 25,000 sqft
BUDGET $100K - 500K
Photos RavnSteinsvik
keywordsarchitecture, architecture news, interiors, interior design, portfolio, spec, brands, marketplace, products I-Box 120 and Storelva - Northern passive houses
关键词建筑、建筑新闻、室内设计、组合、规格、品牌、市场、产品i-Box 120和Storelva-Northern被动式房屋
客服
消息
收藏
下载
最近













