查看完整案例

收藏

下载
伊马巴里市位于爱荷州东北部,与大一相连。
广岛市的一座高速公路-岛上岛道(Shimanami Kaido)
横跨塞托内海的六个岛屿。伊马巴里市以其
风景如画的海景,被称为塔图比,是萨托奈凯国家公园。由于
围绕平静的海洋,伊马巴里已经发展成为最大的工业之一。
日本的航运港口,也以其毛巾业而闻名。
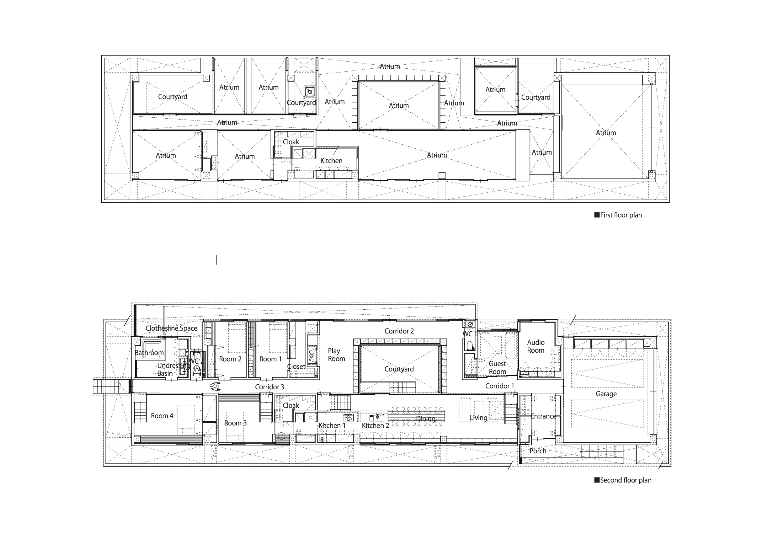
这座私人住宅建在Imabari市中心,供四口之家居住。大
物业由东面的一条道路向西延伸,北面有一个宽敞的院子。
沿着水道。一座七层高的公寓楼,位于南侧。
财产。关注的是如何阻止公寓楼的视线。
保持隐私,同时确保充足的光线和通风。为了满足这些
要求我们在南侧设计了一座40米长的混凝土幕墙。
住所。对其尺寸和结构进行了精确的计算。
我们采用的结构特征是一种浮动屏幕墙,即:
悬挂在离住宅外部1.5米的地面上。安
它的重要特点是它是一堵混凝土墙。选择如此沉重的目标
材料是必须的-墙与建筑物保持平衡。
建筑上。一层结构设计是在考虑结构因素的基础上实现的。
墙的要求和房子的宜居性。
ukikabe解决了许多问题。它成功地阻止了从
附近公寓楼的任何楼层,从住宅内部,你都可以
看那些接近地产的人的脚。它允许充足的光线和通风。
在确保隐私和安全的同时,创造一个理想的生活环境。就.而言
权重KIKABE与房屋主体平衡良好,同时也提供了
空调设备的屏幕。考虑到美学,整个外表
是纯白的,柔和地捕捉到天空从白天到黄昏的变化颜色。
晚上,室内和外部的灯光会从房子和房间之间的空间里散发出来。
添加另一种风味的墙。这面墙是反映时间流逝的屏幕。
室内的房间是建立在木句的基础上的。拉长的建筑
东向西延伸,分为北向北和南向南,采用跳过层。通过
该住宅采用大型多用途储藏室,设计为:
简单的生活。在保留其功能的同时,内墙被降低到
避免视觉干扰。木纹天花板在整个建筑中被统一使用。
房屋.
从楼上的起居室和餐厅可以欣赏到广阔的景色。
穿过一堵不间断的玻璃墙,穿过露台,一直跳到游泳池。
在地产的北面。这与位于
东北提供了丰富的生活乐趣。
一个人不仅能透过宽敞的玻璃墙,还能看到畅通无阻的景色。
也来自房子的各个地方。轻质屋顶
防止地震。从任何地方,你都可以看到树梢。
透过更高的腰带,看到远处的天空。轻柔的舞动的光永远产生-
改变季节观点。沙沙作响的树叶的轮廓和傍晚的琥珀色
墙上的景色如画一般,而蒸馏出来的夜光又描绘出另一种心情。
这所房子被一条室内走廊隔开,有点像一条延伸的小巷。
从东到西,穿过露台。它不仅给人以深度的美,而且有助于分割。
居住空间,但也起到风口的作用。风从地下吹来
木屋流经这条走廊,产生了一股轻柔的小巷风。
这个住宅在春天竣工了。偶尔,花瓣会飘动。
来自院子里的桃树。欣赏美景时,一阵微风吹来。
房间。
闭上眼睛比所有人都好。
一个存在于内部的外部,一个随着户外而进化的内部。我们有
对这一概念进行了深入的思考,并参与了它的创造。
Firm Keisuke Kawaguchi + K2-Design
Type Residential › Private House
STATUS Built
YEAR 2013
keywordsarchitecture, architecture news, interiors, interior design, portfolio, spec, brands, marketplace, products FLAT40
建筑、建筑、新闻、室内、室内设计、组合、规格、品牌、市场、产品平面40
客服
消息
收藏
下载
最近


























