查看完整案例

收藏

下载
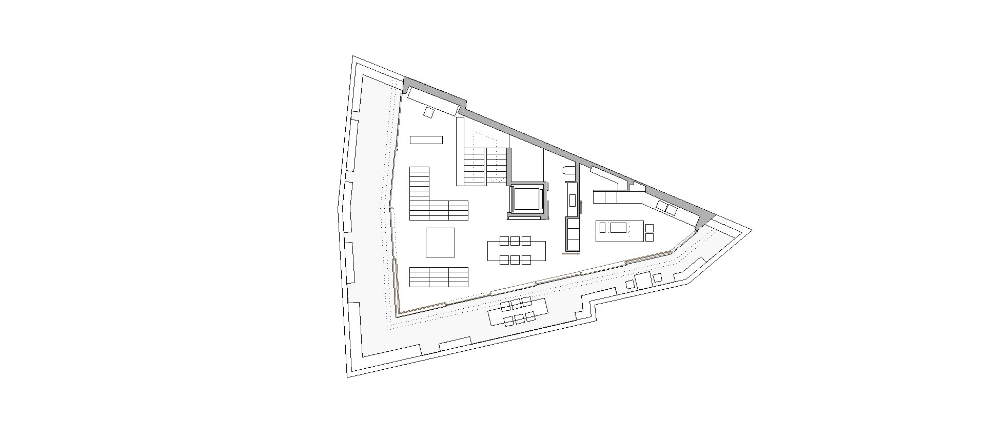
以巴伦西亚的历史中心为背景,这座当代建筑虽然完全融入了城市情节和整个建筑类型,但却悄然出现。
坚固的前墙宽度给出了一个结构的答案,并统一了所有建筑物的建设要素所需。
阁楼顶上是建筑的顶上,屋顶一直挂在玻璃和格子上。
Firm Ramón Esteve Estudio
Type Residential › Private House
YEAR 2006
keywordsarchitecture, architecture news, interiors, interior design, portfolio, spec, brands, marketplace, products House Studio in El Carmen
建筑、建筑、新闻、室内、室内设计、组合、规格、品牌、市场、产品房工作室在埃尔卡门
客服
消息
收藏
下载
最近













