查看完整案例

收藏

下载
项目启动:2006
2008年开工/
2010年完成,卢布尔雅那被众多的稠密包围着。
不同规模的乡村构造。
城市由支路与主城区核心相结合形成了城市。就像这座城市
由内向外扩张的城乡形态有:
一起慢慢溶解。历史上农村城市的不受控制的增长
类型学正在慢慢地失去它的模式、特征和品质。
Podpec正在成为如此典型的郊区。虽然被更广阔的绿色包围
有田园和野生自然的地区,当地的度假胜地没有任何新的特色。
营造环境.创建村庄的组织
该项目是卢布尔雅那高速公路环外郊区城市研究的一部分。
主要提出的思想是将村庄核心与支流-传统凝聚在一起。
沿途浓缩纵向建筑的历史乡村布局
保持绿色区域。
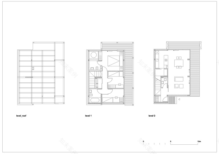
内部道路作为脊髓,八个地块与纵向房屋是
像肋骨一样分枝。
可持续经济问题
有房子的地块是针对那些负担不起的年轻家庭而设的。
生活在中心,寻找自己的花园溶解到绿色
周围。另一方面,它们又给乡村组织带来了新的活力。
3间卧室房
花园和三个外部停车位设计为140到16000欧元,每个都是A。
年轻夫妇可以负担得起合理的银行贷款的预算。所以基本概念
以经济、合理、灵活的问题为基础。每间房子有两个单元
楼层,每层55平方米。每个单元都在舞台上结束,没有完工的楼层,
卫生间里的卫生设施。
-底层由中央生活区和厨房组成,设有储藏室。活的
区域有可能增加房间,如客房或工作空间。
起居区通往高架阳台和小的内花园。
-一楼为睡眠区,提供3间卧室和2间浴室
还有衣柜。
卧室里有一个长长的露台,上面有一个长廊。
设计的坡屋顶允许画廊的空间。
储物筐
材料有落叶松木、石膏和玻璃。主要数据:
地点:Podpec,斯洛文尼亚型:一家
住房客户:私有
每个地块和房屋的面积
住房:110平方米(55平方米/层)
地块面积:420平方米
停车和入口处:80平方米
花园:165平方米
露台:40平方米
结构:钢筋混凝土,砖块
屋顶结构:木本顶。身高:
Firm OFIS architects
YEAR 2010
SIZE 300,000 sqft - 500,000 sqft
keywordsarchitecture, architecture news, interiors, interior design, portfolio, spec, brands, marketplace, products Backbone Village Houses
建筑、建筑、新闻、室内、室内设计、组合、规格、品牌、市场、产品骨干村落住宅
客服
消息
收藏
下载
最近






























