查看完整案例

收藏

下载
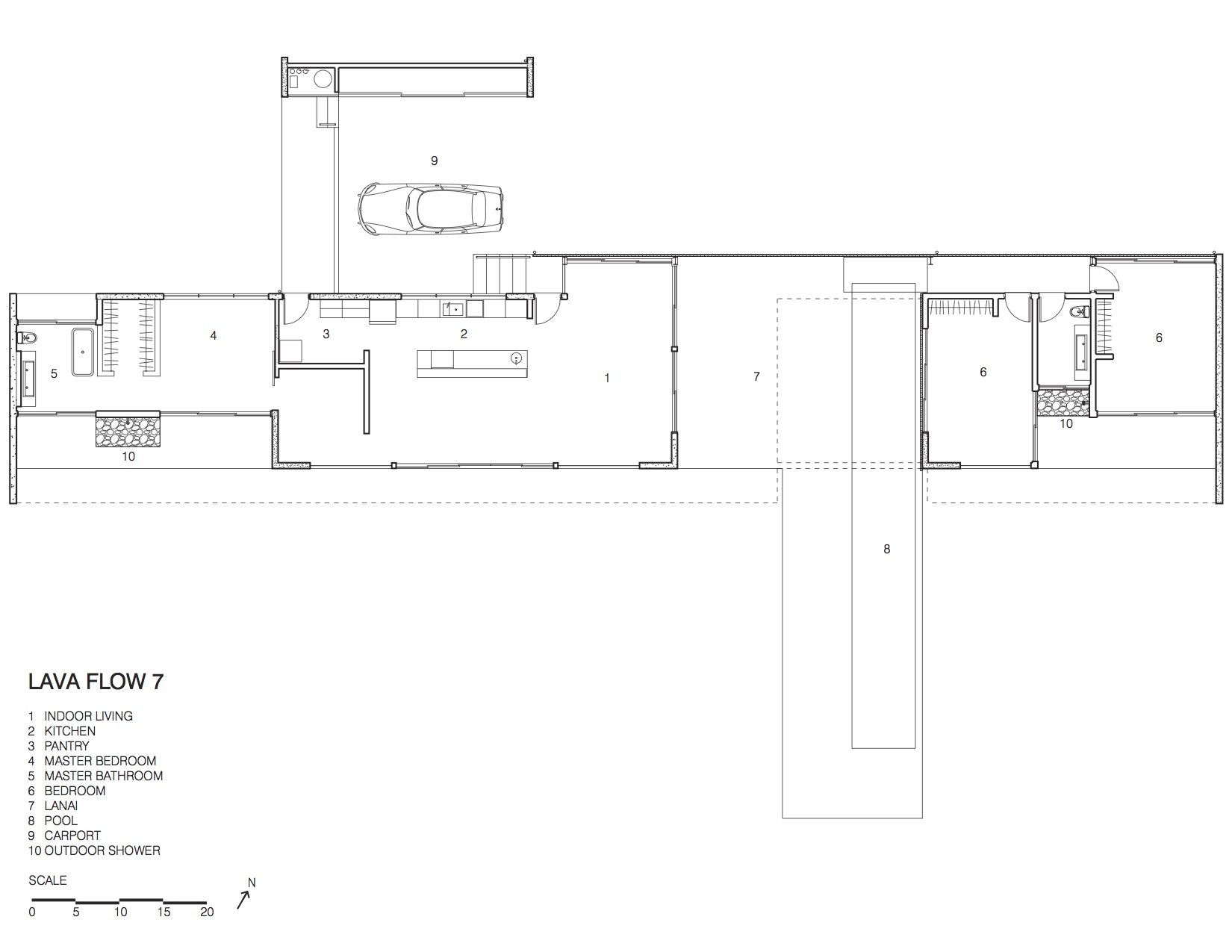
位于五英亩茂密的奥伊亚森林,这座浇铸的混凝土房子框架室内外居住空间,以及森林,天空,和夏威夷的大岛海岸线。
房子的主要特点是混凝土梁,140英尺长,48英寸高x 12英寸宽,与建筑物的长度,只有三个短混凝土墙支撑其大跨度。叠层梁和木板构成了悬挂在它下面的屋顶。
橡树是夏威夷特有的。
房子的性质又长又薄,私人和公共区域由一个拉奈和一个膝池分开。
Firm Craig Steely Architecture
Type Residential › Private House
YEAR 2013
keywordsarchitecture, architecture news, interiors, interior design, portfolio, spec, brands, marketplace, products Lavaflow 7
关键词建筑,建筑新闻,室内设计,组合,规格,品牌,市场,产品LavaFlow 7
客服
消息
收藏
下载
最近

















