查看完整案例

收藏

下载
不到2
公里,来自巴黎,
该大厦由一条五线行车的道路出发,现已建成。
就在一只破囊的尽头。
建筑物、房屋和工场,比乡村的宁静更能唤起人们的共鸣。
邻近郊区的骚动。
建筑师们不得不面对矛盾的目标,一方面,
由其情况和另一方所要求的住房的具体性质
第一,生态环境所必需的相当大的人口密度。
当地经济的需求。
开发商主要是为他们的选择辩护,尽管事实上
难题似乎决定了一座公寓的建造。
(公寓楼)
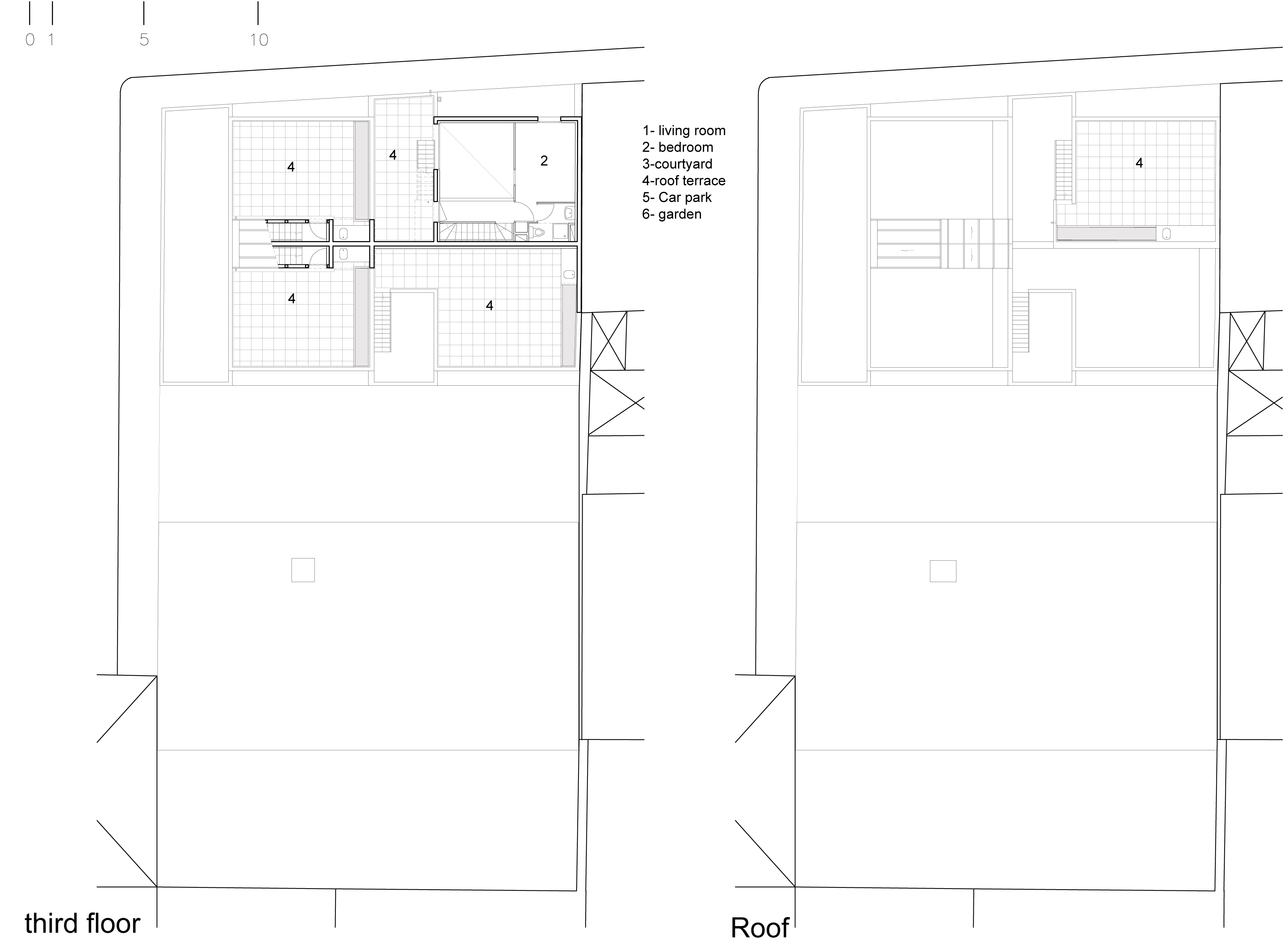
总体建筑方案看起来很简单:两个平行的。
中央小巷花园两边有不同宽度的栏杆,长6米
宽的.
允许我们破译这座建筑的布局。
每一个单元,房屋是并排的,不是彼此顶上的,也不是彼此的。
重叠,搭接.
Wide由四个相邻的房屋组成。
第二座建筑的宽度是由三座房屋组成的,每间都是平躺着的。
在庭院和私人花园之间。
卷、开阔空间和凹痕确保长对角线视图。
在居民之间,与人们可能的正面关系形成对比
在这种情况下担心。
这些房子
垂直开发(3和4卧室单元),地面上有卧室
前四层的地板,都在通道上方,带有梯田。
通往中央小巷。
直接与一系列梯田有关,而这些梯田的结尾是
适合居住的屋顶,主要向周围环境开放
已经安装了带有水槽的工作台以供使用。
视而不见
在建筑物下面,地下室里有停车场和地窖,留下了一个
平原的土地,可以成为花园,为其中的三所房子。
虽然正面没有很多窗户,但这是因为
光主要来自上方。从底部或从
正对面,巨大的灯箱照亮了
一楼的起居空间直接从上面,而不从他们的
想要的亲密关系。内部和外部的对比是惊人的。
就像在麦迪纳一样,外表的紧缩并没有给出任何暗示。
自然的慷慨
光滑的超白墙面的巧妙品质增强了整体效果。
地中海大气。
Firm Bigoni Mortemard
SIZE 100,000 sqft - 300,000 sqft
BUDGET $1M - 5M
keywordsarchitecture, architecture news, interiors, interior design, portfolio, spec, brands, marketplace, products 7 Houses
关键词建筑、建筑新闻、室内设计、组合、规格、品牌、市场、产品7栋
客服
消息
收藏
下载
最近


















