查看完整案例

收藏

下载
工程已开始在现场进行,以便进行新的工作。
设计和材料借鉴了传统农业建筑的风格。较低层的渲染和上层包覆松散的间隔木条。一堵历史上的“边界”墙将被修复,与房屋相交,由石头形成,并用混凝土绑在一起。
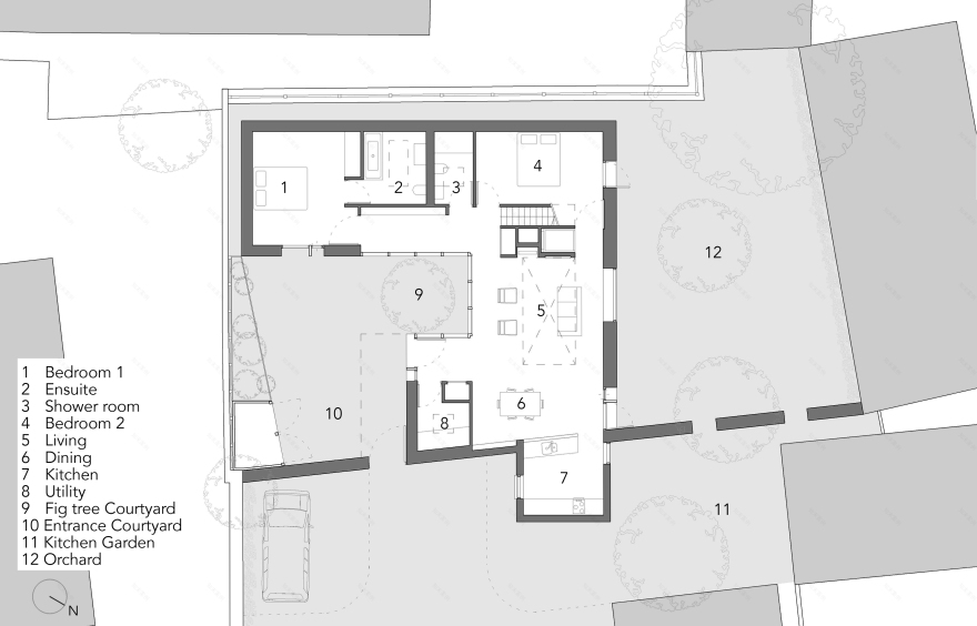
一个小的厨房花园就在墙外,一扇门通向一个入口庭院。在里面,入口走廊打开了一个双高的画廊空间。作为一个轮椅使用者,客户需要一个简单的自由流动的计划:居住空间在玻璃中央庭院周围,通往靠近主套房的图书馆走廊。第二层是办公室和工作室。
在房子的后面,在最大的院子里,种植了三棵古老的果树,这表明它们之间曾经有第四棵树。缺失的树被替换,形成中央庭院的焦点。
Firm Studio Octopi
Type Residential › Private House
YEAR 2012
BUDGET $0 - 10K
keywordsarchitecture, architecture news, interiors, interior design, portfolio, spec, brands, marketplace, products Orchard House
关键词建筑、建筑新闻、室内设计、组合、规格、品牌、市场、产品果园屋
客服
消息
收藏
下载
最近















