查看完整案例

收藏

下载
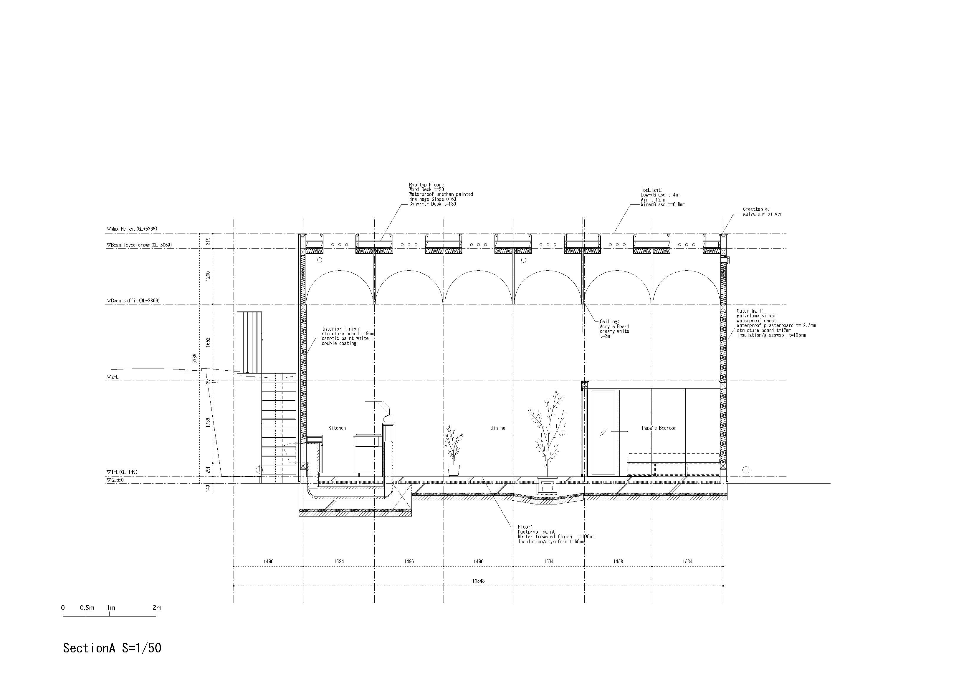
这是一所居民住在天窗下的房子,从火车站步行五分钟就到了,周围是独立的住宅、10层的共管公寓和办公楼。在这个坐落在建筑物之间的山谷里的地方,从天上流下的光线让人感到珍贵。一对夫妇和两个孩子计划在这个地方建造他们的家,建筑的结构是建立一个基本的网格(大约。1500mmx1600毫米)在场地上,使用一间带有卧室、儿童房和书房的高天花板单间的体积,用大约一半高的天花板的配件隔开。从任何房间都可以感觉到整个天花板的宽敞。安装在屋顶上的29个天窗(约700毫米正方形)发出的光照亮了房间,柔和的光从弯曲的丙烯酸天花板中扩散开来。从清晰的方形天窗中掉下来的直接光线在弯曲的丙烯酸天花板上切割了一个扭曲的方形图像。同时,通过对模型和模型的研究,选择天窗与弧形丙烯酸天花板的距离、尺寸、丙烯酸的颜色和内部面板的颜色,使整个弧形丙烯酸天花板均匀地用白光照明,以达到预期的效果。在亚克力表面和屋顶之间有一个空气空间,强制空气在夏季被太阳从建筑物中喷出,而空气的运动在冬季被停止,以空气层作为热缓冲,以确保室内热环境的稳定。很难相信这个遗址是嵌套在一个由建筑物造成的黑暗山谷中。这座房子被命名为“日光之家”。日光不只是表示来自太阳的光,而是指一天中美丽的光线。这一天从升起的太阳开始,然后落下,接着是升起的月亮,月亮逐渐变弱,直到第二天被升起的太阳所取代。这所房子24小时内提供了丰富的光线美的体验。
Firm Takeshi Hosaka architects
Type Residential › Private House
YEAR 2011
keywordsarchitecture, architecture news, interiors, interior design, portfolio, spec, brands, marketplace, products Daylight House
关键词建筑,建筑新闻,室内设计,组合,规格,品牌,市场,日照屋
客服
消息
收藏
下载
最近























