查看完整案例

收藏

下载
波尔图位于Rua de D.Jo o IV,Porto(街道),Porto,Casas da Baixa(房屋)项目,目的是整修一个19世纪的小街区。
它的形式特征被理解为在城市环境的绝对奇异性中起着作用,因为它揭示了一个与市中心其他街区完全不同的形象,它靠近城市周边的农村中心,在与规模和形式有关的概念中。
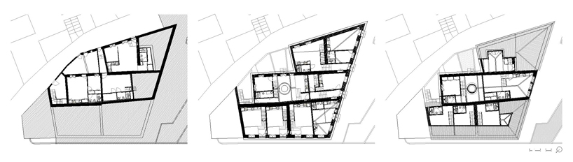
自从建设以来,这个街区就有了多家庭住房的使用,从类型上可以看出-以前是干预措施-连续拨款、扩展和细分。
干预的目的是对现有的类型进行等级划分和重组,重组整体,设计总共11个独立的住房单元,这些单元依次与工作室、一居室和两居室的类型不同,保持了先前存在的建设性原则。
尽管它的高级退化状态,整体的有机和白话布局是如此明显,它成为设计的概念定义的起点。
最初的建筑系统,包括花岗岩坚固的墙壁,地板,屋顶和木结构,大部分都受到尊重,只需要很少的更换和修缮。
其结果是,11套相互依存的公寓既可以单独使用,也可以共享出入,墙壁和天花板的白色与松木地板的温暖形成鲜明对比,在先前的存在和干预之间形成了一致的对话。
类型的特点是成品楼层的变化和阁楼面积的使用,导致免费的平面图公寓在室内空间的解释和生活中起着显著的作用。
Firm PF Architecture Studio
Type Residential › Multi Unit Housing
STATUS Built
YEAR 2017
keywordsarchitecture, architecture news, interiors, interior design, portfolio, spec, brands, marketplace, products Casas da Baixa
关键词建筑,建筑新闻,内饰,室内设计,组合,规格,品牌,市场,产品
客服
消息
收藏
下载
最近



















